„Historischer Hof mit Seele und Weite“
Exposé: „Historischer Hof mit Seele und Weite“
PLZ /Ort:
Kaufpreis
Wohnfläche
Zimmer
Grundstücksfläche
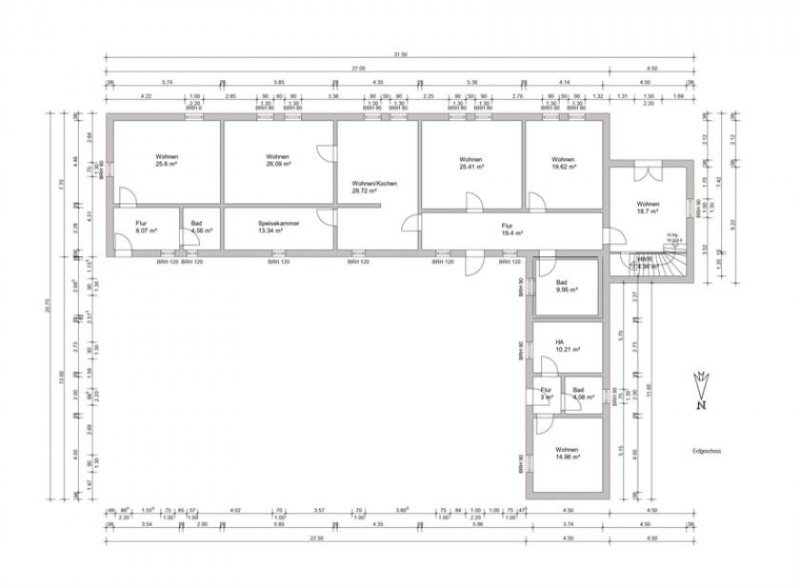
Flächen
Wohnfläche:
247,00 m²
Grundstücksfläche:
17.159,00 m²
Preise
Vermittl.-Provision:
2,38% Käufercourtage inkl MwSt
Sonstiges
Ihre Objektnr.:
BRB 139
Stellplätze (Anz.):
2
Garagen (Anz.):
2
Zimmer:
8
Schlafzimmer:
6
Badezimmer:
3
Baujahr:
1799
Energiepass
Gültig bis:
06-2033
Endenergiebedarf:
277.3
Ausstattung
Kamin
Gartennutzung
Kabel/Sat/TV
Objektbeschreibung
Das Anwesen liegt in einer der stillen, ursprünglich gebliebenen Landschaften Sachsen-Anhalts – eingebettet in weite Felder, sanfte Wiesen und kleine Waldzüge. Abseits des Durchgangsverkehrs entfaltet sich hier eine selten gewordene Qualität: Raum, Ruhe und landschaftliche Großzügigkeit.
Der Hof wirkt nicht wie ein Zufallsfund, sondern wie ein bewusst gesetzter Ort. Seine Lage folgt der Logik historischer Gutsanlagen: leicht erhöht, mit Blick über das Land, geschützt und zugleich offen zur Landschaft. Diese Einbettung verleiht dem Anwesen eine besondere Präsenz und Würde, die man bereits bei der Anfahrt spürt.
Kein Verkehrslärm, keine Hektik – nur Natur, Ruhe und Raum. Und dann taucht er auf: der alte Hof, majestätisch und doch still, als hätte er hier schon immer auf jemanden gewartet.
Erbaut um das Jahr 1799, geht das Anwesen nach historischen Aufzeichnungen auf Hans Ernst Dietrich von Werder-Rogäsen, preußischer Staatsminister, zurück. Nachdem er das umliegende Land käuflich erworben hatte, ließ er diesen Hof errichten – als repräsentatives Gut inmitten weiter Felder und Wälder. Noch heute spürt man die Handschrift jener Zeit, in der ländliche Architektur Würde und Zweckmäßigkeit verband.
Seine Mauern atmen Geschichte. Sie erzählen von bäuerlichem Leben, von Wandel und Handwerk, von Zeiten, in denen Nachhaltigkeit noch kein Modewort, sondern Lebensart war. Die mit Kieselsteinen angelegte Zufahrt führt zum Turmeingang, der Besucher in eine Diele mit historischem Flair empfängt – ein Entrée, das sofort das Gefühl vermittelt, an einem besonderen Ort zu sein.
Drinnen verschmelzen Vergangenheit und Gegenwart auf beeindruckende Weise. Liebevoll restaurierte Details – originalgetreue Fensterläden, alte Kachelöfen und ein historisches Esszimmer – treffen auf modernisierte Wohnräume, funktionale Bäder und eine zeitgemäße Haustechnik. Wer hier lebt, genießt Komfort, ohne auf den Charme des Ursprünglichen zu verzichten.
Doch das eigentliche Herz des Hofes schlägt draußen. Die gepflegte Parkanlage mit ihren Sitzplätzen und Blickachsen lädt dazu ein, den Tag mit Vogelgezwitscher zu beginnen und mit dem letzten Licht der Sonne zu beenden.
Zwei solide Nebengebäude, teils mit Wein berankt, erzählen vom Fleiß früherer Generationen. Heute bieten sie Raum für Werkstatt, Atelier oder Pferdestall – ganz nach dem Traum des neuen Eigentümers.
Auf über 17.000 Quadratmetern Wiesen, Bäumen und Gartenfläche lässt sich das Leben neu erfinden. Obst und Gemüse aus eigenem Anbau, Tiere im Grünen, handwerkliche Projekte – hier ist all das möglich, wovon viele nur träumen. Sie denken darüber nach, sich mit der Pferdehaltung zu beschäftigen? Das angrenzende Stallgebäude bietet hierzu ohne weiteres Platz für 5 Pferdeboxen.
Ferienzimmervermietung? Zwei möblierte Zimmer mit eigenem Bad bieten sich hierfür geradezu an. Hier bieten sich Ihnen Möglichkeiten über Möglichkeiten!
Und das Beste: Trotz seiner abgeschiedenen Lage ist das Anwesen kein Ort der Isolation. Genthin, mit Schulen, Ärzten, Bahnanschluss und Einkaufsmöglichkeiten, liegt nur etwa 14 Kilometer entfernt.
Dieses Haus ist kein gewöhnliches Immobilienangebot. Es ist ein Stück preußischer Geschichte – bewahrt, gepflegt, modernisiert und bereit für ein neues Kapitel. Für Menschen, die das Echte, Ruhige und Zeitlose suchen, ist der Hof mehr als ein Zuhause. Es ist ein Ort, der inspiriert, entschleunigt und verbindet – Vergangenheit, Gegenwart und Zukunft.
Erleben Sie die Geschichte dieses Hofes selbst – am besten bei einem Rundgang über das Anwesen, dort, wo alles begann.
Lage
Das Anwesen befindet sich in einer idyllischen Ortslage bei Demsin, eingebettet in eine weitläufige Kulturlandschaft aus Feldern, Wiesen und Wäldern. Die Umgebung ist geprägt von Ruhe, Natur und historisch gewachsener Struktur – ein idealer Ort für Menschen, die Abgeschiedenheit und Lebensqualität im Grünen schätzen.
Trotz der ruhigen, nahezu abgeschiedenen Lage ist die infrastrukturelle Anbindung hervorragend. Die Bundesstraße B1 ist in etwa 4 Kilometern erreichbar und verbindet die Region mit den umliegenden Städten. Über die B1 gelangt man in kurzer Zeit nach Genthin (ca. 14 km), wo sich sämtliche Einrichtungen des täglichen Bedarfs befinden, darunter Einkaufsmöglichkeiten, Ärzte, Apotheken, Schulen, Kindergärten, gastronomische Angebote sowie ein Bahnhof mit regionaler Anbindung. Darüber hinaus bestehen gute Verbindungen in Richtung Brandenburg an der Havel, Magdeburg und weiterführende Verkehrsachsen.
Ausstattung
Einbauküche, Garage, Gäste WC, Kamin, Speisekammer, Wannenbad
Sonstige Angaben
Dieses Exposé wurde für Sie nach bestem Wissen erstellt. Grundlage der vorstehenden Angaben sind Informationen und/oder Unterlagen, die uns seitens des Eigentümers oder Dritter zur Verfügung gestellt wurden. Auf Wunsch übersenden wir Ihnen weitere Unterlagen. Für die Richtigkeit und Vollständigkeit der Angaben übernehmen wir keine Gewähr.
Hinweis zum Geldwäschegesetz:
Als Immobilienmaklerunternehmen ist die STYN Immobilien GmbH nach § 2 Abs. 1 Nr. 14 und § 11 Abs. 1, 2 Geldwäschegesetz (GwG) verpflichtet, die Identität des Vertragspartners festzustellen und zu überprüfen, sobald ein ernsthaftes Interesse am Kauf einer Immobilie besteht. Daher ist es erforderlich, dass wir nach § 11 Abs. 4 Geldwäschegesetz (GwG) die Angaben Ihres Personalausweises bzw. Reisepasses festhalten (bei natürlichen Personen). Bei juristischen Personen benötigen wir eine Kopie des Handelsregisterauszugs, aus dem ersichtlich ist, wer der wirtschaftlich Berechtigte ist. Wir sind dazu verpflichtet, die Unterlagen fünf Jahre aufzubewahren. Als Vertragspartner haben Sie eine Mitwirkungspflicht nach § 11 Abs. 6 GwG.
Der Maklervertrag mit uns und/oder unseren Beauftragten kommt durch die schriftliche Vereinbarung oder durch die Inanspruchnahme unserer Maklertätigkeit auf der Basis des Objekt-Exposés und seiner Bedingungen zustande. Die Käufercourtage in Höhe von 2,38% auf den Kaufpreis einschließlich gesetzlicher Mehrwertsteuer ist bei notariellem Vertragsschluss verdient und fällig. Eine gleichlautende Vereinbarung in Form eines provisionspflichtigen Maklervertrages haben wir mit dem Verkäufer in gleicher Höhe abgeschlossen. Die Höhe der Bruttocourtage unterliegt einer Anpassung bei Steuersatzänderung. Wir und ggf. unsere Beauftragten erhalten einen unmittelbaren Zahlungsanspruch gegenüber dem Käufer (Vertrag zugunsten Dritter, § 328 BGB). Grunderwerbssteuer, Notar- und Gerichtskosten trägt der Käufer.
Die Erstellung eines Energieausweises ist beauftragt und wird zur Besichtigung bzw. notariellen Beurkundung vorgelegt.
Häuser Demsin
Das Immobilieninserat gehört zur Kategorie Demsin. Die Angeben des Anbieters lauten STYN Immobilien GmbH Ansprechpartner Bastian Styn, Am Elisabethhof 2 in 14772 Brandenburg an der Havel. Weitere Objekte sind unter Sachsen-Anhalt auffindbar.
Synonyme zur Suche Demsin Häuser:
Demsin Häuser online, Haus mieten und kaufen Demsin, günstige Häuser Demsin



