Ab 1.3.26! Schöne 2-Raumwohnung mit Balkon im Zwickauer Zentrum!
Exposé: Ab 1.3.26! Schöne 2-Raumwohnung mit Balkon im Zwickauer Zentrum!
Strasse:
PLZ /Ort:
Kaltmiete
Wohnfläche
Zimmer
Flächen
Wohnfläche:
64,00 m²
Preise
Kaltmiete:
385,00 €
Warmmiete:
585,00 €
Nebenkosten:
200,00 €
Kaution:
770
Sonstiges
Ihre Objektnr.:
MP3-03
Objekttyp:
Dachgeschoss
Heizungsart:
Zentralheizung
Zustand:
gepflegt
Zimmer:
2
Schlafzimmer:
1
Badezimmer:
1
Baujahr:
1927
Energiepass
Art:
Verbrauch
Gültig bis:
2028-07-10
E-Verbrauchskennw.:
70.00
EP inkl. Warmwasser:
ja
Baujahr:
1997
Jahrgang:
2014
Gebäudeart:
wohn
Ausstattung
Objektbeschreibung
Das Wohn- und Geschäftshaus wurde 1927 massiv erbaut und 1997 umfangreich saniert.
Im Hofbereich stehen Parkplätze für die Wohn- und Gewerbemieter zur Verfügung (teilweise Carports).
Diese können auf Anfrage angemietet werden.
Lage
Das Objekt befindet sich am Dr.-Friedrichs-Ring / Ecke Max-Pechstein-Straße.
Das Zentrum ist ca. 200 m entfernt und somit auch fußläufig bequem zu erreichen. Alle Einrichtungen des täglichen Bedarfs sind in wenigen Metern Entfernung vorhanden.
Ausstattung
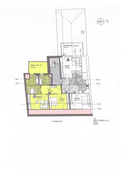
Die Wohnung mit ca. 64 m² Wohnfläche befindet sich im Dachgeschoss und ist wie folgt ausgestattet:
- Flur
- Wohnzimmer
- Schlafzimmer
- Bad
- Balkon
- Mieterkeller
Sonstige Angaben
Dieses Angebot entspricht noch nicht Ihren Wünschen...?
Besuchen Sie auch unsere Homepage mit vielen weiteren Wohnungsangeboten oder sprechen Sie uns persönlich an. Wir präsentieren Ihnen gern weitere Objekte.
Alle Angaben beruhen auf Aussagen Dritter und erfolgen ohne Gewähr. Exposé © Immobilienbüro Kühn
Wohnungen Zwickau
HomeBooster hat dieses Objekt zum mieten und kaufen unter Zwickau eingetragen. Weitere Objekte sind unter Sachsen auffindbar.
Die Daten zu diesem Anbieter lauten: Immobilienbüro Kühn GmbH & Co. KG Ansprechpartner Wolfgang Kühn, Jahnstraße 17 in 08058 Zwickau.
Synonyme zur Suche Zwickau Wohnungen:
Zwickau günstige Wohnung, Wohnungsanzeigen Zwickau










