Ab 01.04 !!!Einraumwohnung im Zwickauer Zentrum mit Balkon und kleiner Küche!
Exposé: Ab 01.04 !!!Einraumwohnung im Zwickauer Zentrum mit Balkon und kleiner Küche!
Strasse:
PLZ /Ort:
Kaltmiete
Wohnfläche
Zimmer
Flächen
Wohnfläche:
31,36 m²
Preise
Kaltmiete:
188,00 €
Warmmiete:
285,00 €
Nebenkosten:
97,00 €
Kaution:
376
Sonstiges
Ihre Objektnr.:
PO14-02
Heizungsart:
Zentralheizung
Befeuerung:
Öl
Boden:
Fliesen
Zustand:
gepflegt
Bad:
Wanne
Küche:
EBK
Zimmer:
1
Badezimmer:
1
Baujahr:
1907
Energiepass
Art:
Verbrauch
Gültig bis:
2029-01-09
E-Verbrauchskennw.:
119.00
EP inkl. Warmwasser:
ja
Baujahr:
2000
Jahrgang:
2014
Gebäudeart:
wohn
Ausstattung
Objektbeschreibung
Der Poetenweg 14 ist ein Kulturdenkmal, das 1907 erbaut und 2000 umfassend unter denkmalschutzrechtlichen Gesichtspunkten saniert wurde.
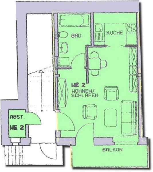
Es besteht aus Vorder- und Hinterhaus. Die zu vermietende Wohnung befindet sich im Erdgeschoss des Hintergebäudes.
Lage
Die von einem Grüngürtel umschlossene Innenstadt beherbergt herausragende Bauwerke.
Vielfältige kulturelle Einrichtungen und Veranstaltungen sowie ein breites Spektrum an Ausflugszielen bieten den Bürgern und Gästen umfangreiche Möglichkeiten zur Freizeitgestaltung.
Die Immobilie liegt in der Fußgängerzone der Innenstadt Zwickaus. Das gesamte Wohnviertel wird durch seine Vielzahl an sehr schönen Gründerzeit- und Jugendstilgebäuden sowie Neubauten bestimmt.
Die fußläufig erreichbaren Geschäfte des täglichen Bedarfs, Haltestellen öffentlicher Verkehrsmittel sowie eine Vielzahl von gastronomischen und kulturellen Angeboten sind weitere Vorteile des Standortes.
Ausstattung
Die Wohnung wurde hochwertig saniert.
- Wohn- und Schlafraum mit Laminatboden
- kleine Singleküche
- innenliegendes raumhoch gefliestes Bad mit Wanne
- großer Balkon
Sonstige Angaben
Dieses Angebot entspricht noch nicht Ihren Wünschen...?
Besuchen Sie auch unsere Homepage mit vielen weiteren Wohnungsangeboten oder sprechen Sie uns persönlich an. Wir präsentieren Ihnen gern weitere Objekte.
Alle Angaben beruhen auf Aussagen Dritter und erfolgen ohne Gewähr. Exposé © Immobilienbüro Kühn
Wohnungen Zwickau
HomeBooster hat dieses Objekt zum mieten und kaufen unter Zwickau eingetragen. Weitere Objekte sind unter Sachsen auffindbar.
Die Daten zu diesem Anbieter lauten: Immobilienbüro Kühn GmbH & Co. KG Ansprechpartner Wolfgang Kühn, Jahnstraße 17 in 08058 Zwickau.
Synonyme zur Suche Zwickau Wohnungen:
Zwickau günstige Wohnung, Wohnungsanzeigen Zwickau










