Frisch renoviert! 2-Raumwhg. mit Balkon, TG-Stpl. (duplex, saniert), Neubau 1997!
Exposé: Frisch renoviert! 2-Raumwhg. mit Balkon, TG-Stpl. (duplex, saniert), Neubau 1997!
Strasse:
PLZ /Ort:
Kaltmiete
Wohnfläche
Zimmer
Flächen
Wohnfläche:
53,00 m²
Preise
Kaltmiete:
320,00 €
Warmmiete:
485,00 €
Nebenkosten:
165,00 €
Kaution:
960
Sonstiges
Ihre Objektnr.:
OB10c-09VM
Objekttyp:
Etage
Heizungsart:
Zentralheizung
Boden:
Fliesen
Bad:
Wanne
Zimmer:
2
Schlafzimmer:
1
Badezimmer:
1
Baujahr:
1997
Energiepass
Art:
Verbrauch
Gültig bis:
2027-07-13
E-Verbrauchskennw.:
81.00
EP inkl. Warmwasser:
ja
Baujahr:
1997
Jahrgang:
2014
Gebäudeart:
wohn
Ausstattung
Objektbeschreibung
Das Objekt wurde lt. Energieausweis 1997 massiv erbaut.
Im Jahr 2024 erfolgte eine Sanierung aller Doppelparker-Systeme in der Tiefgarage. Die Wohnung wurde 2025 frisch saniert und ist bezugsfertig.
Lage
Reinholdshain ist ein Ortsteil der Großen Kreisstadt Glauchau im Landkreis Zwickau (Sachsen).
Das Mehrfamilienhaus befindet sich in einer ruhigen Wohnlage. In ca. 7 Minuten (per Auto) erreicht man ein Kaufland, einen Lidl und einen Netto. Das Tiergehege Glauchau ist ca. 8 Minuten mit dem Auto entfernt. Den Bahnhof Glauchau erreicht man in 2,8 km. Auch das Schloss Glauchau, das Stadttheater sowie das Rudolf-Virchow-Klinikum Glauchau befinden sich in der näheren Umgebung.
Ausstattung
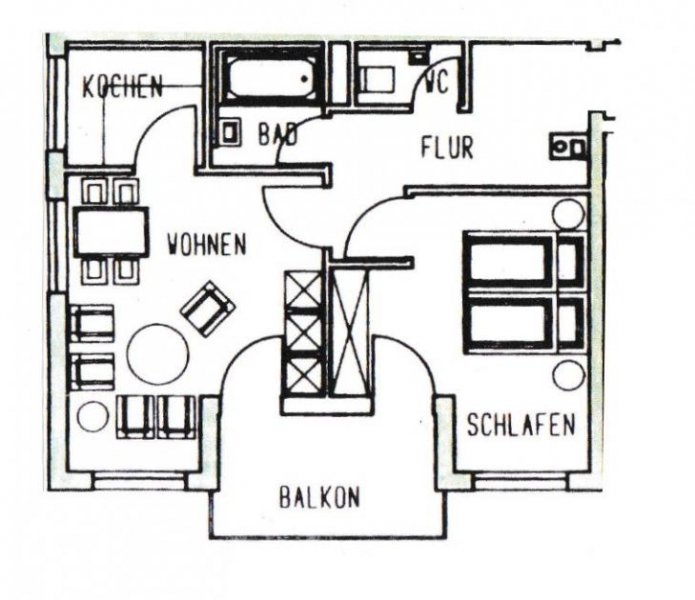
Die ca. 53 m² große 2-Raum-Wohnung befindet sich im 1. OG und teilt sich wie folgt auf:
- Flur
- Küche mit Fenster
- Badezimmer mit Wanne
- separates WC
- Schlafzimmer mit Zugang Balkon
- Wohnzimmer mit Zugang Balkon
- Balkon
Zur Wohnung gehört ein Tiefgaragen-Stellplatz (Doppelparker) mit der Nr. 22 sowie ein Kellerabteil. Der Stellplatz Nr. 22 ist die obere Plattform des Duplex-Systems.
Wohnungen Glauchau
HomeBooster hat diese Immobilie unter Glauchau gespeichert. Die Immobiliensuche startet meistens bei Mietobjekten und Kaufimmobilien unter Sachsen.
Die Daten zu diesem Anbieter lauten: Immobilienbüro Kühn GmbH & Co. KG Ansprechpartner Wolfgang Kühn, Jahnstraße 17 in 08058 Zwickau.
Synonyme zur Suche Glauchau Wohnungen:
Glauchau günstige Wohnung, Wohnungsanzeigen Glauchau










