Sanierungsbedürftig, aber einzigartig – 1.452 m² Freiheit in Rostock - Hinrichsdorf
Exposé: Sanierungsbedürftig, aber einzigartig – 1.452 m² Freiheit in Rostock - Hinrichsdorf
PLZ /Ort:
Kaufpreis
Wohnfläche
Zimmer
Grundstücksfläche
Flächen
Wohnfläche:
96,00 m²
Grundstücksfläche:
1.452,00 m²
Preise
Kaufpreis:
259.000,00 €
Vermittl.-Provision:
3%
Sonstiges
Ihre Objektnr.:
5778#KRCoH
Objekttyp:
Einfamilienhaus
Heizungsart:
Zentralheizung
Befeuerung:
Gas
Stellplatz-Art:
Garage
Bad:
Fenster
Stellplätze (Anz.):
2.0
Garagen (Anz.):
2
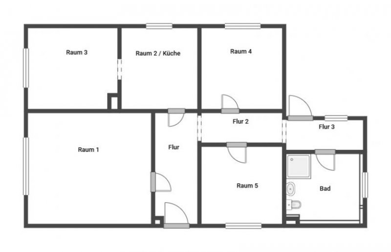
Zimmer:
4
Schlafzimmer:
3
Badezimmer:
1
Baujahr:
1955
vermietet:
1
denkmalgeschuetzt:
1
Energiepass
EP inkl. Warmwasser:
ja
Ausstattung
barrierefrei
Objektbeschreibung
Aus Diskretionsgründen handelt es sich bei dem öffentlichen Exposé in den Portalen um eine Kurzversion. Die ausführliche Version mit allen Unterlagen, Bildern, Grundrissen und einer 360°-Objektbesichtigung erhalten Sie nach einer qualifizierten Anfrage über das jeweilige Kontaktformular per E-Mail.
Das eingeschossige Einfamilienhaus wurde in massiver Bauweise errichtet und verfügt über eine Gaszentralheizung (Baujahr ca. 1995). Die Ausstattung stammt überwiegend aus den 1990er Jahren, einschließlich einfacher Bodenbeläge (PVC, Laminat, Fliesen) sowie einem Bad mit Dusche. Das Gebäude ist nicht unterkellert, das Dachgeschoss hat nur eingeschränktes Nutzungspotenzial als Lagerraum.
Auf dem Grundstück befindet sich eine ältere Doppel-Garage, die baulich zum Teil auf das hintere benachbarte Flurstück 13/7 überbaut ist – hierbei handelt es sich jedoch um ein sogenanntes „Hubschrauber-Flurstück“ der Hansestadt.
Besonders interessant ist auch die evtl. mögliche Option, das Grundstück zu teilen und im rückwärtigen Bereich ebenfalls zu bebauen – so wie es in der Nachbarschaft bereits umgesetzt wurde. Rechts neben dem Grundstück verläuft eine öffentliche Zufahrt, die eine mögliche hintere Bebauung auch unabhängig vom vorderen Haus erschließen würde.
Der gesamte Bereich des Grundstücks ist im Flächennutzungsplan als Wohnbaufläche (W) dargestellt. Eine entsprechende Machbarkeit ist vom Käufer über eine eigene Bauvoranfrage zu klären.
Insgesamt besteht erheblicher Sanierungsstau. Alternativ bietet das Grundstück Potenzial für einen Abriss mit anschließender Neubebauung.
Auf dem Grundstück befindet sich ein Brunnen mit historischer Hand-Schwengelpumpe. Laut Eigentümer steht der Brunnen voll Wasser - eine seltene und praktische Ergänzung, die zur Gartenbewässerung genutzt werden kann.
Ein Energieausweis ist nicht erforderlich, da das Gebäude seit Februar 2020 leer steht, nicht mehr beheizt wird und im aktuellen Zustand nicht nutzbar ist. Der Angebotspreis basiert auf der Annahme einer Kernsanierung oder eines Abrisses. Die Ausnahme ergibt sich gemäß § 80 Abs. 3 Satz 7 GEG (Gebäudeenergiegesetz).
Lage
Das Grundstück befindet sich in ruhiger Wohnlage von Rostock-Hinrichsdorf, einem aufgelockert bebauten Ortsteil am nordöstlichen Stadtrand.
Die nächste Bushaltestelle ist fußläufig in ca. 3 Minuten erreichbar, die Autobahn A19 liegt nur etwa 5 Fahrminuten entfernt. Den Rostocker Hauptbahnhof erreicht man in ca. 15 Minuten, den Flughafen Rostock-Laage in ca. 30 Minuten.
Trotz der ruhigen Lage besteht eine sehr gute Anbindung an das Stadtzentrum sowie an die Region über die B105 und A19.
Ausstattung
Hinweis zur Erschließung: Zugang und Leitungen verlaufen über das Flurstück 76/4 der Hansestadt. Das ist ein sehr schmaler Streifen, welcher die Straße und das Grundstück trennt (auch die Nachbarn).
Da dieses Flurstück 76/4 nicht öffentlich gewidmet ist, muss für alle Bestandsgrundstücke auf dieser Seite der Straße, ein Geh-, Fahr- und Leitungsrecht zugunsten des betreffenden Grundstücks eingetragen werden (Standardverfahren). Der Antrag ist vom Käufer zu stellen; die Verkäuferseite leistet die erforderliche Mitwirkung.
Häuser Rostock
Dieses vorliegende Exposé gehört zur Listeseite Rostock. Das Bundesland dieses Onlineinserats ist Mecklenburg-Vorpommern.
Die Angeben des Anbieters lauten Lisa Büchel - Immobilien Ansprechpartner Lisa Büchel, Oldendorfer Straße, 3 in 18147 Rostock.
Synonyme zur Suche Rostock Häuser:
Rostock Häuser online, Haus mieten und kaufen Rostock, günstige Häuser Rostock






