Prov.-frei: Büroetage
Exposé: Prov.-frei: Büroetage
PLZ /Ort:
Kaltmiete
Gesamtfläche
Gesamtfläche
Flächen
Nutzfläche:
390,00 m²
Gesamtfläche:
390,00 m²
Preise
Nebenkosten:
1.443,00 €
Heizkosten:
468,00 €
Kaution:
24453.00
Sonstiges
Ihre Objektnr.:
330008531
Objekttyp:
Bueroflaeche
Heizungsart:
Zentralheizung
Fahrstuhl:
Personen
Zimmer:
6
Seperate WC:
2
Baujahr:
1932
Energiepass
Ausstattung
DV-Verkabelung
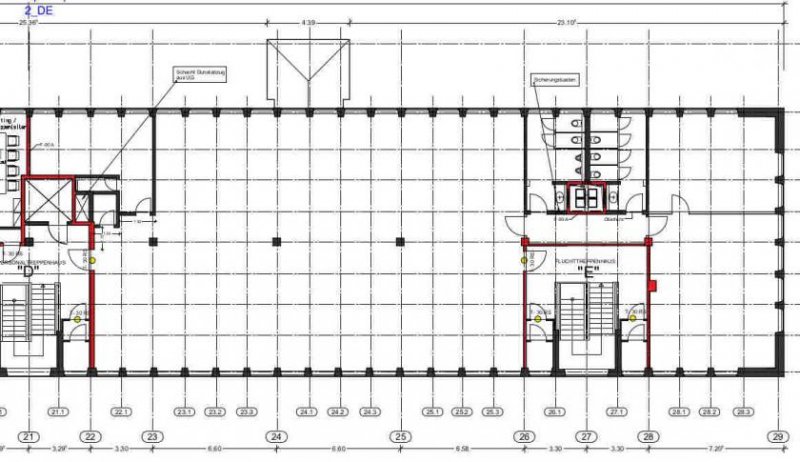
Objektbeschreibung
Die denkmalgeschützte Büroetage repräsentiert eine Verbindung zwischen vergangener Eleganz und modernem Arbeitsleben. Die Erhaltung der historischen Architektur stellt eine besondere Herausforderung dar, da sie gleichzeitig den Anforderungen zeitgemäßer Büroarbeit gerecht wird.
Eine Kombination aus Großraumbüro und separaten Büroräumen bietet eine vielseitige Arbeitsumgebung. Das Großraumbüro fördert die Zusammenarbeit und den Informationsaustausch, während die separaten Büroräume Privatsphäre und Konzentration ermöglichen. Die Integration von Bodentanks in die Büroetage ermöglicht eine effiziente Kabelführung und schafft eine aufgeräumte Arbeitsumgebung. Dies gewährleistet nicht nur eine optimale Nutzung des Raumes, sondern erleichtert auch die Anpassung an zukünftige technologische Entwicklungen.
Eine Installation abgehängter Akustikdecken trägt zur Reduzierung von Lärm und Schall in der Büroetage bei. Dies ist essentiell, um eine angenehme Arbeitsumgebung zu schaffen, in der Mitarbeiter ungestört arbeiten können. Die Kombination aus historischer Bausubstanz und moderner Akustiktechnologie stellt eine gelungene Synthese dar.
Die großzügigen Fensterfronten in der denkmalgeschützten Büroetage bieten nicht nur eine beeindruckende Aussicht, sondern lassen auch viel Tageslicht herein. Dies fördert das Wohlbefinden der Mitarbeiter, steigert die Energieeffizienz und unterstützt die Konzentration. Diese Immobilie steht unter Denkmalschutz. Hinweis zum Energieausweis: Ein Energieausweis ist bei Denkmal-Immobilien nicht erforderlich. Mindestmietzeit: 2.0 Jahre . Übergabe/Verfügbarkeit ab: nach Vereinbarung.
Informativ: Nettomiete: 6240.00 €, Betriebskosten: 1443.00 €, Heizkosten: 468.00 €. Gesamtmiete inkl. Nebenkosten und ges. MwSt: 9699,69 €. Provisionshinweis: mieterseits provisionsfrei . Dieses Angebot wird bei uns betreut von Herr Uwe Strietzel, Tel. 0179/4504353.
Ausstattung
Besondere Ausstattungsmerkmale: Aufzug/Fahrstuhl, DV-Verkabelung vorhanden
Sonstige Angaben
Alle INFORMATIONEN ZU DIESEM ANGEBOT, mehr Fotos sowie Pläne/Grundriss bekommen Sie über das Expose auf unserer Internetseite. Die vollständige ANSCHRIFT können Sie ebenfalls über das Kontaktfeld im Expose auf unserer Internetseite anfordern. Hier können Sie auch eine Video-Besichtigung machen. Verwenden Sie dazu diesen Link: https://KuehneGmbH.de/330008531 .
Auf unserer Webseite können Sie sich auch über weitere Angebote informieren und Ihre Suchwünsche vormerken, bzw. einen Suchauftrag erstellen.
Wenn Sie Fragen haben, rufen Sie uns einfach an. Wir beraten Sie gerne zu Ihrer Immobiliensuche und versuchen, Ihnen zu helfen.
Übrigens, wenn Sie eine vergleichbare Immobilie selbst zu vermieten oder zu verkaufen haben, sprechen Sie mit uns. Als erfahrene Makler beraten wir Sie gerne und erläutern Ihnen unverbindlich, welchen Mehrwert wir Ihnen bieten können.
Gewerbe Immobilien Berlin
Weitere Inserate zum mieten und kaufen finden sich unter Berlin. Berlin ist die geografische Zuordnung dieses Objektes zum mieten und kaufen.
Weitere Immobilien zum mieten und kaufen kommen von Dipl.Ing. Kühne GmbH Ansprechpartner Wolfgang Kühne, Brandensteinweg 6 in 13595 Berlin.
Synonyme zur Suche Berlin Gewerbe Immobilien:
Berlin Immobilien für Unternehmen, Gewerbeimmobilien mieten Berlin, Industrie Immobilien Berlin

