Produktionsfläche oder Lager mit Werkstattbüro und Sozialräumen
Exposé: Produktionsfläche oder Lager mit Werkstattbüro und Sozialräumen
PLZ /Ort:
Kaltmiete
Gesamtfläche
Gesamtfläche
Flächen
Gesamtfläche:
603,20 m²
Preise
Kaltmiete:
4.825,00 €
Nebenkosten:
1.200,00 €
Vermittl.-Provision:
1 Monatsmiete zzgl. MwSt.
Stellplatz (Miete):
75,00 €
Sonstiges
Ihre Objektnr.:
126149366#24hef
Fahrstuhl:
Personen
Stellplatz-Art:
Tiefgarage
Boden:
Stein
Zustand:
gepflegt
Stellplätze (Anz.):
3.0
Hallenhöhe:
4.12
Baujahr:
1987
Energiepass
Ausstattung
DV-Verkabelung
Rampe
Hebebuehne
Objektbeschreibung
Zur Vermietung steht eine ca. 533 qm große, ebenerdige Fläche (Länge ca. 29,70 m, Breite zwischen ca. 16,40 und 19,20 m) die als Produktions- und/oder Lagerfläche genutzt werden kann.
Die Fläche ist mit 1200kg/qm belastbar und hat eine lichte Höhe von ca. 4,12 m.
Die Zufahrt erfolgt über ein elektrisches Rolltor, Breite ca. 4,08 m. ferner gibt es einen zusätzlichen separatem Eingang. Das Rolltor befindet sich an der Rückseite des Gebäudes und ist über eine private, gepflasterte Zufahrt, Breite ca. 3,03 m erreichbar. Im Hof können ca. 2 Servicefahrzeuge oder Pkw abgestellt werden. Zusätzlich können drei ebenerdige Stellplätze in der Tiefgarage angemietet werden.
Die Halle ist durch umlaufende Fensterflächen und zusätzliche Oberlichter gut mit Tageslicht belichtet.
Drei Starkstromleisten mit 100 Ampere (4 Reihen pro Platz und eigener Absicherung) und 2 Abluftleitungen, jeweils über Hallenlänge sind vorhanden.
Angrenzend an die Produktionsfläche schließt sich ein knapp 30 qm großes Werkstattbüro an.
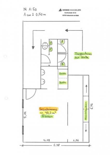
Im Untergeschoss befinden sich die Sozialräume mit 2 Duschen, WCs, Pissoirs, Wasch- und Umziehgelegenheiten.
Lage
Stuttgart, eine der größten deutschen Städte und Landeshauptstadt Baden Württembergs ist ein attraktiver Gewerbestandort. Die zu vermietende Gewerbefläche befindet sich im Stadtteil Münster.
Münster ist der kleinste Stuttgarter Stadtbezirk und liegt direkt am Neckar im Nordosten der Stadt.
Die Gewerbefläche befindet sich in einem Gewerbemischgebiet, in nur wenigen Minuten erreichen Sie fußläufig Einkaufsmöglichkeiten und Gastronomie.
Die U-Bahnhaltestelle Riethmüllerhaus erreichen Sie zu Fuß in weniger als 10 Minuten.
Ausstattung
- Produktionsfläche Kalt- oder Warmlager mit ca. 533 qm (Länge ca. 29,70 m, Breite zwischen ca. 16,40 und ca. 19,20 m)
- Deckenhöhe ca. 4,12 m
- mehrere Fenster und Oberlichter (Tageslicht)
- mit ca. 1200 kg/qm belastbar
- elektrisches Rolltor mit separatem Eingang
- Gebläse-Deckenheizung
- Wandheizungen
- Abluftanlage
- 3 Tiefgaragenstellplätze
- angrenzende Bürofläche ca. 29,59 qm
- Sozialraum im Untergeschoss ca. 40,20 qm mit 2 Duschen, WCs, Waschbecken etc.
Sonstige Angaben
Wenn Sie diese Immobilie besichtigen möchten, melden Sie sich bitte unter 0151/20 25 40 64 oder schreiben Sie uns eine Email unter anfrage@weber-immobilien-mtk.de. Wir melden uns dann wieder bei Ihnen.
Ihr Team von Weber Immobilien
Achtung! Unsere Angebotsangaben basieren auf den uns erteilten Informationen des Eigentümers. Eine Haftung für deren Richtigkeit und Vollständigkeit können wir nicht übernehmen (Haftungsausschluss).
Gewerbe Immobilien Stuttgart
Dieses Immobilien-Exposé wird geführt unter Stuttgart. Baden-Württemberg ist hier die Oberkategorie dieses Immobilienexposé's.
Weitere Immobilien zum mieten und kaufen kommen von Weber Immobilien Ansprechpartner Frank Weber, Goethestraße 12-14 in 65795 Hattersheim am Main.
Synonyme zur Suche Stuttgart Gewerbe Immobilien:
Stuttgart Immobilien für Unternehmen, Gewerbeimmobilien mieten Stuttgart, Industrie Immobilien Stuttgart








