Moderner kleiner Laden in der historischen Altstadt
Exposé: Moderner kleiner Laden in der historischen Altstadt
PLZ /Ort:
Kaufpreis
Gesamtfläche
Gesamtfläche
Flächen
Fensterfront (lm):
6.00
Nutzfläche:
27,34 m²
Gesamtfläche:
89,61 m²
Preise
Kaufpreis:
79.900,00 €
Vermittl.-Provision:
4,76 %
Sonstiges
Ihre Objektnr.:
500423
Objekttyp:
Ladenlokal
Heizungsart:
Fernheizung
Zustand:
gepflegt
Zimmer:
2
Baujahr:
1999
Energiepass
Art:
Bedarf
Gültig bis:
12.02.2030
Endenergiebedarf:
70
Wertklasse:
B
Ausstellungsdatum:
2020-02-13
Ausstattung
Rampe
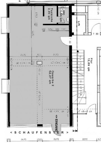
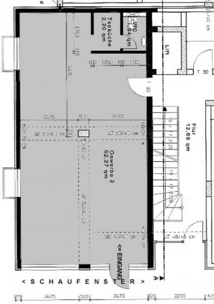
Objektbeschreibung
Diese solide Kapitalanlage befindet sich im Erdgeschoss eines in den 2000 errichteten Wohnkomplexes "Wohnanlage Nonnenberg".
Neben den Wohnungen wurden zwei Gewerbeeinheiten geschaffen, welche seit Jahren beständig vermietet sind.
Lage
Die Wohn- und Geschäftsanlage befindet sich am Rande der historischen Altstadt, in der Nähe der Augustinerkirche und des Hauptmarkts.
Durch die Neugestaltung des umliegenden Wohngebietes wurde die Lage des Objektes maßgeblich aufgewertet.
Ausstattung
Das Ladengeschäft verfügt über eine große Schaufensterfront, welche das Gewerbe hell und freundlic erscheinen lässt.
Die Böden sind mit Terrazzo-Fliesen belegt. Ein Sanitärbereich sowie einen großer Kellerraum vervollständigen die Einheit.
Sonstige Angaben
Heizungsart: Fernwärme
Befeuerung/Energieträger: Fernwärme Dampf
Energieausweistyp: Bedarfsausweis
Energiekennwert: 70 kWh/(m²*a)
Energieeffizienzklasse: B
Baujahr: 1999
Die Gewerbeeinheit ist seit vielen Jahren konstant vermietet, die dabei einzunehmende Jahresnettokaltmiete beträgt 3.360,00 €
Gewerbe Immobilien Gotha
HomeBooster hat diese Immobilie unter Gotha gespeichert. Thüringen ist die geografische Zuordnung dieses Objektes zum mieten und kaufen.
Weitere Immobilien zum mieten und kaufen kommen von HONNEF Immobilien Ansprechpartner Peter Honnef & Rudolf Steinert GbR, Schlossberg in 99867 Gotha.
Synonyme zur Suche Gotha Gewerbe Immobilien:
Gotha Immobilien für Unternehmen, Gewerbeimmobilien mieten Gotha, Industrie Immobilien Gotha









