Kapitalanleger aufgepasst
Exposé: Kapitalanleger aufgepasst
PLZ /Ort:
Kaufpreis
Wohnfläche
Zimmer
Grundstücksfläche
Flächen
Wohnfläche:
366,59 m²
Grundstücksfläche:
694,00 m²
Preise
Kaufpreis:
545.000,00 €
Vermittl.-Provision:
3,57 %
Sonstiges
Ihre Objektnr.:
502047
Objekttyp:
Mehrfamilienhaus
Heizungsart:
Zentralheizung
Befeuerung:
Gas
Zustand:
gepflegt
Zimmer:
15
Schlafzimmer:
3
Baujahr:
1994
vermietet:
1
denkmalgeschuetzt:
1
Ferienobjekt:
1
Energiepass
Art:
Bedarf
Gültig bis:
10.03.2025
Endenergiebedarf:
120,05
Wertklasse:
D
Ausstellungsdatum:
2025-03-11
Ausstattung
Objektbeschreibung
Das Mehrfamilienhaus in Boilstädt bei Gotha zeichnet sich durch seine solide Bauweise aus und fügt sich harmonisch in die ruhige ländliche Umgebung ein. Mit seiner Lage am Ortsrand bietet es den Bewohnern nicht nur einen hervorragenden Blick auf die weitläufigen Felder und die Natur, sondern auch eine angenehme Ruhe, die das ländliche Leben so reizvoll macht.
Das Gebäude erstreckt sich über drei Etagen und umfasst insgesamt sechs gut geschnittene Wohnungen, die bereits alle vermietet sind. Dies sorgt für eine stabile und angenehme Nachbarschaft, da jeder Mieter seinen eigenen Raum zum Wohlfühlen hat. Die Wohnungen sind ideal für Singles, Paare oder kleine Familien und bieten eine durchdachte Raumaufteilung, die sowohl Komfort als auch Funktionalität vereint.
Das Haus ist komplett unterkellert, was zusätzlichen Stauraum und praktische Nutzungsmöglichkeiten bietet. Im Keller befinden sich unter anderem ein Waschraum sowie weitere Lagerräume, die den Bewohnern mehr Platz für ihre persönlichen Gegenstände bieten. Der Keller ist gut belüftet und sorgt für eine angenehme, trockene Atmosphäre, sodass er vielseitig genutzt werden kann, sei es für das Lagern von Haushaltsgegenständen.
Mit der soliden Bauweise, der praktischen Aufteilung und der idealen Lage am Rande des Ortes, bietet das Mehrfamilienhaus eine wunderbare Gelegenheit, den Charme des ländlichen Lebens zu genießen, während man dennoch schnell in die Städte Gotha oder Erfurt gelangt. Die perfekte Kombination aus Natur und Anbindung an städtische Annehmlichkeiten macht dieses Zuhause zu einem attraktiven Ort für verschiedenste Bewohner.
Lage
Die Immobilie befindet sich in der charmanten Gemeinde Boilstädt, welche im Landkreis Gotha im malerischen Thüringen liegt.
Boilstädt bietet in der Tat eine perfekte Kombination aus ländlicher Idylle und hervorragender Anbindung an größere Städte. Der gemütliche Dorfcharakter, geprägt von traditionellen Häusern und einer engen Gemeinschaft, sorgt für eine hohe Lebensqualität. Trotz der ländlichen Lage ist man dank der schnellen Verkehrsanbindung in kürzester Zeit in Gotha, der Residenzstadt, die mit ihrer historischen Altstadt und zahlreichen Sehenswürdigkeiten zu einem kulturellen Ausflug einlädt.
Die direkte Nähe zu Gotha sorgt dafür, dass sämtliche Bedürfnisse des täglichen Lebens ohne lange Anfahrten abgedeckt werden können – von Supermärkten und Fachgeschäften über Ärzte bis hin zu Freizeitangeboten. Gleichzeitig bleibt Boilstädt ein Ort der Ruhe und Erholung, mit einer Fülle an Grünflächen und ländlichen Spaziermöglichkeiten, die das Leben hier besonders entspannt machen.
Die Nähe zur Landeshauptstadt Erfurt rundet das Ganze ab. Mit nur etwa 25 Kilometern Entfernung hat man die Möglichkeit, die urbanen Vorzüge einer Großstadt zu genießen, sei es beim Einkaufen, bei einem Restaurantbesuch oder beim kulturellen Genießen. Auch das Freizeitangebot in Erfurt, sei es in Form von Theater, Museen oder Veranstaltungen, steht den Boilstädtern offen. Und dank guter Verkehrsanbindung – sowohl mit dem Auto als auch über öffentliche Verkehrsmittel – ist die Hauptstadt schnell und unkompliziert erreichbar.
Insgesamt macht die Lage von Boilstädt das Leben hier besonders attraktiv: Die Ruhe des Dorfes, kombiniert mit der schnellen Erreichbarkeit der Städte Gotha und Erfurt, bietet eine ideale Balance zwischen ländlichem Charme und urbanem Komfort. Als Naherholungsgebiet bieten sich Wald und Wiesen rund um den Boxberg an.
Ausstattung
Das Mehrfamilienhaus in Boilstädt ist praktisch und durchdacht aufgebaut, mit einer klaren Gliederung der einzelnen Etagen, die den Bewohnern sowohl Funktionalität als auch Komfort bieten. Die vier Ebenen – Keller, Erdgeschoss, Obergeschoss und Dachgeschoss – sind optimal aufgeteilt, um den Bedürfnissen der verschiedenen Haushalte gerecht zu werden.
Im Keller befindet sich ein gemeinschaftlicher Waschraum, der für alle Bewohner zugänglich ist und zusätzliche Staufläche bietet. Der Raum ist funktional und bietet Platz für Waschmaschinen und Trockner, sodass die Wohnungen ihre eigenen Waschmöglichkeiten entlasten können.
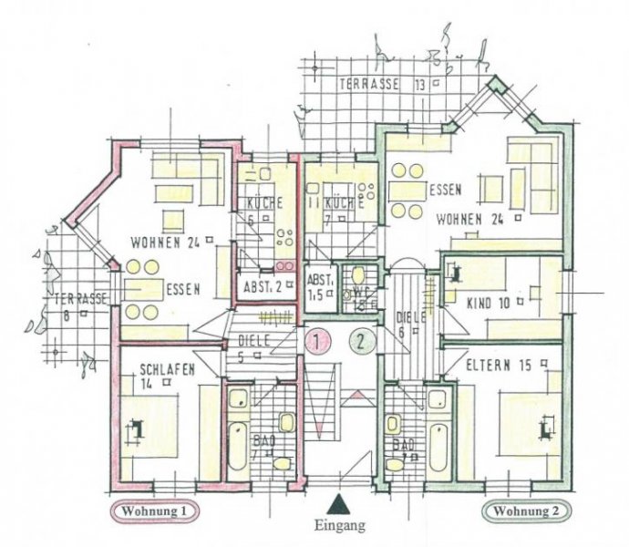
Das Erdgeschoss beherbergt jeweils eine Zweiraum- und eine Dreiraumwohnung. Beide sind gut geschnitten und bieten ausreichend Platz für eine kleine Familie oder Paare. Jede Wohnung verfügt über ein gemütliches Wohnzimmer, ein Schlafzimmer, eine Küche und ein Bad, sowie einen praktischen Abstellraum, der zusätzlichen Stauraum für diverse Utensilien bietet.
Im Obergeschoss finden sich ebenfalls eine Zweiraum- und eine Dreiraumwohnung, die den gleichen Komfort und die gleiche Ausstattung wie im Erdgeschoss bieten. Auch hier sind die Wohnungen großzügig geschnitten, mit viel Tageslicht, und die Raumaufteilung fördert das Wohlbefinden der Bewohner.
Das Dachgeschoss rundet das Gebäude ab. Die Wohnungen hier könnten aufgrund der Dachschrägen eine besonders gemütliche Atmosphäre haben, ohne auf Funktionalität zu verzichten. Diese Etage bietet auf gleicher Fläche ebenfalls eine Zweiraum- und eine Dreiraumwohnung, sodass alle Bewohner – unabhängig von ihrer Haushaltsgröße – den passenden Raum finden können.
Das gesamte Gebäude ist so konzipiert, dass jede Wohnung einen praktischen und komfortablen Lebensraum bietet.
Sonstige Angaben
Baujahr: 1994
Heizungsart: Zentralheizung
Befeuerung/Energieträger: Gas
Energieausweistyp: Bedarfsausweis
Energiekennwert: 120,05 kWh/(m²*a)
Energieeffizienzklasse: D
Das zum Verkauf stehende Gesamtobjekt bietet nach einem Erwerb für den Käufer auch eine langfristige Investmentmöglichkeit.
Da das Gebäude bereits in Teileigentum aufgeteilt ist, eröffnet dies dem Käufer die Möglichkeit, jede der sechs Wohnungen unabhängig voneinander im Nachgang zu veräußern.
Die derzeitige Jahresnettokaltmiete beträgt 28397,40 €
Häuser Gotha
HomeBooster hat diese Immobilie unter Gotha gespeichert. Die Angeben des Anbieters lauten HONNEF Immobilien Ansprechpartner Peter Honnef & Rudolf Steinert GbR, Schlossberg in 99867 Gotha. Thüringen ist hier die Oberkategorie dieses Immobilienexposé's.
Synonyme zur Suche Gotha Häuser:
Gotha Häuser online, Haus mieten und kaufen Gotha, günstige Häuser Gotha










