Gut laufendes Italienisches Restaurant am Boxhagener Platz
Exposé: Gut laufendes Italienisches Restaurant am Boxhagener Platz
PLZ /Ort:
Kaufpreis
Gesamtfläche
Gesamtfläche
Flächen
Gesamtfläche:
104,00 m²
Preise
Kaufpreis:
185.000,00 €
Sonstiges
Ihre Objektnr.:
BS422
Objekttyp:
Gastronomie
Boden:
Fliesen
Zustand:
gepflegt
Baujahr:
2022
Energiepass
Art:
Bedarf
Gültig bis:
2032-12-16
Endenergiebedarf:
64.40
Ausstattung
Objektbeschreibung
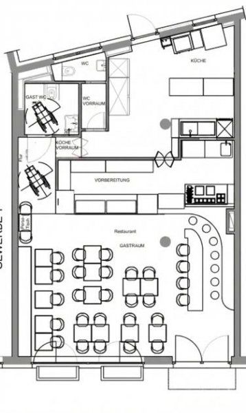
Zum Verkauf steht ein etabliertes italienisches Restaurant. Dieses befindet sich in einer modernen Neubau-Immobilie, die im Jahr 2023 eröffnet wurde und sich entsprechend in einem neuwertigen sowie einwandfreien Zustand befindet. Die Gastronomiefläche ist barrierefrei zugänglich und bietet im Innenbereich mehrere Sitzplätze. Ein besonderer Vorteil ist der direkte Zugang von der Küche in den Innenhof des Gebäudes, der funktionale Abläufe zusätzlich erleichtert.
Dieses Angebot richtet sich ideal an Gastronomen oder Investoren, die ein schlüsselfertiges Restaurant in attraktiver Neubau-Lage mit bestehender Infrastruktur, eingespieltem Personal und gewachsenem Kundenstamm übernehmen möchten.
Lage
Das Restaurant befindet sich in der Revaler Straße im Herzen von Berlin-Friedrichshain, einem der lebendigsten und beliebtesten Stadtteile Berlins. Die Umgebung ist geprägt von einer Mischung aus trendigen Bars, Cafés, kulturellen Einrichtungen und urbanem Flair. Dank der Nähe zur Mercedes-Benz Arena, dem Oberbaumbrücke-Bereich und der bekannten Simon-Dach-Straße profitiert das Restaurant von einer hohen Fußgängerfrequenz und einem stetigen Besucherstrom.
Friedrichshain ist sowohl bei Einheimischen als auch bei Touristen sehr gefragt, was die Lage besonders attraktiv für Gastronomiekonzepte macht. Öffentliche Verkehrsmittel wie U- und S-Bahn sind fußläufig erreichbar, ebenso wie zahlreiche Parkmöglichkeiten, wodurch das Restaurant für Gäste aus der gesamten Stadt leicht zugänglich ist. Die zentrale Lage kombiniert Urbanität, Sichtbarkeit und Lebensqualität – perfekte Voraussetzungen für ein erfolgreiches gastronomisches Konzept.
Ausstattung
Das Angebot umfasst die vollständige und hochwertige Restaurantausstattung inklusive aller Möbel, professioneller Küchengeräte, Pastamaschinen sowie sämtlicher Aussteller. Damit ist der Betrieb vollständig ausgestattet und sofort einsatzbereit. Die bestehenden Arbeitsverträge können auf Wunsch übernommen werden.
Der derzeitige gastronomische Schwerpunkt liegt auf italienischer Küche mit Fokus auf Pasta. Das Objekt bietet jedoch großes Potenzial, da eine Umstellung auf ein anderes gastronomisches Konzept ohne größeren Aufwand möglich ist. Die Übernahme des Restaurants kann kurzfristig erfolgen; lediglich der bisherige Name des Betriebs ist zu ändern.
Sonstige Angaben
Wir haben Ihr Interesse geweckt?
Hier auf dieser Seite finden Sie jetzt die Möglichkeit der Kontaktaufnahme. Für weitere Informationen (Termine, Anschrift u.ä.) benötigen wir Ihre Angaben: Name, Vorname, Anschrift, E-Mail, Telefonnummer (fest/mobil).
Anfragen ohne Angabe Ihrer Rückrufnummer und Ihrer Adresse können von uns nicht bearbeitet werden!
Für alle weiteren Informationen rufen Sie uns bitte unter der Telefonnummer 0155 60925274 an. Es betreut Sie: Til Bamberger
Die Angaben in diesem Angebot beruhen auf Angaben des Auftraggebers oder Dritten. Agas-Immobilien übernimmt keine Haftung und keine Gewähr für die Richtigkeit, Vollständigkeit und Aktualität dieser Angaben. Insbesondere die Angaben zur Wohnfläche, zur Nutzfläche und zur Aufteilung der Wohn-/Nutzfläche sind von uns nicht durch ein eigenes Aufmaß oder eine eigene Wohnflächenberechnung kontrolliert worden. Die Angaben zum Baujahr sind nicht durch eine Einsicht in die Bauakte überprüft worden. Irrtum, Auslassungen und Zwischenverwertung vorbehalten.
Nur ein geringer Anteil unserer Immobilien wird von uns im Internet präsentiert. Suchende können sich über unsere Website http://www.agas-immobilien.de/sie-suchen-wir-finden für Immobilien vormerken lassen. Sie erhalten dann Immobilienangebote, bevor diese online vermarktet werden.
Möchten Sie eine Immobilie verkaufen oder vermieten, wir informieren Sie gerne diskret und unverbindlich über Ihre Möglichkeiten.
www.agas-immobilien.de
Gewerbe Immobilien Berlin
Weitere Inserate zum mieten und kaufen finden sich unter Berlin. Berlin ist die geografische Zuordnung dieses Objektes zum mieten und kaufen.
Weitere Immobilien zum mieten und kaufen kommen von Agas Immobilien GmbH Ansprechpartner Matthias Wedel, Ackerstraße 9 in 10115 Berlin.
Synonyme zur Suche Berlin Gewerbe Immobilien:
Berlin Immobilien für Unternehmen, Gewerbeimmobilien mieten Berlin, Industrie Immobilien Berlin










