Zweifamilienhaus (vermietet - ca. 6,4 % Rendite) in ruhiger und dennoch zentraler Lage von Langen
Exposé: Zweifamilienhaus (vermietet - ca. 6,4 % Rendite) in ruhiger und dennoch zentraler Lage von Langen
PLZ /Ort:
Kaufpreis
Wohnfläche
Zimmer
Grundstücksfläche
Flächen
Wohnfläche:
180,00 m²
Nutzfläche:
38,00 m²
Grundstücksfläche:
872,00 m²
Preise
Kaufpreis:
285.000,00 €
Vermittl.-Provision:
2,975 % inkl. gesetzlicher MwSt.
Sonstiges
Ihre Objektnr.:
460_kia
Objekttyp:
Zweifamilienhaus
Heizungsart:
Zentralheizung
Befeuerung:
Öl
Zustand:
gepflegt
Stellplätze (Anz.):
2
Garagen (Anz.):
1
Zimmer:
7
Schlafzimmer:
5
Badezimmer:
2
Baujahr:
1913
vermietet:
1
Energiepass
Art:
Verbrauch
Gültig bis:
2034-03-04
E-Verbrauchskennw.:
125.87
Ausstattung
Objektbeschreibung
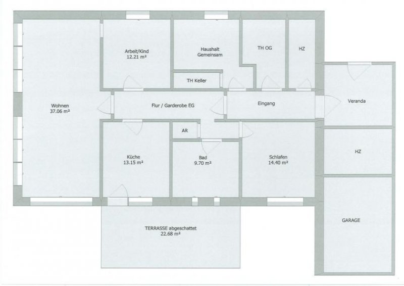
Dieses Haus bietet zwei Wohneinheiten und verfügt über ca. 180 m² Wohnfläche. Es befindet sich in guter, ruhiger Lage (Eckgrundstück mit Zugang aus West und Süd) mit Wiesen im Umfeld aber auch sehr guter Anbindung an Bus/Hauptstraße, Einkaufsmöglichkeiten etc. von Langen.
Die ca. 90 m² große Erdgeschoss-Wohnung mit einer ca. 18 m² großen Terrasse, setzt sich aus drei Zimmern, einem barrierefreiem Badezimmer und einer Küche zusammen.
Die ca. 91 m² große Wohnung im Dachgeschoss bietet 4,5 Zimmer, ein Badezimmer und eine Küche. Zusätzlich ist eine ca. 20 m² große Dachterrasse vorhanden und es kann ein Teil des Gartens mit genutzt werden
Des Weiteren bietet das Hauses noch Nutzflächen, wie z. B. einen Haushaltsraum mit Anschlüssen für Waschmaschine und Trockner je Wohneinheit, ein Schuppenraum je Mieteinheit, eine Eigentümerwerkstatt, Garage, Carport und Heizungsraum.
Beide Wohnungen sind aktuell noch vermietet könnten aber auch zur Eigennutzung dienen.
Lage
Langen jetzt "Geestland"
Geestland ist eine Stadt und selbstständige Gemeinde im Landkreis Cuxhaven in Niedersachen, die am 01. Januar 2015 aus der Fusion der Stadt Langen und der Samtgemeinde Bederkesa entstanden ist. Sie ist nach der Stadt Cuxhaven die Gemeinde mit der zweithöchsten Einwohnerzahl im Landkreis Cuxhaven.
Die Stadt Geestland grenzt im Nordwesten an die Gemeinde Wurster Nordseeküste (und an die Außenweser im Bereich ihrer Mündung in die Nordsee), im Norden an die Samtgemeinde Land Hadeln, im Nordosten an die Samtgemeinde Börde Lamstedt, im Osten an den Landkreis Rotenburg (Wümme) und im Süden an die Seestadt Bremerhaven sowie die Gemeinden Beverstedt und Schiffdorf.
Weiter Details unter: www.geestland.eu
Ausstattung
- Terrasse für die Erdgeschosswohnung
- Dachterrasse für die obere Wohnung
- Haushaltsraum mit Anschlüssen für Trockner und Waschmaschine je WE
- Schuppenraum je Mieteinheit
- Eigentümerwerkstatt
- Garage
- Carport
Sonstige Angaben
2023 auf Öl-Brennwerttechnik modernisiert
2020 umfangreiche Änderung und Modernisierung Erdgeschoss
1999 Ausbau Obergeschoss mit Dachterrasse
Häuser Langen (Landkreis Cuxhaven)
Weitere Inserate zum mieten und kaufen finden sich unter Langen (Landkreis Cuxhaven). Unter Niedersachsen sind weitere relevante Immobilien vorhanden.
Die Angeben des Anbieters lauten KOCH Immobilieagentur Ansprechpartner André Koch, Langner Str. 53 in 27607 Geestland.
Synonyme zur Suche Langen (Landkreis Cuxhaven) Häuser:
Langen (Landkreis Cuxhaven) Häuser online, Haus mieten und kaufen Langen (Landkreis Cuxhaven), günstige Häuser Langen (Landkreis Cuxhaven)










