Bestandsobjekt in zentraler Altstadtlage von Isny mit erheblichen Entwicklungsmöglichkeiten
Exposé: Bestandsobjekt in zentraler Altstadtlage von Isny mit erheblichen Entwicklungsmöglichkeiten
PLZ /Ort:
Kaufpreis
Wohnfläche
Zimmer
Grundstücksfläche
Flächen
Wohnfläche:
429,00 m²
Nutzfläche:
320,00 m²
Grundstücksfläche:
265,00 m²
Preise
Kaufpreis:
650.000,00 €
Vermittl.-Provision:
provisionsfrei
Sonstiges
Ihre Objektnr.:
KH0331_LE_4
Zustand:
Teil- / Vollrenovierungsbed.
Stellplätze (Anz.):
4
Garagen (Anz.):
4
Zimmer:
10
Baujahr:
1978
Energiepass
Ausstattung
Objektbeschreibung
Zum Verkauf steht ein Wohn- und Geschäftshaus im Zentrum von Isny in der Fußgängerzone. Das Baujahre ist ca. 1978.
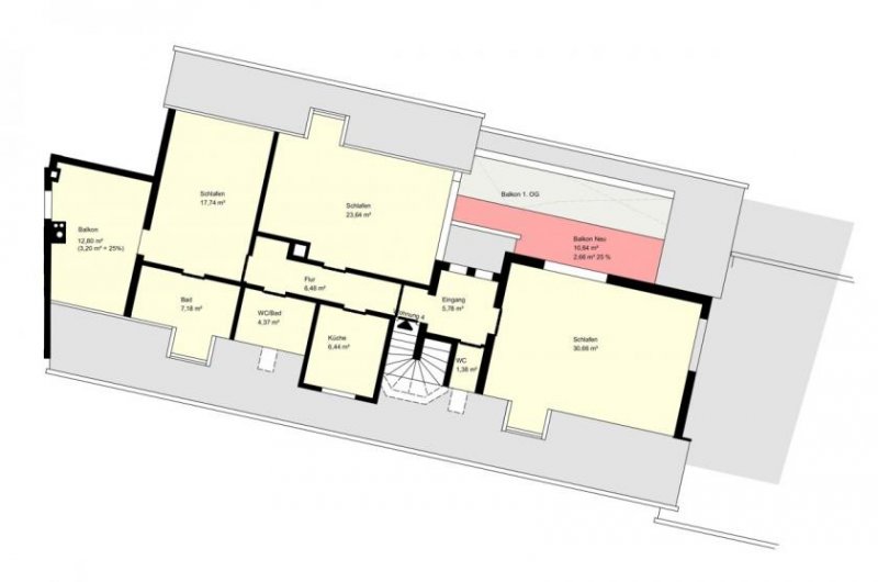
Das Wohn- und Geschäftshaus mit insgesamt ca. 429 m² Wohn- und Nutzfläche in bester Lage von Isny verfügt über eine Gewerbefläche im EG, 2 Wohnungen im 1. OG, 1 Wohnung im 2. OG sowie über Kellerflächen. Das Objekt ist renovierungsbedürftig und bietet ein sehr großes Entwicklungs- und Gestaltungspotential.
Die Gewerbefläche im Erdgeschoss beträgt ca. 179 m². Es gab bereits Pläne für den Umbau in Wohnungen, z.B. den Einbau von drei bis vier 1-Zimmer-Appartements.
Im 1. Obergeschoss befindet sich eine großzügige 5-Zimmer-Wohnung mit ca. 120 m² Wohnfläche und ein 1-Zimmer-Appartement (ca. 23 m² Wohnfläche) mit Küche und Bad. Die 5-Zimmer-Wohnung verfügt über einen kleinen Balkon mit ca. 6,71 m² und einen sehr großen Balkon (ca. 40 m²) mit Blick über auf die Altstadt.
Im 2. Obergeschoss ist befindet sich eine 3-Zimmer-Dachgeschoss-Wohnung (ca. 107 m² Wohnfläche) mit herrlichem Blick auf die Altstadt von Isny. Sie verfügt über einen Balkon mit ca. 12,8 m².
Alle Wohnung werden derzeit renoviert und stehen kurz vor der Fertigstellung.
Bei der Grundstücksgröße handelt es sich um einen Ca.-Wert, da das Grundstück noch geteilt und vermessen werden muss.
Lage
Die zum Verkauf stehende Wohn- und Geschäftshaus befindet sich in absoluter 1A-Lage im Herzen der historischen Altstadt von Isny im Allgäu. Direkt in der stark frequentierten Fußgängerzone gelegen, profitiert die Immobilie von einer hervorragenden Sichtbarkeit und einer hohen Passantenfrequenz. Der Standort ist geprägt von attraktiven Einzelhandelsgeschäften, Gastronomie sowie vielfältigen Dienstleistungsangeboten, die eine lebendige Einkaufsatmosphäre schaffen.
Isny im Allgäu verfügt über ein Einzugsgebiet von rund 30.000 Personen, das die Stadt als zentralen Versorgungsstandort der Region etabliert. Neben der Funktion als Einkaufs- und Versorgungszentrum zeichnet sich Isny durch seine hohe touristische Bedeutung aus. Als anerkannter Luftkurort am Rande des Allgäus zieht die Stadt jährlich zahlreiche Gäste aus dem In- und Ausland an. Die malerische Altstadt, ein breites Freizeitangebot sowie die Nähe zu beliebten Ausflugszielen wie dem Bodensee, den Allgäuer Alpen oder dem benachbarten Österreich sorgen für eine stetig wachsende Besucherzahl.
In Kombination aus lokaler Kaufkraft, regionalem Einzugsgebiet und touristischem Zustrom ergibt sich ein hochattraktiver Standort für Einzelhändler, Gastronomen oder Dienstleistern mit hervorragenden Umsatzpotenzialen. Gleichzeitigt herrscht in Isny ein großer Bedarf an Wohnungen.
Häuser Isny im Allgäu
Dieses Immobilien-Exposé wird geführt unter Isny im Allgäu. Unter Baden-Württemberg sind weitere relevante Immobilien vorhanden.
Die Angeben des Anbieters lauten Oesterle Immobilien GmbH Ansprechpartner Kai Oesterle, Wilhelmstraße 1 in 88299 Leutkirch.
Synonyme zur Suche Isny im Allgäu Häuser:
Isny im Allgäu Häuser online, Haus mieten und kaufen Isny im Allgäu, günstige Häuser Isny im Allgäu






