499.000,- für 281 qm Altstadthaus mit 6 Wohn,- + 1 Gewerbeeinheit in 1A Lage und 30.885,- Mietertrag
Exposé: 499.000,- für 281 qm Altstadthaus mit 6 Wohn,- + 1 Gewerbeeinheit in 1A Lage und 30.885,- Mietertrag
PLZ /Ort:
Kaufpreis
Wohnfläche
Zimmer
Grundstücksfläche
Flächen
Wohnfläche:
281,00 m²
Gesamtfläche:
281,00 m²
Grundstücksfläche:
170,00 m²
Preise
Kaufpreis:
499.000,00 €
Vermittl.-Provision:
4,99% vom Kaufpreis (inkl. MwSt.)
Sonstiges
Ihre Objektnr.:
863
Objekttyp:
Mehrfamilienhaus
Heizungsart:
Etagenheizung
Befeuerung:
Gas
Zustand:
gepflegt
Bad:
Fenster
Zimmer:
19
Schlafzimmer:
10
Badezimmer:
6
Baujahr:
1900
vermietet:
1
Energiepass
Art:
Bedarf
Gültig bis:
23.01.2027
Endenergiebedarf:
218,8
EP inkl. Warmwasser:
ja
Ausstattung
Kamin
Abstellraum
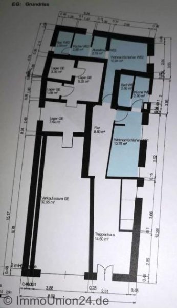
Objektbeschreibung
281 m² vermietete Gesamtfläche verteilen sich auf eine 53,8 m² Gewerbeeinheit plus 6 Wohneinheiten mit zusammen 227,49 m² Wohnfläche + Mietertrag p.a. 30.885,- EUR + KEIN Denkmalschutz + ab SOFORT zur Übernahme für 499.000,- EUR;
Das Wohn- und Geschäftshaus wurde um 1900 im historischen Altstadtkern von Lauf a.d. Pegnitz in 1A-Sichtlage errichtete.
Im Erdgeschoss des Hauses befindet sich eine 53,80 m² Gewerbeeinheit und weitere 6 Wohneinheiten mit zusammen 227,49 m² Wohnfläche verteilen sich im Gebäude auf 3 Etagen.
Der jährliche Mietertrag beläuft sich auf 30.885,- Euro.
Lassen Sie sich dieses werthaltige Renditeobjekt in gesuchter Citylage nicht entgehen und vereinbaren mit uns einen Besichtigungstermin, gerne auch am Wochenende.
###############################################################################################################
Die ImmoUnion24 GmbH sucht Kooperationspartner (m/w/d) auf freiberuflicher Basis ohne Kapitaleinsatz
Sie sind im Immobilienbereich tätig oder möchten als selbstständiger Immobilienberater durchstarten? Dann sind Sie bei uns genau richtig!
Wir suchen motivierte Kooperationspartner (m/w/d), die uns bei der Vermittlung und Betreuung von Immobilien unterstützen ohne finanziellen Eigenaufwand!
Was wir bieten:
✔ Flexible Zusammenarbeit Sie bestimmen Ihre Arbeitszeiten selbst
✔ Attraktive Provisionsbeteiligung Ihre Leistung wird fair vergütet
✔ Keine Investitionen nötig Sie starten ohne Kapitaleinsatz
✔ Professionelle Unterstützung Nutzung unseres Netzwerks und unserer Erfahrung
Was Sie mitbringen:
✔ Begeisterung für Immobilien und Vertrieb
✔Kommunikationsstärke und Eigeninitiative
✔ Idealerweise Erfahrung in der Immobilienbranche (kein Muss)
Werden Sie Teil eines starken Netzwerks und profitieren Sie von einem bewährten System.
📞 Interesse? Kontaktieren Sie uns unter 09126 29 59 675 oder per Mail an info@immounion24.de
Lage
Zentrale 1A-Sichtlage im historischen Altstadtkern von Lauf a.d. Pegnitz.
Durch die zentrale Lage, im direkten Einzugsgebiet der Metropolregion Nürnberg / Fürth, sowie durch die verkehrsgünstige Lage zu den Autobahnen ist die Stadt Lauf ein gefragter Standort.
Über verschiedene Busverbindungen ist Lauf an das öffentliche Netz angebunden.
Die S-Bahn Linie sowie die Regionalbahn, verbinden Lauf mit Nürnberg.
Der Bahnhof Lauf und eine Bushaltestelle sind fußläufig erreichbar.
Ausstattung
- 1A Sichtlage im historischen Altstadtkern von Lauf a.d. Peg.
- 281 m² vermietete Gesamtfläche
- verteilt auf 6 Wohneinheiten und 1 Gewerbeeinheit
- 227,49 m² Wohnfläche
- 53,80 m² Gewerbefläche
- kein Denkmalschutz
- Mietertrag 30.885,- Euro p.a.
- ab SOFORT zur Übernahme
###############################################################################################################
Die ImmoUnion24 GmbH sucht Kooperationspartner (m/w/d) auf freiberuflicher Basis ohne Kapitaleinsatz
Sie sind im Immobilienbereich tätig oder möchten als selbstständiger Immobilienberater durchstarten? Dann sind Sie bei uns genau richtig!
Wir suchen motivierte Kooperationspartner (m/w/d), die uns bei der Vermittlung und Betreuung von Immobilien unterstützen ohne finanziellen Eigenaufwand!
Was wir bieten:
✔ Flexible Zusammenarbeit Sie bestimmen Ihre Arbeitszeiten selbst
✔ Attraktive Provisionsbeteiligung Ihre Leistung wird fair vergütet
✔ Keine Investitionen nötig Sie starten ohne Kapitaleinsatz
✔ Professionelle Unterstützung Nutzung unseres Netzwerks und unserer Erfahrung
Was Sie mitbringen:
✔ Begeisterung für Immobilien und Vertrieb
✔Kommunikationsstärke und Eigeninitiative
✔ Idealerweise Erfahrung in der Immobilienbranche (kein Muss)
Werden Sie Teil eines starken Netzwerks und profitieren Sie von einem bewährten System.
📞 Interesse? Kontaktieren Sie uns unter 09126 29 59 675 oder per Mail an info@immounion24.de
Sonstige Angaben
Die ImmoUnion24 GmbH sucht Kooperationspartner (m/w/d) auf freiberuflicher Basis ohne Kapitaleinsatz
Sie sind im Immobilienbereich tätig oder möchten als selbstständiger Immobilienberater durchstarten? Dann sind Sie bei uns genau richtig!
Wir suchen motivierte Kooperationspartner (m/w/d), die uns bei der Vermittlung und Betreuung von Immobilien unterstützen ohne finanziellen Eigenaufwand!
Was wir bieten:
✔ Flexible Zusammenarbeit Sie bestimmen Ihre Arbeitszeiten selbst
✔ Attraktive Provisionsbeteiligung Ihre Leistung wird fair vergütet
✔ Keine Investitionen nötig Sie starten ohne Kapitaleinsatz
✔ Professionelle Unterstützung Nutzung unseres Netzwerks und unserer Erfahrung
Was Sie mitbringen:
✔ Begeisterung für Immobilien und Vertrieb
✔Kommunikationsstärke und Eigeninitiative
✔ Idealerweise Erfahrung in der Immobilienbranche (kein Muss)
Werden Sie Teil eines starken Netzwerks und profitieren Sie von einem bewährten System.
📞 Interesse? Kontaktieren Sie uns unter 09126 29 59 675 oder per Mail an info@immounion24.de
#################################################################################
Die ImmoUnion24 GmbH erhält vom Käufer bei Abschluss eines durch die ImmoUnion24 GmbH vermittelten und notariell beurkundeten Kaufvertrages zu dieser Immobilie 4,99 % inkl. MwSt. Käuferprovision.
Die Käuferprovision wird berechnet aus dem Gesamterwerbspreis und ist verdient am Tag der notariellen Beurkundung des Kaufvertrages.
In unseren Angebot separat ausgewiesene KfZ Stellplätze wie z.B. Garagen, Carport`s usw. sind selbstverständlich auch provisionspflichtig.
Die ImmoUnion24 GmbH hat auch einen Maklervertrag mit dem Verkäufer abgeschlossen.
Der Provisionsanspruch gilt auch gegenüber Lebensgefährten, Verwandten, Familienmitgliedern, Lebensgemeinschaften, Betriebsvertretern oder Franchisegebern/-partnern.
Kontaktaufnahme, Besichtigungen, Verhandlungen erfolgen ausschließlich über unser Büro !
Schadenersatzansprüche sind uns gegenüber, auch bei eigenen Fehlern, mit Ausnahme von grob fahrlässigem Verhalten, ausgeschlossen. Nach § 242 BGB muss eine Vorkenntnis umgehend schriftlich und schlüssig unter Angabe der Bezugsquelle vom Angebotsempfänger nachgewiesen werden, da sonst die Gelegenheit zum Erwerb dieses Objektes als bisher unbekannt gilt.
Das Angebot ist ausschließlich nur für Sie bestimmt und daher vertraulich zu behandeln. Bei Weitergabe an Dritte entsteht Provisionspflicht. Es gelten die AGB`s der ImmoUnion24 GmbH. Alle Angaben beruhen auf Aussagen des Verkäufers / Eigentümers oder eines Dritten. Der Makler übernimmt keine Haftung. Irrtum vorbehalten !
Häuser Lauf an der Pegnitz
Weitere Inserate zum mieten und kaufen finden sich unter Lauf an der Pegnitz. Am Anfang suchen User zuerst auf der Seite Bayern.
Die Angeben des Anbieters lauten ImmoUnion24 GmbH Ansprechpartner Jörg Harandt, Allersberger Str. 185 F in 90461 Nürnberg.
Synonyme zur Suche Lauf an der Pegnitz Häuser:
Lauf an der Pegnitz Häuser online, Haus mieten und kaufen Lauf an der Pegnitz, günstige Häuser Lauf an der Pegnitz










