Zentrumsnahe Gewerbeeinheit mit Balkon in Zwickau! Gerade neu vermietet!
Exposé: Zentrumsnahe Gewerbeeinheit mit Balkon in Zwickau! Gerade neu vermietet!
Strasse:
PLZ /Ort:
Kaufpreis
Gesamtfläche
Gesamtfläche
Flächen
Gesamtfläche:
56,18 m²
Preise
Kaufpreis:
50.000,00 €
Vermittl.-Provision:
2.975,- EUR inkl. 19 % MwSt.
Sonstiges
Ihre Objektnr.:
Ba50 GWE1VK
Objekttyp:
Bueroflaeche
Heizungsart:
Zentralheizung
Befeuerung:
Gas
Boden:
Teppich
Zimmer:
1
Baujahr:
1859
vermietet:
1
Energiepass
Art:
Verbrauch
E-Verbrauchskennw.:
81.00
EP inkl. Warmwasser:
ja
Baujahr:
2002
Jahrgang:
2014
Gebäudeart:
nichtwohn
Ausstattung
Objektbeschreibung
Das Objekt wurde lt. Energieausweis 1859 massiv erbaut und 2002 umfangreich saniert.
Es befindet sich in der zentrumsnahen Bahnhofstraße.
Die Zwickauer Innenstadt ist nur 8 Minuten zu Fuß entfernt.
Lage
Die ca. 90.000 Einwohner zählende Stadt Zwickau liegt im Zentrum des westsächsischen Industriegebietes am Nordrand des Erzgebirges. Sie ist die viertgrößte Stadt im Freistaat Sachsen und hat als Oberzentrum einen Einzugsbereich von ca. 480.000 Menschen. Die Stadt blickt zurück auf eine 900jährige Geschichte und hat Persönlichkeiten wie Robert Schumann, August Horch und Max Pechstein hervorgebracht.
Die geografische Lage zwischen den Autobahnen A 4, A 72 und der Schnellstraße B 93 garantiert optimale Erreichbarkeit und schnelle Verbindung zu anderen Wirtschaftszentren. Zwickau ist im Bereich Wirtschaft und Arbeitsmarkt positiv aufgestellt. Bei einem Städteranking der IHK zur Standortattraktivität Südwestsachsens belegte Zwickau einen der vorderen Plätze. Punkten konnte die Stadt insbesondere bei Industrieumsatz je Einwohner, verfügbaren Gewerbeflächen, den hohen Anteil an sozialversicherungspflichtigen Beschäftigten sowie bei der einzelhandelsrelevanten Kaufkraft und auch der Breitbandverfügbarkeit.
Die von einem Grüngürtel umschlossene Innenstadt beherbergt herausragende Bauwerke. In der aufwendig sanierten Altstadt rund um den Dom St. Marien finden Sie zahlreiche Restaurants, Cafés und Geschäfte. Vielfältige kulturelle Einrichtungen und Veranstaltungen sowie ein breites Spektrum an Ausflugszielen bieten den Bürgern und Gästen umfangreiche Möglichkeiten zur Freizeitgestaltung.
Das Objekt befindet sich fußläufig nur ca. 8 Minuten von der Innenstadt entfernt.
Den Zwickauer Hauptbahnhof erreicht man in nur 2 Minuten zu Fuß.
230 m vom Objekt entfernt befindet sich ein öffentlicher Parkplatz.
Die Haltestelle ,,Bahnhofstraße" erreicht man in 100 m.
Ausstattung
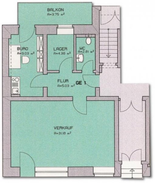
Die Gewerbeeinheit befindet sich im Erdgeschoss und kann über einen direkten Eingang am Fußgängerweg oder über das Treppenhaus betreten werden.
Sie umfasst eine Fläche von ca. 56,18 m² und hat große Fenster, wodurch sie einen hellen Eindruck hinterlässt.
Die Gewerbeeinheit teilt sich lt. Grundriss wie folgt auf:
- Flur: 5,03 m²
- WC: 2,81 m²
- Lager: 4,38 m²
- Büro: 9,03 m²
- Verkaufsfläche: 31,18 m²
- Balkon
Das WC ist raumhoch gefliest.
Das Büro ist mit Laminat ausgestattet, die restlichen Räume sind mit Teppichboden versehen.
Sonstige Angaben
Die Gewerbeeinheit ist seit dem 01.05.2025 neu vermietet. Der Mieter zahlt eine Kaltmiete von 281 EUR, eine Vorauszahlung für Neben- und Betriebskosten in Höhe von 174 EUR, somit eine Gesamtmiete von 455 EUR.
Der Erwerber wird Mitglied einer Wohneigentümergemeinschaft WEG mit einem Miteigentumsanteil von 79/1.000. Es ist lt. Wirtschaftsplan 2024 durch den Erwerber ein monatliches Hausgeld in Höhe von 168,00 EUR zu zahlen. Davon sind bei Vermietung ca. 2/3 als Betriebskosten umlegbar.
Der Energieausweis ist dem Exposé als pdf-Dokument beigefügt.
Bitte nutzen Sie das Kontaktformular, um uns Ihre Fragen bzw. Ihren Besichtigungswunsch mitzuteilen. Wir nehmen schnellstmöglich den Kontakt zu Ihnen auf bzw. senden Ihnen gern ergänzende Unterlagen entsprechend Ihrer Anfrage zu.
Alle Angaben beruhen auf Aussagen der Eigentümer bzw. basieren auf den uns bis dato vorliegenden Unterlagen und erfolgen ohne Gewähr. Irrtum und zwischenzeitlicher Verkauf bleiben vorbehalten. Exposé © 2024, Immobilienbüro Kühn
Gewerbe Immobilien Zwickau
HomeBooster hat dieses Objekt zum mieten und kaufen unter Zwickau eingetragen. Weitere Objekte sind unter Sachsen auffindbar.
Weitere Immobilien zum mieten und kaufen kommen von Immobilienbüro Kühn GmbH & Co. KG Ansprechpartner Wolfgang Kühn, Jahnstraße 17 in 08058 Zwickau.
Synonyme zur Suche Zwickau Gewerbe Immobilien:
Zwickau Immobilien für Unternehmen, Gewerbeimmobilien mieten Zwickau, Industrie Immobilien Zwickau










