WOW! Geräumige 3 Zimmer Wohnung mit ca. 116m², 2 Bädern und EBK in Berlin-Mitte!
Exposé: WOW! Geräumige 3 Zimmer Wohnung mit ca. 116m², 2 Bädern und EBK in Berlin-Mitte!
Strasse:
PLZ /Ort:
Kaltmiete
Wohnfläche
Zimmer
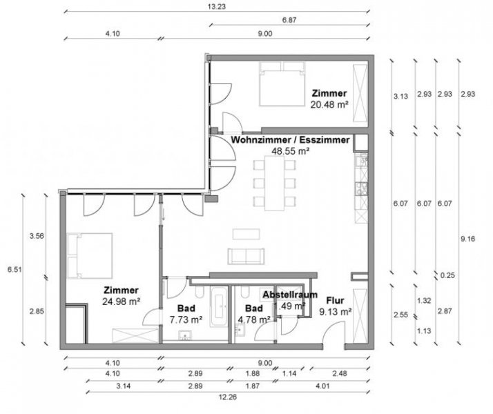
Flächen
Wohnfläche:
116,65 m²
Preise
Kaltmiete:
2.200,00 €
Warmmiete:
2.785,00 €
Nebenkosten:
585,00 €
Kaution:
6600
Sonstiges
Ihre Objektnr.:
CA607_2
Objekttyp:
Etage
Heizungsart:
Fussboden
Fahrstuhl:
Personen
Zimmer:
3
Badezimmer:
2
Baujahr:
2019
Energiepass
Art:
Bedarf
Gültig bis:
2029-04-07
Endenergiebedarf:
65.40
Ausstattung
Objektbeschreibung
Diese großzügige 2 Zimmer Wohnung mit ca. 67m² Wohnfläche im 2. Stock des modernen Wohnkomplexes "Charlie Living" in Berlin-Mitte sucht einen neuen Mieter. Tolle Design-Details, eine hochwertige Ausstattung und viele ergänzende Mieter-Services machen das Wohnen im "Charlie Living" zu einem echten Premium-Erlebnis.
Hochwertiges Eichenparkett mit Fußbodenheizung, Fenster mit Westausrichtung und die schicke Einbauküche...
Neugierig geworden? Alle Informationen und das vollständige Exposé erhalten Sie schnell und unkompliziert auf Anfrage.
Sonstige Angaben
Wir haben Ihr Interesse geweckt?
Hier auf dieser Seite finden Sie jetzt die Möglichkeit der Kontaktaufnahme. Für weitere Informationen (Termine, Anschrift u.ä.) benötigen wir Ihre Angaben: Name, Vorname, Anschrift, E-Mail, Telefonnummer (fest/mobil).
Anfragen ohne Angabe Ihrer Rückrufnummer und Ihrer Adresse können von uns nicht bearbeitet werden!
Für alle weiteren Informationen rufen Sie uns bitte unter der Telefonnummer 0172 234 22 12 an. Es betreut Sie:
Romy Bollmann
Angaben zum Energieausweis:
Baujahr 2019
Zustand Neuwertig
Energieausweis Bedarfsausweis
Endenergiebedarf 66 kWh/(m2*a)
Energieausweis gültig bis 07.04.2029
Baujahr lt. Energieausweis 2019
wesentlicher Energieträger Fernwärme
Die Angaben in diesem Angebot beruhen auf Angaben des Auftraggebers oder Dritten. Agas-Immobilien übernimmt keine Haftung und keine Gewähr für die Richtigkeit, Vollständigkeit und Aktualität dieser Angaben. Irrtum, Auslassungen und Zwischenverwertung vorbehalten. Die im Exposé genannten Maßangaben (einschließlich bemaßter Grundrisse) sind als Circa-Angaben zu verstehen, welche vereinzelt Abweichungen vorweisen können. Die in den Grundrissen gezeigte Möblierung ist nur als Einrichtungsvorschlag zu verstehen, das Objekt wird unmöbliert übergeben.
Nur ein geringer Anteil unserer Immobilien wird von uns im Internet präsentiert. Suchende können sich über unsere Website http://www.agas-immobilien.de/sie-suchen-wir-finden für Immobilien vormerken lassen. Sie erhalten dann Immobilienangebote, bevor diese online vermarktet werden.
Folge agas.berlin auf Instagram oder Facebook und sei immer zuerst informiert!
Möchten Sie eine Immobilie verkaufen oder vermieten, wir informieren Sie gerne diskret und unverbindlich über Ihre Möglichkeiten.
www.agas-immobilien.de
Wohnungen Berlin
Weitere Inserate zum mieten und kaufen finden sich unter Berlin. Berlin ist die geografische Zuordnung dieses Objektes zum mieten und kaufen.
Die Daten zu diesem Anbieter lauten: Agas Immobilien GmbH Ansprechpartner Matthias Wedel, Ackerstraße 9 in 10115 Berlin.
Synonyme zur Suche Berlin Wohnungen:
Berlin günstige Wohnung, Wohnungsanzeigen Berlin










