Wohntraum auf zwei Etagen in der Innenstadt
Exposé: Wohntraum auf zwei Etagen in der Innenstadt
PLZ /Ort:
Kaltmiete
Wohnfläche
Zimmer
Flächen
Wohnfläche:
110,00 m²
Preise
Kaltmiete:
970,00 €
Warmmiete:
1.350,00 €
Nebenkosten:
130,00 €
Heizkosten:
200,00 €
Kaution:
2910.00
Stellplatz (Miete):
50,00 €
Sonstiges
Ihre Objektnr.:
502125
Objekttyp:
Etage
Heizungsart:
Zentralheizung
Befeuerung:
Gas
Stellplatz-Art:
Freiplatz
Zustand:
gepflegt
Stellplätze (Anz.):
1
Zimmer:
3
Schlafzimmer:
2
Badezimmer:
1
Energiepass
Ausstattung
Objektbeschreibung
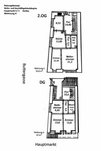
Die angebotene Wohnung befindet sich in einem gepflegten Wohn- und Geschäftshaus direkt am Hauptmarkt.
Die besondere Maisonettewohnung erstreckt sich über das zweite Obergeschoss, sowie das Dachgeschoss des Hauses. Beide Ebenen sind bequem vom Hausflur aus begehbar und innerhalb der Wohnung durch eine stilvolle Holz Wendeltreppe miteinander verbunden.
Lage
Die Wohnung liegt in bester Innenstadtlage von Gotha direkt am historischen Hauptmarkt. Die zentrale und zugleich repräsentative Lage bietet eine hervorragende Infrastruktur. Einkaufsmöglichkeiten, Cafés, Restaurants, Ärzte, Apotheken sowie öffentliche Einrichtungen befinden sich in unmittelbarer Nähe und sind bequem zu Fuß erreichbar.
Die Anbindung an den öffentlichen Nahverkehr ist sehr gut. Auch Schulen und Kindertagesstätten sind in der Umgebung vorhanden. Die historische Altstadt mit ihren Sehenswürdigkeiten und kulturellen Angeboten verleiht dem Wohnumfeld eine besondere Atmosphäre und hohe Lebensqualität.
Ausstattung
Die Wohnung überzeugt durch ihre besondere Raumaufteilung über zwei Ebenen und die hochwertige Verbindung durch eine Holz Wendeltreppe.
Das großzügige Wohnzimmer mit Stuckdecke stellt ein besonderes Highlight dar und unterstreicht den stilvollen Charakter der Immobilie.
Die große Küche mit offenem Essbereich bietet viel Platz für gemeinsames Kochen und geselliges Beisammensein.
Das Gäste WC im unteren Bereich sorgt für zusätzlichen Komfort.
Im Dachgeschoss stehen ein Abstellraum mit Waschmaschinenanschluss, ein großes Schlafzimmer mit angeschlossenem weiteren Zimmer, sowie ein modern ausgestattetes Badezimmer mit Spiegelschrank, Holz Waschtisch, Dusche und Badewanne zur Verfügung.
Ein Kellerraum ergänzt das Platzangebot sinnvoll. Der Innenhof mit den Mülltonnen ist praktisch angelegt und gut zugänglich.
Auf dem Innenhof kann ein Auto abgestellt werden.
Sonstige Angaben
Befeuerung/Energieträger: Gas
Heizungsart: Zentralheizung
I
Wohnungen Gotha
HomeBooster hat diese Immobilie unter Gotha gespeichert. Thüringen ist die geografische Zuordnung dieses Objektes zum mieten und kaufen.
Die Daten zu diesem Anbieter lauten: HONNEF Immobilien Ansprechpartner Peter Honnef & Rudolf Steinert GbR, Schlossberg in 99867 Gotha.
Synonyme zur Suche Gotha Wohnungen:
Gotha günstige Wohnung, Wohnungsanzeigen Gotha










