Wohnen im Zentrum
Exposé: Wohnen im Zentrum
PLZ /Ort:
Kaltmiete
Wohnfläche
Zimmer
Flächen
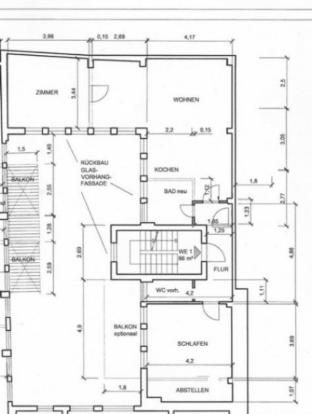
Wohnfläche:
73,96 m²
Preise
Kaltmiete:
490,00 €
Warmmiete:
700,00 €
Nebenkosten:
210,00 €
Kaution:
1470.00
Sonstiges
Ihre Objektnr.:
501374
Heizungsart:
Fernheizung
Zustand:
gepflegt
Zimmer:
3
Baujahr:
1900
Energiepass
Art:
Verbrauch
Gültig bis:
12.08.2028
E-Verbrauchskennw.:
92,9
EP inkl. Warmwasser:
ja
Ausstellungsdatum:
2018-08-12
Ausstattung
Objektbeschreibung
Sie interessieren sich für eine 3 Zimmer Wohnung in einem Wohn- und Geschäftshaus in der Gothaer Innenstadt.
Lage
Die Wohnung liegt direkt im Zentrum, in der Erfurter Straße. Sie erreichen in wenigen Minuten die Haltestellen des öffentlichen Nahverkehrs.
Der Schloßpark lädt zum Verweilen und Erholung in der Freizeit ein.
Ausstattung
Die Wohnungen wurden im Zuge der Umnutzung im Jahre 2014 neu saniert.
Es wurden Bäder mit Dusche eingebaut.
Die Wohnung verfügt über einen Balkon in den Nachbar-Innenhof.
Die Wohnräumen haben einen hellen Laminatboden in Holzoptik und die Wände sind weiß gestrichen.
Sonstige Angaben
Baujahr: 1900
Befeuerung/Energieträger: Fernwärme
Energieausweistyp: Verbrauchsausweis
Energiekennwert: 92,9 kWh/(m²*a)
Energie mit Warmwasser: Ja
Heizungsart: Fernwärme
Es ist kein Kellerraum zur Wohnung vorhanden.
Wohnungen Gotha
HomeBooster hat diese Immobilie unter Gotha gespeichert. Thüringen ist die geografische Zuordnung dieses Objektes zum mieten und kaufen.
Die Daten zu diesem Anbieter lauten: HONNEF Immobilien Ansprechpartner Peter Honnef & Rudolf Steinert GbR, Schlossberg in 99867 Gotha.
Synonyme zur Suche Gotha Wohnungen:
Gotha günstige Wohnung, Wohnungsanzeigen Gotha









