Villa Kaatsheuvel
Exposé: Villa Kaatsheuvel
PLZ /Ort:
Kaufpreis
Wohnfläche
Zimmer
Flächen
Wohnfläche:
1,00 m²
Preise
Kaufpreis:
239.500,00 €
Sonstiges
Ihre Objektnr.:
24
Objekttyp:
Chalet
Bad:
Dusche
Küche:
EBK
Zimmer:
4
Energiepass
Ausstattung
Objektbeschreibung
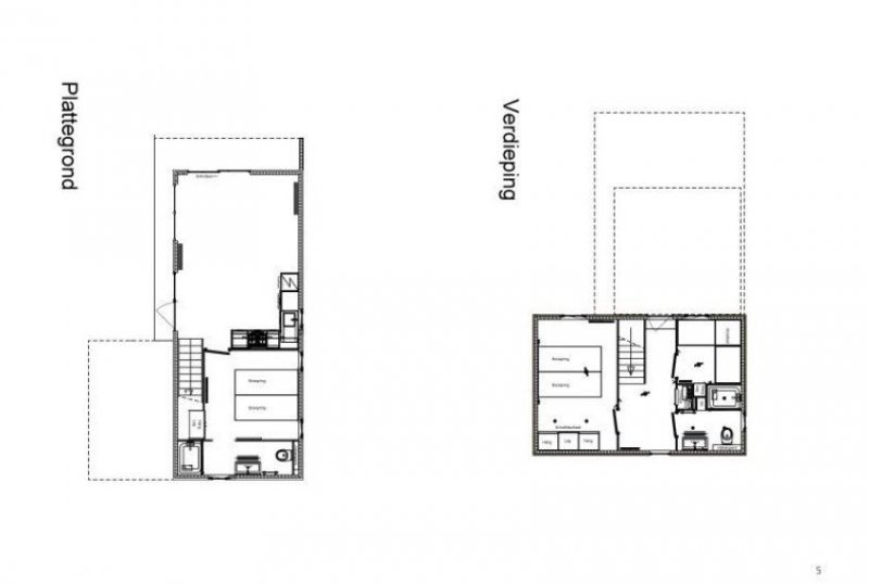
Diese neue Erholung für sechs Personen ist architektonisch gestaltet. Durch die vielen Fenster haben Sie eine schöne Aussicht vom Wohnzimmer. Diese Erholungsvilla verfügt über 3 Schlafzimmer und ist daher Geeignet für 6 Personen. Das Wohnzimmer im Erdgeschoss ist geräumig. Die offene Küche, die mit allen denkbaren Einbaugeräten ausgestattet ist, fällt ins Auge. Es gibt auch ein Schlafzimmer mit Bad en suite im Erdgeschoss. Der erste Stock verfügt über zwei Schlafzimmer und ein Badezimmer. Es ist möglich, voll elektrisch zu kochen, die Heizung und die Warmwasserversorgung sind ebenfalls voll elektrisch und damit deutlich umweltfreundlicher und als vollständig gasfrei ideal für den Freizeitnutzer der Gegenwart und der Zukunft. Der angegebene Preis beinhaltet kein Grundstück, Möbelpaket und Landschaftsgestaltung.
Häuser
Weiterhin können Sie Inserate auf der Seite finden. Die Daten zu diesem Anbieter lauten: Ferienhausladen Ansprechpartner Alec Kraneveld, in. ist die geografische Zuordnung dieses Objektes zum mieten und kaufen.
Synonyme zur Suche Häuser:
Häuser online, Haus mieten und kaufen, günstige Häuser





