Vermietete 2-R.-DG-Whg., Loggia + TG-Stpl. + Aufzug! Laminat bzw. Fliesen, Nähe Zwickauer Mulde!
Exposé: Vermietete 2-R.-DG-Whg., Loggia + TG-Stpl. + Aufzug! Laminat bzw. Fliesen, Nähe Zwickauer Mulde!
Strasse:
PLZ /Ort:
Kaufpreis
Wohnfläche
Zimmer
Flächen
Wohnfläche:
57,05 m²
Preise
Kaufpreis:
74.000,00 €
Hausgeld:
275,00 €
Vermittl.-Provision:
2.975 EUR inkl. MwSt.
Sonstiges
Ihre Objektnr.:
RLux90-D86
Objekttyp:
Dachgeschoss
Heizungsart:
Zentralheizung
Fahrstuhl:
Personen
Boden:
Fliesen
Zustand:
gepflegt
Bad:
Wanne
Zimmer:
2
Schlafzimmer:
1
Badezimmer:
1
Baujahr:
1997
vermietet:
1
Energiepass
Art:
Verbrauch
Gültig bis:
2028-08-10
E-Verbrauchskennw.:
69.00
EP inkl. Warmwasser:
ja
Baujahr:
1997
Jahrgang:
2014
Gebäudeart:
wohn
Ausstattung
Objektbeschreibung
Das moderne Mehrfamilienhaus Rosa-Luxemburg-Straße 90/92 wurde 1997 erbaut. Auf der Gebäuderückseite schließt sich eine Grünfläche an.
Die Beheizung erfolgt durch Fernwärme. Der beigefügte Energieausweis bestätigt eine energiesparende Bauweise von Gebäude und Heizungsanlage.
Der Personenaufzug im Gebäude geht vom Kellergeschoss bis hoch ins Dachgeschoss.
Eine Tiefgarage mit Einzelstellplätzen und Doppelparkern bietet sichere Stellmöglichkeiten für Ihr Fahrzeug. Die Stellplätze sind den einzelnen Wohnungen zugeordnet.
Der Bereich der Wohnungseingänge ist vom eigentlichen Treppenhaus durch eine Glaswand mit Glastüren abgetrennt. Dadurch erhält Ihre Wohnung einen zusätzlichen Schutz vor vom Treppenhaus ausgehender, unvermeidlicher Emission von Schmutz und Lärm.
Im Gemeinschaftskeller ist sowohl ein Fahrradabstellraum als auch ein "Waschraum" mit Münz-Waschmaschinen vorhanden. Der Keller ist über die Tiefgaragenzufahrt ebenerdig erreichbar.
Die Pflege und Reinigung des gesamten Objektes erfolgt über einen Hausmeisterservice.
Die gesamte Wohnanlage wird von einer erfahrenen und in Zwickau ansässigen Wohnungsverwaltungsfirma betreut, die Ihnen bei der schnellen Klärung eventuell auftretender Probleme gerne behilflich ist.
Mit der Wohnung D86 verkauft wird der TG-Stellplatz 20o (oben) des Doppelparkersystems Nr. 20.
Die Wohnung ist ab dem 01.04.25 vermietet. Die Kaltmiete beträgt 350,00 EUR, die Stellplatzmiete 30,00 EUR, die monatlichen Kosten für die Einbauküche 20,00 EUR, die Nebenkostenvorauszahlung 220,00 EUR und die Gesamtmiete 620,00 EUR.
Der Erwerber wird Mitglied einer Wohneigentümergemeinschaft WEG. Der Miteigentumsanteil (MEA) setzt sich zusammen aus 10/1.000 für die Wohnung und 2/1.000 für den halben Doppelparker, insgesamt 12/1.000.
Es ist lt. Wirtschaftsplan 2025 durch den Erwerber ein monatliches Hausgeld in Höhe von 275 EUR zu zahlen (263EUR für die Wohnung und 13 EUR für den TG-Stellplatz). Davon sind bei Vermietung ca. 2/3 als Betriebskosten umlegbar.
Lage
Mit ca. 90.000 Einwohnern liegt die Stadt Zwickau im Zentrum des westsächsischen Industriegebietes am Nordrand des Erzgebirges. Sie ist die viertgrößte Stadt im Freistaat Sachsen und hat als Oberzentrum einen Einzugsbereich von ca. 480.000 Menschen.
Die Stadt blickt zurück auf eine 900jährige Geschichte und hat Persönlichkeiten wie Robert Schumann, August Horch und Max Pechstein hervorgebracht.
Die geografische Lage zwischen den Autobahnen A 4, A 72 und der Schnellstraße B 93 garantiert optimale Erreichbarkeit und schnelle Verbindung zu anderen Wirtschaftszentren. Zwickau ist im Bereich Wirtschaft und Arbeitsmarkt positiv aufgestellt. Bei einem Städteranking der IHK zur Standortattraktivität Südwestsachsens belegte Zwickau einen der vorderen Plätze.
Automobilbau wird in Zwickau seit Anfang des 20. Jahrhunderts betrieben. Hier befanden sich u.a. die Horch- und Audi-Werke. Später liefen in Zwickau 3 Mio. PKW "Trabant" vom Band.
Seit November 2019 wird in Zwickau der ID.3, das erste Serien-Elektrofahrzeug des VW-Konzerns, gefertigt. Schrittweise folgten weitere Modelle mit Elektroantrieb, auch der Marken Audi und SEAT. Damit hat sich VW Zwickau zum Leitbetrieb für Elektrofahrzeuge im VW-Konzern entwickelt.
Das Wohnhaus Rosa-Luxemburg-Straße 90 befindet sich in einer bevorzugten und absolut ruhigen Wohnlage in der Nordvorstadt. Die Straße führt nur zu den vorhandenen Wohngebäuden. Es gibt keinen Durchgangsverkehr.
Hier wurden nahezu alle Häuser aufwändig saniert und erstrahlen in altem Glanz der Gründerzeit. Außerdem wurden einige neue Wohnhäuser erbaut, was für den Standort spricht. Nach Osten erstreckt sich gegenüber der Eingangsseite eine Kleingartenanlage. Von den Fenstern der Wohnung blickt man auf diese Anlage und auf die Promenade der Zwickauer Mulde.
Der Innenraum des Karrees, welches durch die Rosa-Luxemburg-Straße, die Freiligrathstraße, Lassallestraße und Arndtstraße gebildet wird, ist unbebaut und begrünt.
Das nahegelegene Stadtzentrum ist in einer Viertelstunde zu Fuß oder schneller mit der Straßenbahn erreichbar (Haltestelle in 200 m, zwei Haltestellen bzw. 6 min. Fahrt).
In unmittelbarer Nähe des Objektes befinden sich Schulen, KiTas, medizinische Einrichtungen und gute Einkaufsmöglichkeiten. Weitere infrastrukturelle Bedarfsträger (Kinderbetreuung, Bildungseinrichtungen, Banken, Behörden, Kino und Theater, Gastronomie etc.) sind im Stadtzentrum ansässig.
Die nahegelegene Promenade entlang des Ufers der Zwickauer Mulde ist ein beliebter Spazier- und Radweg der Zwickauer. Der "Mulde-Fahrad-Weg" führt vom vogtländischem Schöneck über ca. 285 km bis zur "Bauhaus-Stadt" Dessau an der Elbe.
Ausstattung
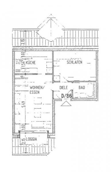
Die lt. Planung ca. 57,05 m² große 2-Raum Wohnung befindet sich im Dachgeschoss auf Höhe eines 4. OG und ist über den Fahrstuhl barrierefrei erreichbar. Sie teilt sich wie folgt auf:
- Wohnzimmer 25,94 m², mit Zugang zur Loggia,
- Schlafzimmer 12,39 m²,
- Küche 8,37 m²,
- Badezimmer 4,66 m², innenliegend,
- Flur 3,73 m²,
- Loggia 1,95 m² (50 % von 3,90 m²).
Alle Angaben sind Planungs- und ca.-Werte. Bei den Innenräumen sind von der Bruttofläche 1,5 % für den Putz abgezogen.
Die Wohnungseingangstür ist verstärkt ausgeführt und mit einem Türschließer ausgestattet. Die Trennwand vom Wohnzimmer Loggia ist großflächig aus Glas. Man gelangt durch eine Glastür zur Loggia. Die Loggia besitzt eine Markise zur Abschattung. Auf die Wanne im Bad ist eine Duschvorrichtung aufgebaut.
Wie in Dachgeschossen üblich sind die Fenster in den Dachschrägen geneigte Dachflächenfenster. Am Ende der Dachschrägen verbleibt ein Kniestock von ca. 1 m.
Der Zustand der Wohnung wird als altersbedingt und der Nutzungsdauer angemessen beschrieben.
Alle Räume besitzen Laminat-Fußböden. Das Bad ist gefliest und wurde im Jahr 2014 komplett neu saniert.
Zur Wohnung gehört im Kellergeschoss ein Mieterkeller mit der Bezeichnung D86. Dieser ist mit Metallprofilen abgeteilt und besitzt einen eigenen Stromanschluss.
Sonstige Angaben
Bitte nutzen Sie das Kontaktformular, um uns Ihre Fragen bzw. Ihren Besichtigungswunsch mitzuteilen. Wir nehmen schnellstmöglich den Kontakt zu Ihnen auf bzw. senden Ihnen gern ergänzende Unterlagen entsprechend Ihrer Anfrage zu.
Alle Angaben beruhen auf Aussagen der Eigentümer bzw. basieren auf den uns bis dato vorliegenden Unterlagen und erfolgen ohne Gewähr. Irrtum und zwischenzeitlicher Verkauf bleiben vorbehalten. Exposé © 2025, Immobilienbüro Kühn
Wohnungen Zwickau
HomeBooster hat dieses Objekt zum mieten und kaufen unter Zwickau eingetragen. Weitere Objekte sind unter Sachsen auffindbar.
Die Daten zu diesem Anbieter lauten: Immobilienbüro Kühn GmbH & Co. KG Ansprechpartner Wolfgang Kühn, Jahnstraße 17 in 08058 Zwickau.
Synonyme zur Suche Zwickau Wohnungen:
Zwickau günstige Wohnung, Wohnungsanzeigen Zwickau










