Traumhaft Wohnen in alter Klinkervilla
Exposé: Traumhaft Wohnen in alter Klinkervilla
PLZ /Ort:
Kaltmiete
Wohnfläche
Zimmer
Flächen
Wohnfläche:
134,00 m²
Preise
Kaltmiete:
800,00 €
Warmmiete:
1.100,00 €
Nebenkosten:
300,00 €
Heizkosten:
200,00 €
Kaution:
2400.00
Sonstiges
Ihre Objektnr.:
501105
Heizungsart:
Etagenheizung
Fahrstuhl:
Personen
Zustand:
gepflegt
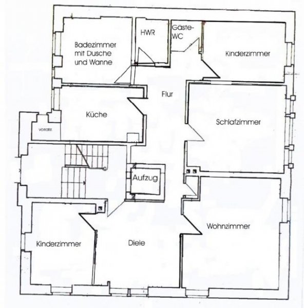
Zimmer:
4
Schlafzimmer:
2
Badezimmer:
1
Baujahr:
1900
Energiepass
Ausstattung
Objektbeschreibung
Sie interessieren sich für eine Wohnung in historischem Ambiente.
Das Haus wurde unter denkmalpflegerischen Aspekten saniert. Imposant sind die Klinkerfassade mit den zahlreichen Gauben, Erkern und Türmchen.
Lage
Die zu vermietenden Wohnung befindet sich in einem architektonisch sehr interessanten Klinkergebäude in der 18.-März-Straße 3.
Die 18.-März-Str - früher: Kaiserstr. - liegt westlich des Stadtzentrums - unweit vom Schlosspark und ist eine der architektonisch attraktivsten Straßenzüge in Gotha. Verkehrsmäßig ist das Objekt problemlos zu erreichen.
Haltestellen des öffentlich Nahverkehrs befinden sich in unmittelbarer Umgebung; Bus - Reinhardsbrunner Straße; Straßenbahn - Waltershäuser Straße.
Ausstattung
Die Wohnung ist im Zuge einer Umnutzung aus einer ehemalligen Gewerbeeinheit entstanden.
Es ist ein neues Badezimmer mit Wanne, Dusche, WC und Doppelwaschbecken eingebaut.
Der Bodenbelag ist ein Laminatboden.
Sonstige Angaben
Heizungsart: Etagenheizung
Baujahr: 1900
Besuchen Sie uns doch einmal im Internet unter www.honnef-immobilien.de
Wohnungen Gotha
HomeBooster hat diese Immobilie unter Gotha gespeichert. Thüringen ist die geografische Zuordnung dieses Objektes zum mieten und kaufen.
Die Daten zu diesem Anbieter lauten: HONNEF Immobilien Ansprechpartner Peter Honnef & Rudolf Steinert GbR, Schlossberg in 99867 Gotha.
Synonyme zur Suche Gotha Wohnungen:
Gotha günstige Wohnung, Wohnungsanzeigen Gotha










