Tolles Haus mit Satteldach, Erker und Balkon. Viel Platz für Sie und Ihre Familie!
Exposé: Tolles Haus mit Satteldach, Erker und Balkon. Viel Platz für Sie und Ihre Familie!
PLZ /Ort:
Kaufpreis
Wohnfläche
Zimmer
Grundstücksfläche
Flächen
Wohnfläche:
125,00 m²
Grundstücksfläche:
766,00 m²
Preise
Kaufpreis:
208.225,00 €
Sonstiges
Ihre Objektnr.:
27
Objekttyp:
Einfamilienhaus
Heizungsart:
Zentralheizung
Befeuerung:
Gas
Zustand:
projektiert
Zimmer:
4
Energiepass
Ausstattung
Räume veränderbar
Objektbeschreibung
Kaufpreis inkl. Grundstück Schlüsselfertig: • Haus mit Satteldach • Balkon; Erker • Geschosshöhe: 2 • Holzrahmenbauweise oder Massivbau auf Anfrage ( verputzt und gestrichen, Steinverblender oder Holzfassade auf Anfrage möglich) • Kunststofffenster • Heizkörper oder Fußbodenheizung auf Anfrage möglich • Handtuchheizkörper Bad • Großzügige Raumhöhe von 2,60 m im EG • Innentüren inkl. Einbau • Haus-und Nebeneingangstüren aus Kunststoff, auf Wunsch mit Sichtglas • Badmöbel, Gäste-WC, und Bad inkl. Einbau • Fliesen: Bad, Gäste-WC , Diele inkl. Verlegen • Tondachpfannen • Innenwände auf Wunsch tapezierfähig verspachteln • Gossen und Regenrohre aus Zink • Holztreppe inkl. Montage im Wert von 2450,00 € • Elektroarbeiten laut individueller Bau- und Leistungsbeschreibung • Bodenplatte ohne Erdarbeiten lt. Statik • Statik (exkl. Architektenleistung) • Abwicklung der Baugenehmigung (Gebühren exklusiv) • Energiegutachten, Blower - Door - Test • Bauleitung und Projektbetreuung…. • KfW- Effizienzhaus 70 (EnEV 2009) Ausbauhaus: • Haus mit Satteldach • Balkon; Erker • Geschosshöhe: 1,5 • Holzrahmenbauweise oder Massivbau auf Anfrage • Kunststofffenster • Großzügige Raumhöhe von 2,60 m im EG • Haus- und Nebeneingangstüren aus Kunststoff, auf Wunsch mit Sichtglas • Tondachpfannen • Statik (exkl. Architektenleistung) • Abwicklung der Baugenehmigung (Gebühren exklusiv) • Bauleitung und Projektbetreuung…. • KfW- Effizienzhaus 70 (EnEV 2009) • Gerne übernehmen wir weitere Ausbautätigkeiten nach Ihren Wünschen Ausbauhaus schon ab 55.555,00 Euro
Lage
Mehr Informationen zur Lage auf Anfrage
Ausstattung
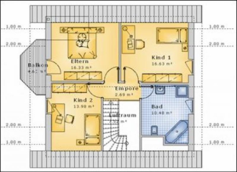
Im Erdgeschoss befindet sich ein großzügiges, lichtdurchflutetes Wohn-/Esszimmer mit Zugang zur Terrasse. Außerdem eine Küche mit direktem Zugang zu einer kleinen Speisekammer, ein separater Hauswirtschaftsraum und ein Gäste WC. Im Obergeschoss sind ein Elternschlafzimmer mit Zugang zum Balkon, 2 Kinderzimmer und ein Badezimmer mit Dusche, Badewanne, WC und Waschbecken vorhanden. Natürlich lässt sich die Raumaufteilung nach Ihren Wünschen verändern.
Sonstige Angaben
Notar und Grunderwerbsteuer 3.156€
Häuser Jade
Im HomeBooster Verzeichnis findet sich diese Immobilie unter Jade. Die Angeben des Anbieters lauten HSW-Bau GmbH Ansprechpartner , Vareler Straße 11 in 26349 Jaderberg. Unter Niedersachsen sind weitere relevante Immobilien vorhanden.
Synonyme zur Suche Jade Häuser:
Jade Häuser online, Haus mieten und kaufen Jade, günstige Häuser Jade



