Toggenburg Villa in Aussichtslage mit Sauna und Hotpot
Exposé: Toggenburg Villa in Aussichtslage mit Sauna und Hotpot
Strasse:
PLZ /Ort:
Kaufpreis
Wohnfläche
Zimmer
Grundstücksfläche
Flächen
Wohnfläche:
159,00 m²
Grundstücksfläche:
1.804,00 m²
Preise
Kaufpreis:
2.049.843,56 €
Sonstiges
Ihre Objektnr.:
ASJ-Villa
Objekttyp:
Villa
Stellplatz-Art:
Tiefgarage
Möblierung:
Teil
Küche:
EBK
Stellplätze (Anz.):
1
Zimmer:
6
Schlafzimmer:
4
Badezimmer:
2
Seperate WC:
2
Baujahr:
2014
Energiepass
Ausstattung
Gartennutzung
Sauna
Objektbeschreibung
Zum Verkauf steht ein 10 jähriges Haus in traumhafter sonniger Panoramalage in Alt St. Johann. Diese Liegenschaft ist hochwertig und modern ausgestattet. Sie lässt keine Wünsche offen: Sauna, Hotpot, bodentiefe Fenster, hohe Decken, Fussbodenheizung.
Grundstück: 1.804 qm grenzt an die Landwirtschaftszone und kann bei Bedarf noch bebaut werden, ganztägig Sonne!
Lage
Toggenburg - Alt St. Johann
Ausstattung
UG: Doppelgarage mit direktem Zugang ins Haus, Waschküche mit Haustechnik – Wärmepumpe, Sauna, Abstellraum
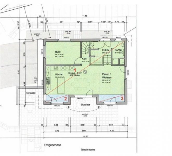
EG: Dusche-WC mit Lavabo, Wohn-Essbereich (34,82 qm) mit offener moderner Küche (15,17 qm), Zugänge zur Terrasse mit Hotpot, Grillplatz und Sitzecken, 1 Zimmer für Büro, Gäste oder Schlafzimmer
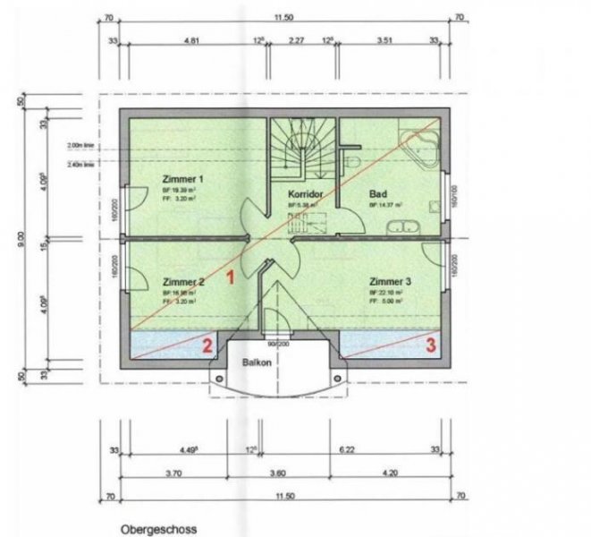
OG: 3 Schlafzimmer, eines davon mit Balkon, Bad mit Eckbadewanne, WC, Wäscheabwurf in den Keller, Doppel Lavabo
Häuser
Weiterhin können Sie Inserate auf der Seite finden. Die Daten zu diesem Anbieter lauten: EfG Consulting Ansprechpartner Oilvier Nachbagauer, Fallensteinerstr. 1 in 83457 Bayerisch Gmain. ist die geografische Zuordnung dieses Objektes zum mieten und kaufen.
Synonyme zur Suche Häuser:
Häuser online, Haus mieten und kaufen, günstige Häuser










