Tiny House - EH55 Bungalow auf Pachtgrundstück in Faßberg in der Lüneburger Heide
Exposé: Tiny House - EH55 Bungalow auf Pachtgrundstück in Faßberg in der Lüneburger Heide
PLZ /Ort:
Kaufpreis
Wohnfläche
Zimmer
Grundstücksfläche
Flächen
Wohnfläche:
40,00 m²
Grundstücksfläche:
400,00 m²
Preise
Kaufpreis:
130.555,00 €
Sonstiges
Ihre Objektnr.:
BG363840
Möblierung:
Teil
Zimmer:
3
Schlafzimmer:
2
Badezimmer:
1
Baujahr:
2023
Energiepass
Art:
Bedarf
Gültig bis:
31.12.2032
Endenergiebedarf:
29
Wertklasse:
A+
Jahrgang:
2014
Gebäudeart:
wohn
Ausstattung
Kamin
klimatisiert
Objektbeschreibung
Der Bungalow erfüllt den Effizienzhaus 55 Standard (EH-55) nach dem Gebäudeenergiegesetz (GEG vormals EnEV) und hat aus statischen Gründen einen hochfesten Sicherheits-Stahlrahmen und ist ein vollwertiges Haus mit ganz normalen Versorgungsleitungen für Strom, Wasser und Abwasser und kann selbstverständlich ganzjährig genutzt werden.
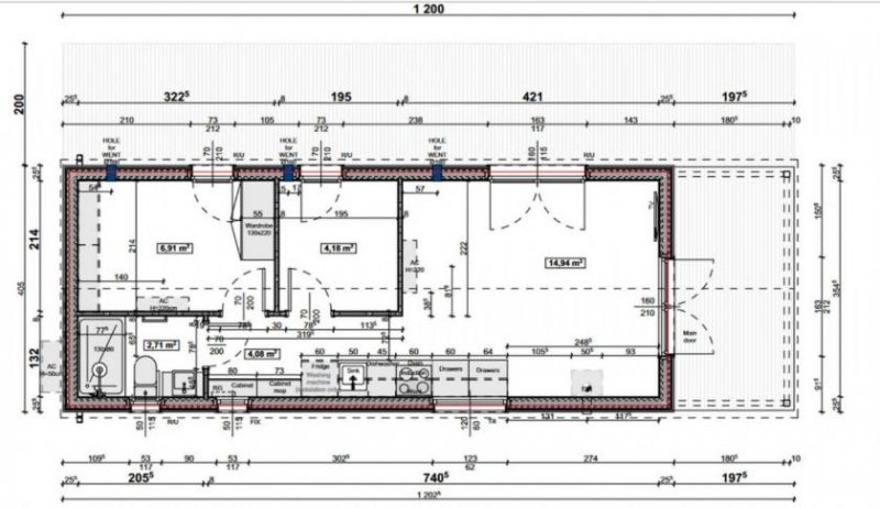
Dieses Tiny House umfasst ca. 40 m² umbauten Wohnraum + 8 m² überdachte Terasse mit 2 Schlafzimmern, Wohnzimmer, Küche mit Einbauküche und Duschbad und ist ein komplett ausgestattetes Fertighaus de Luxe, das mittels Sondertransport direkt an das Baugrundstück geliefert wird. Einfach abladen, aufstellen, anschließen und einziehen.
Es stehen insgesamt 3 Zimmer zur Verfügung. Das Wohnzimmer mit offener Küche sorgt für ein großzügiges Raumgefühl. Die Einbauküche ist mit Unter- und Hängeschränken, Küchenarbeitsplatte, Einbauspülbecken, Kühlschrank, 4-Kochzonen Induktionsherd, Backofen und Dunstabzugshaube ausgestattet. In der Küchenzeile ist ebenfalls bereits eine Waschmaschine integriert. Auch das Badezimmer ist mit einer 120 cm Duschkabine, Waschbecken mit Unterschrank, Hängeschrank mit Spiegel und Stand-WC voll funktionsfertig. Die überdachte Außenterrasse mit Brüstung rundet das Angebot ab.
Die Beheizung erfolgt über einen elektronisch gesteuerten Pelletofen, der Ihnen das wohlige Kaminfeuer ins eigene Heim bringt. Für besonders energiebewusste Menschen steht zusätzlich eine Luft-Luft-Wärmepumpe mit Innengeräten zur Verfügung. Das Klimapaket sorgt für Kühlung, Heizung, Belüftung und Entfeuchtung.
Bebauung nach: B_PLAN
Status Erschlie?ung: ORTSUEBLICHERSCHLOSSEN
Lage
Region: Landkreis Celle
Die beiden Pachtgrundstücke befinden sich in ruhiger und waldreicher Lage in der Gemeinde Faßberg. Die Gemeinde Faßberg hat ca. 6.278 Einwohner und liegt im Norden des Landkreises Celle in Niedersachsen in der Lüneburger Heide im Bereich der Südheide. Die Nachbarorte sind Wietzendorf im Westen, Munster im Norden sowie Hermannsburg und Unterlüß im Süden. Die südlich gelegene Kreisstadt Celle ist etwa 38 Kilometer entfernt.
Die Gemeinde Faßberg gliedert sich in den Kernort Faßberg und die Ortsteile Müden (Örtze), Poitzen und Schmarbeck. Der Ort Faßberg wurde als Gartenstadt in den 1930er Jahren angelegt. Mit Poitzen und Müden befinden sich in westlicher Richtung gewachsene Bauerndörfer mit hohem Tourismusanteil. Müden ist ein staatlich anerkannter Erholungsort. Ausgedehnte Wald- und Heideflächen sowie eine gute Freizeit-Infrastruktur bieten das ganze Jahr über Abwechslung.
Ausstattung
Komplett ausgestattetes und vollwertiges EH-55 Effizienz-Minihaus auf Pachtgrundstück, massiver Trailer mit Sicherheitsstahlrahmen, hochwertige Echtholz-Außenfassade, Satteldach aus Stahlblech in Stehpfalz matt, Dachrinnen und Fallrohre aus Metall, energiesparende Ganzjahres-PUR-Dämmung (Wände, Fußboden und Decke), elektronisch gesteuerter Pelletofen im Wohnzimmer, Klima-Splitanlage mit zwei Innengeräten (zum Heizen, Kühlen und Entfeuchten), Luft-Wärmetauscher für die Raumklimatisierung, Kunststofffenster 3-fach-verglast, offene Küche mit Unter- und Hängeschränken, Küchenarbeitsplatte, Einbauspülbecken, Kühlschrank, Einbaubackofen, Geschirrspüler, 4-Kochzonen Induktionsherd, Waschmaschine, Badezimmer mit Abluftventilator, Duschkabine 120 cm, WC mit Spülkasten, Waschbecken mit Unterschrank, Hängeschrank mit Spiegel, Durchlauferhitzer, Heizung als Handtuchtrockner, Wandpaneele in Kerradeco, wärmereflektierende Plissees an allen Fenstern, Insektenschutzgitter an allen Fenstern, elektrische Außenrolläden, Doppel-TV-Anschluss für getrenntes Fernsehen und Aufnehmen sowie 1 x W-LAN Dose, Solarthermie-Anlage "Tiny Solar" zur Selbstmontage, 10 verstellbare Stützfüße lackiert, Doppelsteckdosen in allen Zimmern, Doppelsteckdose a.d. Außenwand, Steckdose am Außenwasseranschluss für optionales Frostschutzheizkabel, LED-Deckenbeleuchtung in allen Räumen sowie zwei Lampenanschlüsse an der Außenwand, überdachte Terasse mit LED-Beleuchtung (4 Stück) und abschließbarer zweiflügeliger Terrassentür (160x200cm),Innenwände und Decken verkleidet mit lackierten Paneelen, hochwertiger Design-Fußboden
Sonstige Angaben
Der Angebotspreis bezieht sich auf das Pachtgrundstück sowie den Bungalow laut Bau- und Leistungsbeschreibung. Alle erforderlichen Anschlüsse für Strom, Wasser und Abwasser liegen am Grundstück an. Die monatliche Pacht für das Grundstück beträgt 200.- Euro zzgl. 3.000.- Euro einmalig für die Erschliessung.
Auf dem Grundstück befindet sich eine ältere Holzhütte mit einer Größe von ca. 39 m², die bei Bedarf ebenfalls angemietet werden kann.
Die Fotos und Abbildungen zeigen teilweise Sonderleistungen. Für Käufer fällt keine zusätzliche Käuferprovision an. Das Angebot ist freibleibend und unverbindlich. Irrtum, Zwischenverkauf und Zwischenvermietung bleiben vorbehalten. Alle Angaben ohne Gewähr. Besichtigungstermine können über unser Büro abgestimmt werden. Weitere Informationen erhalten Sie gerne auf Anfrage!
Häuser Faßberg
HomeBooster hat dieses Objekt zum mieten und kaufen unter Faßberg eingetragen. Der Anbieter IMMOFUX Maklerverbund Ansprechpartner Björn Gauger, Schweriner Str. 43 in 23909 Ratzeburg hat diese Immobilie hochgeladen.
Am Anfang suchen User zuerst auf der Seite Niedersachsen.
Synonyme zur Suche Faßberg Häuser:
Faßberg Häuser online, Haus mieten und kaufen Faßberg, günstige Häuser Faßberg










