Tiny House - EH55 Bungalow im Biosphärenreservat Elbe
Exposé: Tiny House - EH55 Bungalow im Biosphärenreservat Elbe
PLZ /Ort:
Kaufpreis
Wohnfläche
Zimmer
Grundstücksfläche
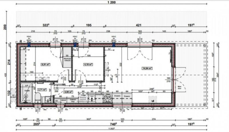
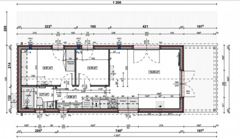
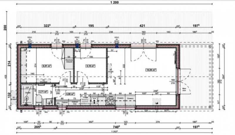
Flächen
Wohnfläche:
40,00 m²
Grundstücksfläche:
384,00 m²
Preise
Kaufpreis:
182.500,00 €
Sonstiges
Ihre Objektnr.:
BG370841
Möblierung:
Teil
Zimmer:
3
Schlafzimmer:
2
Badezimmer:
1
Baujahr:
2023
Energiepass
Art:
Bedarf
Endenergiebedarf:
29
Wertklasse:
A+
Jahrgang:
2014
Gebäudeart:
wohn
Ausstattung
Kamin
klimatisiert
Objektbeschreibung
Der Bungalow erfüllt den Effizienzhaus 55 Standard (EH-55) nach dem Gebäudeenergiegesetz (GEG vormals EnEV) und hat aus statischen Gründen einen hochfesten Sicherheits-Stahlrahmen und ist ein vollwertiges Haus mit ganz normalen Versorgungsleitungen für Strom, Wasser und Abwasser und kann selbstverständlich ganzjährig genutzt werden.
Dieses Tiny House umfasst ca. 40 m² umbauten Wohnraum + 8 m² überdachte Terasse mit 2 Schlafzimmern, Wohnzimmer, Küche mit Einbauküche und Duschbad und ist ein komplett ausgestattetes Fertighaus de Luxe, das mittels Sondertransport direkt an das Baugrundstück geliefert wird. Einfach abladen, aufstellen, anschließen und einziehen.
Es stehen insgesamt 3 Zimmer zur Verfügung. Das Wohnzimmer mit offener Küche sorgt für ein großzügiges Raumgefühl. Die Einbauküche ist mit Unter- und Hängeschränken, Küchenarbeitsplatte, Einbauspülbecken, Kühlschrank, 4-Kochzonen Induktionsherd, Backofen und Dunstabzugshaube ausgestattet. In der Küchenzeile ist ebenfalls bereits eine Waschmaschine integriert. Auch das Badezimmer ist mit einer 120 cm Duschkabine, Waschbecken mit Unterschrank, Hängeschrank mit Spiegel und Stand-WC voll funktionsfertig. Die überdachte Außenterrasse mit Brüstung rundet das Angebot ab.
Die Beheizung erfolgt über einen elektronisch gesteuerten Pelletofen, der Ihnen das wohlige Kaminfeuer ins eigene Heim bringt. Für besonders energiebewusste Menschen steht zusätzlich eine Luft-Luft-Wärmepumpe mit Innengeräten zur Verfügung. Das Klimapaket sorgt für Kühlung, Heizung, Belüftung und Entfeuchtung.
Status Erschlie?ung: ORTSUEBLICHERSCHLOSSEN
Lage
Region: Tewswoos
Unweit der Elbe zwischen Mecklenburg-Vorpommern und Niedersachsen sowie zwischen Dannenberg (Elbe) und Ludwigslust mitten im Biosphärenreservat Elbe liegt der kleine Ort Vielank mit seinen rund 1.260 Einwohnern. Das Baugrundstück befindet sich in idyllischer Lage im Ortsteil Tewswoos.
Trotz der ländlichen Prägung der Region erhält man in den umliegenden Orten und Kleinstädten alles was man zum Leben benötigt. Vielank bietet eine gute Gesundheitsversorgung. Ein Kindergarten befindet sich nur wenige Gehminuten von dem Baugrundstück entfernt. Durch das Vielanker Brauhaus mit seinen hausgemachte Bieren, Brausen und Spirituosen ist der Ort auch überregional bekannt. Bierliebhaber kommen mit Sicherheit im Vielanker Brauhaus mit angeschlossenem Hotel, Restaurant und Destille auf ihre Kosten. Die ruhige und ländliche Lage ist ideal geeignet für Menschen die naturnah und entschleunigt leben möchten.
Ausstattung
Vollwertiges EH-55 Effizienz-Minihaus mit Grundstück ca. 384 qm, massiver Trailer mit Sicherheitsstahlrahmen, hochwertige Echtholz-Außenfassade, Satteldach aus Stahlblech in Stehpfalz matt, Dachrinnen und Fallrohre aus Metall, energiesparende Ganzjahres-PUR-Dämmung (Wände, Fußboden und Decke), elektronisch gesteuerter Pelletofen im Wohnzimmer, Klima-Splitanlage mit zwei Innengeräten (zum Heizen, Kühlen und Entfeuchten), Luft-Wärmetauscher für die Raumklimatisierung, Kunststofffenster 3-fach-verglast, offene Küche mit Unter- und Hängeschränken, Küchenarbeitsplatte, Einbauspülbecken, Kühlschrank, Einbaubackofen, Geschirrspüler, 4-Kochzonen Induktionsherd, Waschmaschine, Badezimmer mit Abluftventilator, Duschkabine 120 cm, WC mit Spülkasten, Waschbecken mit Unterschrank, Hängeschrank mit Spiegel, Durchlauferhitzer, Heizung als Handtuchtrockner, Wandpaneele in Kerradeco, wärmereflektierende Plissees an allen Fenstern, Insektenschutzgitter an allen Fenstern, elektrische Außenrolläden, Doppel-TV-Anschluss für getrenntes Fernsehen und Aufnehmen sowie 1 x W-LAN Dose, Solarthermie-Anlage "Tiny Solar" zur Selbstmontage, 10 verstellbare Stützfüße lackiert, Doppelsteckdosen in allen Zimmern, Doppelsteckdose a.d. Außenwand, Steckdose am Außenwasseranschluss für optionales Frostschutzheizkabel, LED-Deckenbeleuchtung in allen Räumen sowie zwei Lampenanschlüsse an der Außenwand, überdachte Terasse mit LED-Beleuchtung (4 Stück) und abschließbarer zweiflügeliger Terrassentür (160x200cm),Innenwände und Decken verkleidet mit lackierten Paneelen, hochwertiger Design-Fußboden
Sonstige Angaben
Der Angebotspreis bezieht sich auf das Grundstück inklusive Bungalow. Alle erforderlichen Anschlüsse für Strom, Wasser und Abwasser liegen am Grundstück an.
Die Fotos und Abbildungen zeigen teilweise Sonderleistungen. Für Käufer fällt keine zusätzliche Käuferprovision an. Das Angebot ist freibleibend und unverbindlich. Irrtum, Zwischenverkauf und Zwischenvermietung bleiben vorbehalten. Alle Angaben ohne Gewähr. Besichtigungstermine können über unser Büro abgestimmt werden. Weitere Informationen erhalten Sie gerne auf Anfrage!
Häuser Vielank
Weitere Inserate zum mieten und kaufen finden sich unter Vielank. Mecklenburg-Vorpommern ist die geografische Zuordnung dieses Objektes zum mieten und kaufen.
Die Angeben des Anbieters lauten IMMOFUX Maklerverbund Ansprechpartner Björn Gauger, Schweriner Str. 43 in 23909 Ratzeburg.
Synonyme zur Suche Vielank Häuser:
Vielank Häuser online, Haus mieten und kaufen Vielank, günstige Häuser Vielank










