SPEYER - NEUbaugebiet am Weiher!!! Zugreifen!
Exposé: SPEYER - NEUbaugebiet am Weiher!!! Zugreifen!
PLZ /Ort:
Kaufpreis
Grundstücksfläche
Flächen
Grundstücksfläche:
190,00 m²
Preise
Kaufpreis:
349.000,00 €
Vermittl.-Provision:
4,76% des Kaufpreises inkl. 19% MwSt.
Sonstiges
Ihre Objektnr.:
BK00238
Energiepass
Ausstattung
Objektbeschreibung
Wohnen in Speyer, zentrumsnah und doch in idyllischer Umgebung? Das wird hier möglich sein. In einem der letzten, neuen Wohngebiete in Speyer mit direktem Blick auf den herrlichen Weiher in Speyer-Süd kann ihr Traumhaus entstehen!
Auf dem zum Verkauf stehenden Grundstück wird eine Doppelhaushälfte entstehen. Das Grundstück hat eine Größe von ca. 190 m². Die Bebauung kann von einem regionalen Bauträger in Massivbauweise umgesetzt werden. Die Umsetzung und Ausgestaltung der Doppelhaushälfte kann in gemeinsamer Abstimmung mit Ihnen innerhalb der Richtlinien des Bebauungsplans erfolgen.
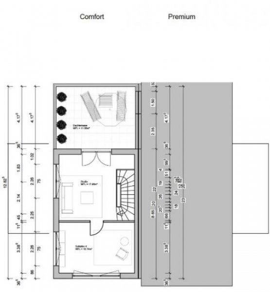
Sie möchten großzügig mit der Familie wohnen? Bis zu 6 Zimmern können auf bis zu 170 m² in der Doppelhaushälfte umgesetzt werden. Hier findet jeder seinen Lieblingsplatz im Haus.
Eine Familien Variante bietet Ihnen maximalen Komfort gepaart mit einer praktischen Raumaufteilung für einen entspannten Alltag. Das Badezimmer ist mit Wanne und ebenerdiger Dusche und Doppelwaschtisch ausgestattet. Der perfekte Wohlfühlort für Ihre Familie!
Sie sind eher auf der Suche nach einem Ort der Ruhe und Entspannung? Eine moderne, offene Raumgestaltung kombiniert mit hochwertiger, ausgewählter Ausstattung bietet Ihnen die Entspannungs Variante.
Neben dem großzügigen, offenen Koch-, Ess- und Wohnbereich kann das Dachstudio zu einem weiteren Lieblingsort werden. Von hier haben Sie Zugang zur ca. 22 m² großen Dachterrasse, da lässt sich der Sonnenuntergang mit einem Glas Wein genießen. Oder den Traum vom eigenen Wellnessbereich erfüllen? Offene Regendusche, abgetrenntes WC und Anschlüsse für Sauna – auch das ist möglich!
Die großen Fenster-Schiebeelemente vom Wohnzimmer und Dachstudio aus zu den Außenbereichen, Parkettboden in Wohn- und Schlafräumen und schicker Malervlies an Wänden und Decken runden die Premium-Ausstattung ab.
Dieses Haus ist ein Alleskönner – machen Sie es zu Ihrem Traumhaus in der TOP-Lage in Speyer direkt am Weiher. Wir freuen uns auf Sie!
Lage
Speyer ist in den letzten Jahren zu dem Zuzugsgebiet Nummer 1 in Rheinland-Pfalz geworden – und das nicht ohne Grund. Die charmante Altstadt von Speyer bietet für jeden Geschmack den richtigen Platz, ob zum Frühstück, Kaffee oder Abendessen – kulinarisch gibt es hier Einiges zu entdecken. Auch an kulturellen Angeboten mangelt es in Speyer nicht. Ob Technikmuseum oder der Speyerer Dom – für einen gemütlichen Sonntagsausflug finden Sie genug Möglichkeiten Auch eine gute Infrastruktur, die man für einen entspannten Alltag braucht, ist in Speyer vorhanden. Flexible Anbindungen, sowohl mit dem Auto als auch den öffentlichen Verkehrsmitteln machen das Leben rundum komfortabel.
Das angebotene Grundstück liegt zentral und angebunden und doch geschützt. Hier in Speyer Süd, am Weiher, wird nun eines der letzten Neubaugebiete in zentraler Lage von Speyer entstehen. Während man bereits über ein Jahrzehnt die Planung im Auge hat, ist es nun endlich so weit, die Erschließung des Wohngebiets hat bereits begonnen. Auf über 40.000 m² werden hier über 100 Wohneinheiten, sowohl Wohnungen als auch Häuser, ein Kindergarten und ein Spielplatz entstehen. Und das alles eingebettet in eine grüne, idyllische Landschaft mit der direkten Lage am Weiher. Hier findet ein besonderes Zusammenspiel von Natur- und Stadtnähe statt, was für Sie ein einmaliges Wohnerlebnis schaffen wird.
Sonstige Angaben
Von Schlapp Immobilien – Denn wir vermitteln Ihnen Zufriedenheit
Nutzen Sie die Kontaktmöglichkeit über dieses Exposé und vereinbaren unverbindlich einen Besichtigungstermin. Ich werde mich umgehend mit Ihnen zwecks Terminabstimmung in Verbindung setzen.
Ihr Ansprechpartner für dieses Objekt:
Heiko Kennel
Tel.: +49 (0)6581 – 6 05 05 40
Mobil:+49 (0)179 – 698 1279
www.schlapp-immobilien.de
www.verkehrswert-ermitteln.de
www.facebook.com/von.schlapp.immobilien
www.twitter.com/von_schlapp
Hinweis zum Exposé Inhalt:
Unser Exposé basiert auf Angaben unserer Auftraggeber. Für die Richtigkeit, Vollständigkeit sowie der Aktualität der im Exposé befindlichen Angaben können wir daher nicht garantieren. Die im Exposé angegebenen Flächenangaben beruhen ebenfalls auf Angaben unserer Auftraggeber und sind unverbindlich.
Beim Kauf älterer Bestandsimmobilien erweist sich die Hinzuziehung eines Fachmannes / eines Sachverständigen vor Vertragsabschluss als ratsam, da offene und versteckte Mängel, die auch dem Verkäufer oftmals nicht bekannt sind, zu erheblichen finanziellen Mehraufwand nach Kauf führen können.
Wir empfehlen Ihnen daher als Käufer vor Erwerb einer älteren Immobilie einen unabhängigen Gutachter in Anspruch zu nehmen!
Kostenfrei Verkehrswert Ihrer Immobilie ermitteln unter http://www.verkehrswert-ermitteln.de
------------------------------------------------------------------------------------------
ACHTUNG TIPPGEBER!
Sie kennen jemanden in der Familie, im Freundeskreis, im Bekanntenkreis, im Büro oder im Verein, der gerade seine Immobilie verkaufen möchte oder zumindest mit dem Gedanken spielt?
Dieser Tipp kann sich für Sie auszahlen!
Sprechen Sie uns an!
Wir zahlen Ihnen eine überdurchschnittliche Prämie.
Grundstück Speyer
Dieses Immobilien-Exposé wird geführt unter Speyer. Rheinland-Pfalz ist die Oberkategorie zu dem Exposé.
Die Angeben des Anbieters lauten von Schlapp Immobilien - Nadia Schlapp Ansprechpartner Ralf Schlapp, Schimmelhof 1 in 54338 Schweich.
Synonyme zur Suche Speyer Grundstück:
Speyer Grundstück Gemarkung, Grundstücke Speyer, Grundstücksangebote Speyer






