Schöne 3 Raum Wohnung im Zentrum mit Lift
Exposé: Schöne 3 Raum Wohnung im Zentrum mit Lift
Strasse:
PLZ /Ort:
Kaltmiete
Wohnfläche
Zimmer
Flächen
Wohnfläche:
86,00 m²
Preise
Kaltmiete:
516,00 €
Warmmiete:
774,00 €
Nebenkosten:
258,00 €
Sonstiges
Ihre Objektnr.:
6930
Objekttyp:
Etage
Heizungsart:
Fernheizung
Fahrstuhl:
Personen
Zimmer:
3
Baujahr:
1953
Energiepass
Wertklasse:
E
Baujahr:
1994
Ausstellungsdatum:
2018-08-06
Ausstattung
Objektbeschreibung
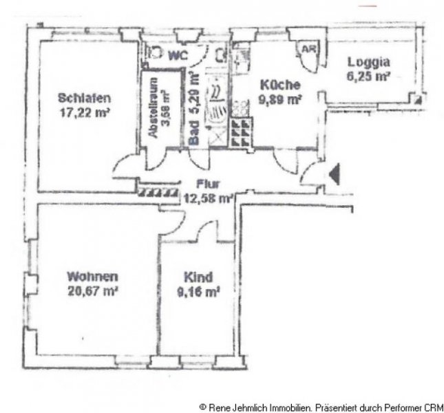
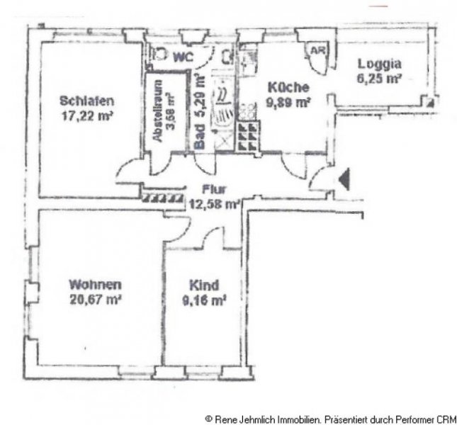
Diese großzügige 3-Raum-Wohnung befindet sich in einem denkmalgeschützten Altbau mitten im Zentrum von Chemnitz und bietet auf ca. 86 m² Wohnfläche ein außergewöhnliches Wohngefühl.
Hohe Decken, große Fensterflächen und der klassische Parkettboden schaffen eine helle, elegante Atmosphäre. Besonders das Wohnzimmer überzeugt mit viel Tageslicht und einem direkten Blick über die Innenstadt, urbanes Wohnen mit Stil.
Die geräumige Küche bietet ausreichend Platz für eine moderne Einbauküche und einen Essbereich.
Das Tageslichtbad ist vollständig gefliest und mit einer Dusche ausgestattet.
Der durchdachte Grundriss mit großzügigem Flur sorgt für eine klare Trennung der Räume und eignet sich ideal für Paare oder kleine Familien, die zentrales Wohnen schätzen.
Ein echter Pluspunkt in dieser Lage:
Anwohnerparken direkt vor der Tür – mit einer öffentlichen Parkkarte für nur 30 € pro Jahr.
Energieausweis: Klasse D
Lage
Die Innere Klosterstraße 13 liegt mitten im historischen und urbanen Zentrum von Chemnitz und zählt zu den gefragtesten Innenstadtlagen der Stadt. Hier treffen kurze Wege, urbanes Leben und gewachsene Infrastruktur aufeinander.
In direkter Umgebung befinden sich zahlreiche Einkaufs-, Gastronomie- und Dienstleistungsangebote, darunter die Galerie Roter Turm, kleine Cafés, Restaurants sowie medizinische Versorgung und Apotheken. Kulturelle Einrichtungen wie Opernhaus, Theater und Museen sind fußläufig erreichbar und unterstreichen die hohe Wohn- und Lebensqualität dieser Lage.
Die Anbindung an den öffentlichen Nahverkehr ist hervorragend: Straßenbahn- und Bushaltestellen befinden sich in unmittelbarer Nähe und ermöglichen eine schnelle Verbindung in alle Stadtteile. Der Chemnitzer Hauptbahnhof ist ebenfalls zügig erreichbar.
Trotz der zentralen Lage bietet die Umgebung ein angenehmes, urbanes Wohnumfeld mit kurzen Wegen zu Grünflächen und Erholungsmöglichkeiten. Die Kombination aus Innenstadtflair, optimaler Infrastruktur und historischer Bausubstanz macht die Innere Klosterstraße zu einer besonders attraktiven Adresse für Menschen, die zentrales Wohnen schätzen.
Ausstattung
3-Raum-Wohnung in denkmalgeschütztem Altbau im Zentrum von Chemnitz
ca. 86 m² Wohnfläche, großzügiger Grundriss
Helles Wohnzimmer mit großen Fenstern und Blick über die Innenstadt
Klassischer Parkettboden in den Wohnräumen
Geräumige Küche mit Platz für Einbauküche und Essbereich
Tageslichtbad mit Dusche, komplett gefliest
Großer Flur mit klarer Raumaufteilung
Ideal für Paare oder kleine Familien
Anwohnerparken mit öffentlicher Parkkarte (nur 30 € / Jahr)
Energieausweis: Klasse D
Sonstige Angaben
Energieeffizienzklasse: E
Baujahr: 1953
Heizungsart: Fernwärme
Befeuerung/Energieträger: Fernwärme
Energieausweistyp: Verbrauchsausweis
Energiekennwert: 138 kWh/(m²*a)
Um eine schnelle und unkomplizierte Terminvereinbarung zu treffen, können Sie mich gern auch werktags unter folgender Rufnummer von 9:00 Uhr bis 18:00 erreichen.
Tel.: 0371 / 909 5678
Funk: 0178 / 24 45 038
Sie können natürlich auch auf unserer Homepage sich über andere Angebote informieren.
http://www.jehmlich-immobilien.de
Alle Angaben nach bestem Wissen. Irrtum Zwischenvermietung und Zwischenverkauf vorbehalten. Die Angebote sind eine Vorinformation, als Rechtsgrundlage gilt allein der abgeschlossene Mietvertrag, bzw. notariell abgeschlossene Kaufvertrag.
Wohnungen Chemnitz
Unter Chemnitz findet man weitere relevante Immobilien zur Miete und zum Kauf. Der Link zu Immobilien zum mieten und kaufen dieses Bundeslandes findet man unter Sachsen.
Die Daten zu diesem Anbieter lauten: Rene Jehmlich Immobilien Ansprechpartner Rene Jehmlich, Theodor-Lessing Str. 21 in 09112 Chemnitz.
Synonyme zur Suche Chemnitz Wohnungen:
Chemnitz günstige Wohnung, Wohnungsanzeigen Chemnitz









