Schöne 3 Raum Wohnung
Exposé: Schöne 3 Raum Wohnung
Strasse:
PLZ /Ort:
Kaltmiete
Wohnfläche
Zimmer
Flächen
Wohnfläche:
74,00 m²
Preise
Kaltmiete:
407,00 €
Warmmiete:
555,00 €
Nebenkosten:
148,00 €
Sonstiges
Ihre Objektnr.:
6439
Objekttyp:
Etage
Heizungsart:
Zentralheizung
Befeuerung:
Gas
Zimmer:
3
Baujahr:
1900
Energiepass
Wertklasse:
E
Baujahr:
1995
Ausstellungsdatum:
2018-08-26
Ausstattung
Gartennutzung
Objektbeschreibung
Helle 3-Raum-Wohnung mit Gartenmitnutzung, Einbauküche optional und zusätzlichem Stauraum.
In zentraler und zugleich ruhiger Lage von Chemnitz befindet sich diese modern renovierte 3-Raum-Wohnung im Hochparterre eines gepflegten Mehrfamilienhauses in der Fichtestraße 43.
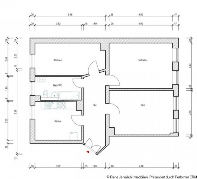
Die Wohnung verfügt über einen großzügigen Flur, der Zugang zu allen Räumen bietet.
Das helle Wohnzimmer mit großen Fenstern lädt zum Verweilen ein, ebenso das Schlafzimmer und ein weiteres Zimmer, das ideal als Kinderzimmer oder Büro genutzt werden kann.
In der geräumigen Küche ist Platz für eine gemütliche Sitzecke.
Das Tageslichtbad ist mit einer Badewanne, einer Duschabtrennung sowie einem wandhängenden WC ausgestattet.
Die weißen Wand- und Bodenfliesen sorgen für eine freundliche, zeitlose Optik.
Zur Wohnung gehören zudem ein separater Kellerraum sowie eine praktische Abstellkammer auf der halben Treppe.
Der grüne Gemeinschaftsgarten hinter dem Haus kann mitgenutzt werden und bietet Platz zum Entspannen oder für Kinder zum Spielen.
Lage
Die Fichtestraße liegt in einem beliebten Wohngebiet mit guter Infrastruktur.
Einkaufsmöglichkeiten, Schulen, Kindergärten sowie öffentliche Verkehrsmittel sind fußläufig erreichbar.
Die Chemnitzer Innenstadt ist in wenigen Minuten mit dem Auto oder ÖPNV erreichbar.
Ausstattung
3 helle, großzügig geschnittene Räume
Tageslichtbad mit Badewanne
Große Wohnküche
Hochwertiger Laminatboden in Wohnräumen und Flur
Separate Abstellkammer und Keller
Gemeinschaftsgarten zur Mitbenutzung
Glasfaserkabel vorhanden
Nicht Jobcenter geeignet
Sonstige Angaben
Baujahr: 1900
Befeuerung/Energieträger: Gas
Energieausweistyp: Verbrauchsausweis
Energiekennwert: 126 kWh/(m²*a)
Heizungsart: Zentralheizung
Energieeffizienzklasse: E
Um eine schnelle und unkomplizierte Terminvereinbarung zu treffen, können Sie mich gern auch werktags unter folgender Rufnummer von 9:00 Uhr bis 18:00 erreichen.
Tel.: 0371 / 909 5678
Funk: 0178 / 24 45 038
Sie können natürlich auch auf unserer Homepage sich über andere Angebote informieren.
http://www.jehmlich-immobilien.de
Alle Angaben nach bestem Wissen. Irrtum Zwischenvermietung und Zwischenverkauf vorbehalten. Die Angebote sind eine Vorinformation, als Rechtsgrundlage gilt allein der abgeschlossene Mietvertrag, bzw. notariell abgeschlossene Kaufvertrag.
Wohnungen Chemnitz
Unter Chemnitz findet man weitere relevante Immobilien zur Miete und zum Kauf. Der Link zu Immobilien zum mieten und kaufen dieses Bundeslandes findet man unter Sachsen.
Die Daten zu diesem Anbieter lauten: Rene Jehmlich Immobilien Ansprechpartner Rene Jehmlich, Theodor-Lessing Str. 21 in 09112 Chemnitz.
Synonyme zur Suche Chemnitz Wohnungen:
Chemnitz günstige Wohnung, Wohnungsanzeigen Chemnitz








