Schnucklige, 1-Zi.-Whg. mit EBK, Balkon und Stellplatz in Freiberg a.N. zu verkaufen
Exposé: Schnucklige, 1-Zi.-Whg. mit EBK, Balkon und Stellplatz in Freiberg a.N. zu verkaufen
PLZ /Ort:
Kaufpreis
Wohnfläche
Zimmer
Flächen
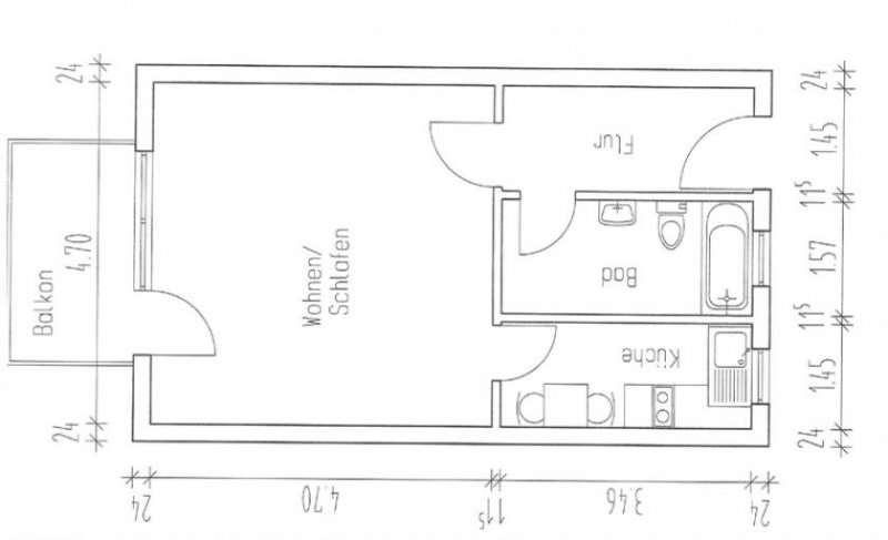
Wohnfläche:
40,00 m²
Preise
Kaufpreis:
132.000,00 €
Kaufpreis / qm:
3.300,00 €
Vermittl.-Provision:
3,57% Käufercourtage inkl MwSt
Sonstiges
Ihre Objektnr.:
SW24060101
Objekttyp:
Etage
Heizungsart:
Zentralheizung
Befeuerung:
Öl
Stellplatz-Art:
Freiplatz
Zustand:
modernisiert
Küche:
EBK
Stellplätze (Anz.):
1
Zimmer:
1
Wohn-Schlafzim.:
1
Baujahr:
1974
Energiepass
Art:
Bedarf
Gültig bis:
05-2028
Endenergiebedarf:
177
EP inkl. Warmwasser:
ja
Ausstattung
Kabel/Sat/TV
Objektbeschreibung
Zu verkaufen ist eine schnucklige, schöne helle 1 Zimmerwohnung in Freiberg am Neckar. Ausgestattet ist die Wohnung, die sich im 2.Obergeschoss befindet mit Einbauküche, Balkon und Kfz-Stellplatz. Die Wohnung wurde aufwendig renoviert und modernisiert. In den letzten Jahren wurde das Bad komplett erneuert, die Fenster und die Rollläden getauscht, eine hochwertige neue Wohnungseingangstüre installiert, ebenso wurde die Elektroinstallation überarbeitet. Sämtliche Renovierungs- und Modernisierungsmaßnahmen wurden von qualifizierten Fachfirmen durchgeführt.
Lage
Ruhige Wohngegend am Ortsrand. Öffentliche Verkehrsmittel und Dienstleistungen des täglichen Bedarfs sind bequem fußläufig in wenigen Gehminuten zu erreichen.
Ausstattung
- Balkon
- Einbauküche
- Keller
- KFZ-Stellplatz
- Tageslichtbad mit Dusche und WC
Sonstige Angaben
WICHTIG:
Der Kaufpreis für den Kfz-Stellplatz ist im Gesamtkaufpreis bereits enthalten.
Die Wohnung wird vom Eigentümer selbst genutzt und ist daher nicht vermietet!
Bitte nur schriftliche Direktanfragen über das Immobilienportal mit Angabe Ihres vollständigen Namens, derzeitigen Anschrift, Telefonnummer (zwecks Terminvereinbarung) und offizieller Mailadresse.
HINWEIS:
Mit Absenden Ihrer Anfrage erteilen sie uns Auftrag zur Immobilienvermittlung und bestätigen, dass sie über ihr Widerrufsrecht (untenstehend) belehrt wurden. Die Käufervermittlungscourtage in Höhe von 3,57% vom notariell beurkundeten Kaufpreis inkl. derzeit geltender MwSt. ist bei Kaufvertragsabschluss zur Zahlung fällig. Wir sind für den Eigentümer in gleicher Provisionshöhe tätig. Es liegt uns vom Eigentümer ein qualifizierter Alleinauftrag mit Verweisklausel vor.
Sämtliche Absprachen, Terminvereinbarungen, Kaufpreisverhandlungen oder sonstige Korrespondenz sind ausnahmslos über unser Büro zu führen.
Da wir vorstehend genannte Objektangaben nicht selbst ermitteln, sondern übermittelt erhalten, können wir für die Richtigkeit und Vollständigkeit keine Haftung übernehmen.
Wohnungen Freiberg am Neckar
HomeBooster hat dieses Objekt zum mieten und kaufen unter Freiberg am Neckar eingetragen. Die Daten zu diesem Anbieter lauten: Baroque Immo Group Immobilienmanagement Ansprechpartner Waldemar Schneider, Stuttgarterstraße 170 in 71732 Tamm. Der Link zu Immobilien zum mieten und kaufen dieses Bundeslandes findet man unter Baden-Württemberg.
Synonyme zur Suche Freiberg am Neckar Wohnungen:
Freiberg am Neckar günstige Wohnung, Wohnungsanzeigen Freiberg am Neckar









