SANKT AUGUSTIN 4 NEUBAU DOPPELHAUSHÄLFTEN Nähe HIT, REWE, ALDI ruhig, zentral 128 m² bis 142 m² Wfl.
Exposé: SANKT AUGUSTIN 4 NEUBAU DOPPELHAUSHÄLFTEN Nähe HIT, REWE, ALDI ruhig, zentral 128 m² bis 142 m² Wfl.
PLZ /Ort:
Kaufpreis
Wohnfläche
Zimmer
Grundstücksfläche
Flächen
Wohnfläche:
142,00 m²
Grundstücksfläche:
195,00 m²
Preise
Kaufpreis:
508.000,00 €
Vermittl.-Provision:
3,57 % vom Kaufpreis inkl ges. MwSt. Der Makler ist auch für den Verkäufer provisionspflichtig tätig
Sonstiges
Ihre Objektnr.:
Ebavkccfd_
Objekttyp:
Doppelhaushaelfte
Heizungsart:
Fussboden
Stellplatz-Art:
Freiplatz
Bad:
Wanne
Stellplätze (Anz.):
1.00
Zimmer:
5
Schlafzimmer:
4
Badezimmer:
2
Seperate WC:
1
Energiepass
Ausstattung
Gartennutzung
Kabel/Sat/TV
Wasch/Trockenraum
Objektbeschreibung
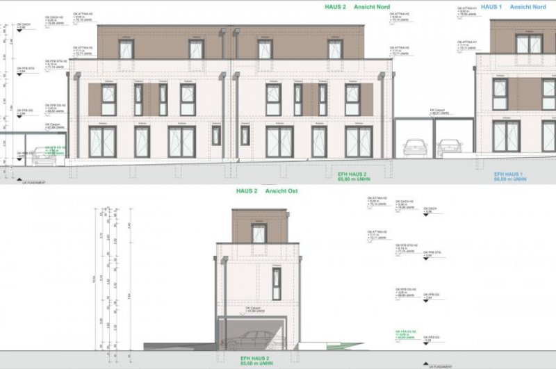
EINFAMILIEN-DOPPELHAUSHÄLFTE +++ NEUBAU+++ in Sankt Augustin-Niederpleis;
Lage: im Bereich der Schulstrasse - Paul-Gerhardt-Strasse
In Sankt Augustin-Niederpleis in wirklich toller Lage werden 4 Einfamiliendoppehaushälten -Neubau-Erstbezug- auf einem schönem Grundstück im Massivbauweise erbaut.
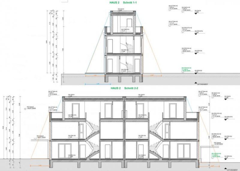
Hier das Haus Typ 2 I Hausnummer 6 D, linke DHH I 144 m² Wfl. I 195 m² GrSt.
Das Haus verfügt über ca. 144 m² Wohnfläche und über insgesamt 5 Zimmer.
Vom Eingangsbereich im Erdgeschoss gelangt man in den großzügigen Dielenbereich.
Links von der Diele erhält man Zugang zu dem geräumigen Hauswirtschaftsraum; geradeaus, rechts gelangt in den Garderobenbereich.
Ferner befindet sich auch geradeaus das Gäste-WC.
Rechts gelangt man über den Flur in das großzügige helle Wohn,- Esszimmer mit angrenzender offener Küche.
Sowie vom hellen Wohn,- Zimmer auch von der Küche gelangt man auf die Terrasse und in den Garten.
Obergeschoss:
über die zentral, abgetrennte Treppe im Wohn,- Esszimmerbereich gelangt man in das Obergeschoss, welches über ein großzügiges Elternschlafzimmer und über zwei Kinderzimmer verfügt.
Ferner befindet sich ein helles großzügiges Tageslichtbad im Obergeschoss (mit Badewanne und Dusche).
Studio:
weiterhin gelangt man über die zentral, abgetrennte Treppe im Flurbereich des Obergeschosses in das helle Studio, welches über eine großzügige Dachterrasse verfügt.
Optional kann ein separates Dusche-WC errichtet werden.
++++++++++++++++++++++++++++++++++
- die Kosten für Oberböden sowie für Maler,-/ Tapezierarbeiten sind nicht im Preis enthalten.
- die Errichtung von Terrassenanlagen und Gartenanlagen sind ebenfalls vom Käufer zu erbringen.
++++++++++++++++++++++++++++++++++
Möglichkeiten gegen Aufpreis:
- Carport / Garage - möglich -
- Sonderausstattungen - möglich -
Weitere Bautypen:
Die jeweiligen Angebote / Häuser finden Sie unter den Links:
www.enders-immobilien.de/Ebavkccfa_
www.enders-immobilien.de/Ebavkccfb_
www.enders-immobilien.de/Ebavkccfc_
www.enders-immobilien.de/Ebavkccfd_ ---hier die rechte Doppelhaushälfte !---
Geben Sie die jeweiligen Links in Ihren Browser ein.
____________________________________________________
KURZINFOS zur linken Doppelhaushälfte:
Größen / Aufteilung:
- 5 Zimmer, Küche, Bad im OG und Bad oder Dusche im Studio (optional).
- große Terrasse im EG und schöne Sonnen-Dachterrasse im Studiobereich.
____________________________________________________
Wohnflächen von ca. 128 m² Wfl. bis ca. 142 m² Wfl. inkl. Terrassenflächen
____________________________________________________
Grundstücksgrößen zwischen 132 m² und 195 m²
____________________________________________________
Kaufpreise ab 461.640,-- Euro bis 508.000,-- Euro
____________________________________________________
Ausstattung:
gehoben und modern ! Viele Varianten sind denkbar...
Es gilt die Baubeschreibung sowie die gewünschten Sonderausstattungen und vereinbarten Sonderleistungen auch gegen Aufpreise.
____________________________________________________
Lage:
. Absolute Nähe zu Rewe, Aldi und Hit Markt.
. Absolut zentral und ruhig gelegen.
. Schulen und Kindergärten Fußläufig. Post, Apotheken, Ärzte, Einkäufe, Bus... fußläufig...
. Ideale Lage für Familien.
+++++ Nur vier Einheiten !!! Lassen Sie sich vormerken +++++
. Grundrisse, Pläne, Ansichten, Lagepläne folgen in Kürze !
INFOS erhalten Sie auch unter: (0 1 78 ) 9 836 936
Die Doppelhaushälften werden in Massivbauweise errichtet.
FINANZIERUNGEN:
Finanzierungen zu Sonderkonditionen sind möglich ! Sprechen Sie uns an !
Finanzieren Sie sicher und langfristig gut !
Einen seriösen Finanzierungspartner können wir Ihnen empfehlen.
Lage
Die Doppelhaushälften werden in einer ruhigen, aber dennoch zentralen Lage in Sankt Augustin Niederpleis als Neubauten errichtet.
Geschäfte für Güter des täglichen Bedarfs sind in unmittelbarer Nähe sowie in Sankt Augustin reichhaltig vorhanden.
Der REWE sowie der HIT- und ALDI-Markt sowie eine Metzgerei und Bäckerei befinden sich auf der Alten Heerstrasse und sind somit fußläufig erreichbar.
Sämtliche Schulformen und Kindergärten sowie große Einkaufs- und Sportzentren, Arztpraxen und Apotheken sind ebenfalls in Sankt Augustin vorhanden.
Autobahnanschluss:
ca.1,5 km Richtung Bonn und Köln - Entfernung nach Köln ca. 30 km, Bonn über die B 56 ca. 8 km.
Öffentliche Verkehrsanbindung:
. Bushaltestellen fußläufig ca. 200 m.
. Die öffentliche Verkehrsanbindung über die S- und Regionalbahnverbindung Siegburg / Köln ist als sehr gut zu bewerten.
Aufgrund der hervorragenden Infrastruktur und der nahezu idealen Verkehrsanbindung sowie der absoluten Nähe zu Köln und Bonn gehört Sankt Augustin, insbesondere die Ortsteile "Hangelar und Niederberg", zu den begehrten Wohnlagen.
An der Haltestelle Sankt Augustin-Markt gelangt man zum ICE Bahnhof Siegburg und an die S- und Regionalbahnschiene Köln / Siegen / Gießen mit Anschluss an die ICE-Schiene, ebenfalls zum Airport Köln/Bonn sowie nach Frankfurt.
Ausstattung
- Massivbauweise
- Kunsstofffenster mit Isolierverglasung
- Heizung: Luft- Wärmepumpe
- Badezimmer: hell und modern gefliest
- weitere Ausstattungen auf Anfrage
+++ fordern Sie die Baubeschreibung an +++
Sonstige Angaben
Objektinformationen:
weitere Objektinformationen und Bilder sehen Sie unter:
www.enders-immobilien.de/Ebavkccfd_
Bei den Bildern handelt es sich um bereits erbaute Doppelhaushälften.
Diese können Sie gerne im Raum Oberdollendorf "als Musterhäuser" besichtigen.
Aufteilung:
Informationen hinsichtlich der Angaben zur Aufteilung -Grundrisse- erhalten Sie gesondert in dem Sie ein Exposé bei uns anfordern.
Bezug:
Neubau / Erstbezug
Ein Verkauf ist voraussichtlich erst ab ca. August / September 2021 bzw. nach gesonderter Vereinbarung mit dem Bauträger möglich.
_______________________________________________________
Kontakt:
wir bitten Sie vordergründig per Mail mit uns in Kontakt zu treten.
Bearbeitung:
Mails ohne Angaben Ihres Namen, Vornamens, postalischer Anschrift sowie Rufnummern und Emailadressen können wir nicht bearbeiten.
Anfragen und Besichtigungstermine:
Besichtigungstermine können nur vereinzelt vor Ort am Grundstück angeboten werden !
Es sind keine Massenbesichtigungen möglich !
Die Hygieneregeln müssen eingehalten werden.
Oftmals können wir nicht allen Interessenten einen Besichtigungstermin anbieten und jedem Interesse gerecht werden.
Da wir als Immobilienfirma täglich eine Vielzahl von Emails erhalten, können wir nicht zusagen Ihnen umgehend antworten zu können.
In der Regel erhalten Sie vom Internetanbieter auch eine standardisierte Antwortmail.
________________________________________________________
Maklercourtage:
für den Nachweis und/oder die Vermittlung zahlt der Käufer 3,57 % Maklercourtage vom Kaufpreis inkl. der gesetzlichen MwSt. von derzeit 19 % unbeschadet einer Courtagezahlung der Verkäuferseite.
Der Makler ist auch für die Verkäuferseite (als Doppelmakler) provisionspflichtig tätig.
Energieausweis:
ein Energieausweis nach EnEV liegt vor.
Haftungsausschluss:
das Exposé wurde anhand der Angaben und Unterlagen des Verkäufers erstellt.
Eine Gewähr über die Vollständigkeit und Richtigkeit dieser Angaben können wir somit nicht übernehmen.
Ferner bleibt uns ein Zwischenverkauf vorbehalten.
+++++++++++++++++++++++++++++++++++++++++++
Widerrufsbelehrung:
im Falle eines Zustande kommenden Vertrages haben Verbraucher das folgende Widerrufsrecht:
Sie haben das Recht, binnen vierzehn Tagen ohne Angabe von Gründen den Vertrag zu widerrufen.
Die Widerrufsfrist beträgt vierzehn Tage ab dem Tag des Vertragsabschlusses.
Um Ihr Widerrufsrecht auszuüben, müssen Sie uns mittels einer eindeutigen Erklärung (z.B. ein mit der Post versandter Brief, Telefax oder E-Mail) über Ihren Entschluss, diesen Vertrag zu widerrufen, informieren.
Der Widerruf ist zu richten an:
ENDERS IMMOBILIEN Vermietung & Verkauf
Alte Heerstrasse 39
53757 Sankt Augustin
Fax-Nr.: 02241 3982 39
info@enders-immobilien.de
Zur Wahrung der Widerrufsfrist reicht es aus, dass Sie die Mitteilung über die Ausübung des Widerrufsrechts vor Ablauf der Widerrufsfrist absenden.
Folgen des Widerrufs:
wenn Sie diesen Vertrag widerrufen, haben wir Ihnen alle Zahlungen, die wir von Ihnen erhalten haben, einschließlich der Lieferkosten (mit Ausnahme der zusätzlichen Kosten, die sich daraus ergeben, dass Sie eine andere Art der Lieferung als die von uns angebotene, günstigste Standardlieferung gewählt haben), unverzüglich und spätestens binnen vierzehn Tagen ab dem Tag zurückzuzahlen, an dem die Mitteilung über Ihren Widerruf dieses Vertrags bei uns eingegangen ist.
Für diese Rückzahlung verwenden wir dasselbe Zahlungsmittel, das Sie bei der ursprünglichen Transaktion eingesetzt haben, es sei denn, mit Ihnen wurde ausdrücklich etwas anderes vereinbart; in keinem Fall werden Ihnen wegen dieser Rückzahlung Entgelte berechnet.
Haben Sie verlangt, dass die Dienstleistungen während der Widerrufsfrist beginnen soll, so haben Sie uns einen angemessenen Betrag zu zahlen, der dem Anteil der bis zu dem Zeitpunkt, zu dem Sie uns von der Ausübung des Widerrufsrechts hinsichtlich dieses Vertrags unterrichten, bereits erbrachten Dienstleistungen im Vergleich zum Gesamtumfang der im Vertrag vorgesehenen Dienstleistungen entspricht.
+++++++++++++++++++++++++++++++++++++++++++
Muster-Widerrufsformular
Wenn Sie den Vertrag widerrufen wollen, dann füllen Sie dieses Formular aus und senden Sie es zurück:
An
ENDERS IMMOBILIEN IVD
Alte Heerstrasse 39
53757 Sankt Augustin
Fax: (0 22 41) 39 82 - 39
E-Mail: info@enders-immobilien.de
Hiermit widerrufe(n) ich/wir (*) den von mir/uns (*) abgeschlossenen Vertrag über den Kauf der folgenden Waren (*)/die Erbringung der folgenden Dienstleistung (*)
. Bestellt am (*)/erhalten am (*)
. Name des/der Verbraucher(s)
. Anschrift des/der Verbraucher(s)
. Unterschrift des/der Verbraucher(s) (nur bei
Mitteilung auf Papier)
. Datum
_____________________________
(*) Unzutreffendes streichen+++++++
Häuser St. Augustin
Dieses Immobilien-Exposé wird geführt unter St. Augustin. Am Anfang suchen User zuerst auf der Seite Nordrhein-Westfalen.
Der Anbieter ENDERS IMMOBILIEN Vermietung und Verkauf Ansprechpartner Volker Enders, Alte Heerstrasse 39 in 53757 Sankt Augustin hat diese Immobilie hochgeladen.
Synonyme zur Suche St. Augustin Häuser:
St. Augustin Häuser online, Haus mieten und kaufen St. Augustin, günstige Häuser St. Augustin










