Repräsentatives Ladenlokal/Austellungsraum/Bürofläche in der Innenstadt zu vermieten!
Exposé: Repräsentatives Ladenlokal/Austellungsraum/Bürofläche in der Innenstadt zu vermieten!
Strasse:
PLZ /Ort:
Kaltmiete
Gesamtfläche
Gesamtfläche
Flächen
Fensterfront (lm):
12.00
Gesamtfläche:
459,00 m²
Preise
Kaltmiete:
2.500,00 €
Warmmiete:
3.570,00 €
Nebenkosten:
500,00 €
Kaution:
6000.00
Sonstiges
Ihre Objektnr.:
MV-161-EG-G
Objekttyp:
Ladenlokal
Heizungsart:
Zentralheizung
Fahrstuhl:
Lasten
Befeuerung:
Gas
Zustand:
nach Vereinbarung
Stellplätze (Anz.):
3
Energiepass
Art:
Bedarf
Gültig bis:
18.12.2028
Endenergiebedarf:
205
Ausstattung
barrierefrei
Objektbeschreibung
Einzigartige Gewerbefläche mit vielfältigen Nutzungsmöglichkeiten
Suchen Sie nach einer repräsentativen Gewerbefläche in bester Lage Holzmindens?
Dann haben wir genau das Richtige für Sie!
Im Zentrum von Holzminden bieten wir Ihnen eine großzügige Fläche im Erdgeschoss
eines Wohn- und Geschäftshauses an.
Es handelt sich um eine großzügige Erdgeschossfläche in einem Eckgebäude, die durch ihre repräsentative Erscheinung und vielfältigen Nutzungsmöglichkeiten überzeugt. Die Eigentümer sind offen für neue Ideen und eine individuelle Gestaltung der Fläche.
* Optimale Lage: Direkt in der Fußgängerzone, in einem Eckgebäude mit großer und einladender Schaufensterfront.
* Flexible Nutzung: Ob als Ladenlokal, Showroom oder Veranstaltungsraum – diese Fläche bietet Ihnen zahlreiche Möglichkeiten.
* Repräsentativer Auftritt: Die hohe Raumhöhe und die großzügige Schaufensterfront schaffen ein einladendes Ambiente. Die Belichtung der Fläche ist von drei Seiten möglich.
* Gute Infrastruktur: Barrierefreier Zugang, Aufzug in den Lagerbereich, Lieferhof und ausreichend Parkplätze für Ihre Mitarbeiter. Öffentliche Kundenparkplätze vor der Tür.
* Individuelle Gestaltung: Der Ausbau der Fläche kann flexibel an Ihre Bedürfnisse angepasst werden.
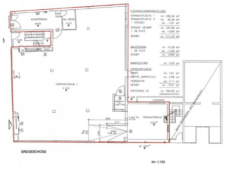
* Verkaufsfläche: ca. 350 m²
* Raumhöhe: ca. 5,40 m (abgehängte Decke)
* Schaufensterfront: ca. 12,00 m
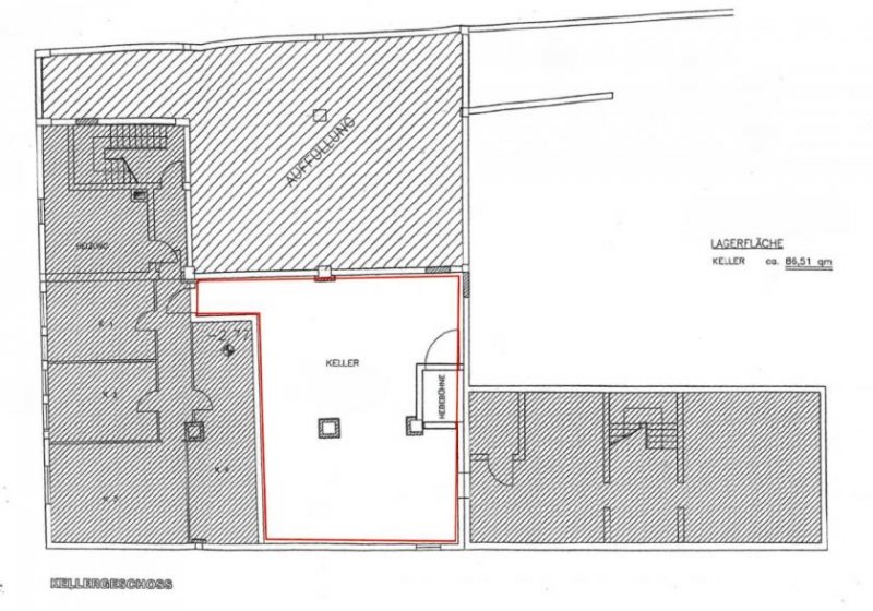
* Lagerflächen: Im Untergeschoss über einen Aufzug erreichbar
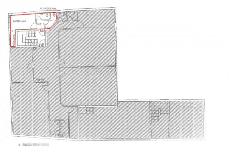
* Sozialräume: Im ersten Obergeschoss
* Stellplätze: 3 Stellplätze für Mitarbeiter
Ihre Vorteile im Überblick:
* Ebenerdig und behindertengerecht
* Übersichtlich und flexibel zu unterteilen
* Schnell verfügbar und gut ausgestattet
* Großes Einzugsgebiet und hohe Kaufkraft
* Offenheit der Eigentümer für neue Ideen.
Wir sind offen für Ihre Ideen und Mietpreisvorschläge!
Bitte sprechen Sie uns an, wenn Sie mehr Informationen benötigen oder einen Besichtigungstermin vereinbaren wollen. Wir streben einen Mietvertrag auf 5 Jahre an, mit der Option auf Verlängerung. Mit dem Eigentümer der Liegenschaft haben Sie einen zuverlässigen Vertragspartner an Ihrer Seite.
Lage
Ihre neue Geschäftsadresse in bester Lage von Holzminden!
Profitieren Sie von einer erstklassigen Lage im Herzen von Holzminden, einer Stadt mit einer starken Wirtschaftskraft und einer guten Infrastruktur.
Umgeben von etablierten Unternehmen und einer wachsenden Zahl von Start-ups bietet diese Lage optimale Bedingungen für Ihr Unternehmen.
Warum Holzminden?
Industriestandort: Renommierte Unternehmen wie Symrise, Stiebel Eltron und Müller & Müller haben hier ihren Sitz und schaffen einen attraktiven Wirtschaftsraum.
Hochschulnähe: Die Fachhochschule Holzminden mit ihren zahlreichen Studierenden bietet ein großes Potenzial an Fachkräften und Kunden.
Zentrale Lage: Holzminden ist verkehrsgünstig gelegen und bietet eine gute Anbindung an das überregionale Straßennetz.
Hohe Kaufkraft: Die Einwohner von Holzminden verfügen über eine überdurchschnittliche Kaufkraft, was sich positiv auf Ihre Geschäftsentwicklung auswirken kann.
Ihre Vorteile auf einen Blick:
Optimale Verkehrsanbindung:
Sowohl für Ihre Mitarbeiter als auch für Ihre Kunden ist die Anfahrt unkompliziert.
Repräsentative Geschäftsadresse:
Unterstreichen Sie den Erfolg Ihres Unternehmens mit einer Adresse in bester Lage.
Flexibilität: Die Gewerbefläche kann individuell an Ihre Bedürfnisse angepasst werden.
Zukunftssicherer Standort: Investieren Sie in eine Immobilie in einer Region mit stabiler wirtschaftlicher Entwicklung.Die Fläche befindet sich in bester Lage von Holzminden - Innenstadt
Die unmittelbar benachbarten Kreisstädte Holzminden und Höxter haben insgesamt 60.000 Einwohner.
Die Stadt Holzminden liegt in Südniedersachsen und die Stadt Höxter in Nordrhein-Westfalen (Ostwestfalen). Als Funktion eines Mittelzentrums, hat Holzminden einen Einzugsbereich von rund 80.000 Menschen.
Ausstattung
* Die Gewerbefläche verfügt über eine zentrale Gasheizung und eine Lüftungsanlage.
* Barrierefreier Zugang: Eine automatische Tür ermöglicht einen komfortablen und barrierefreien Zugang zum Verkaufsraum.
* Effizienter Transport: Ein Lastenaufzug erleichtert den Transport von Waren in den Keller-/Lagerraum.
* Moderne Optik: Die geflieste Verkaufsfläche mit abgehängter Decke sorgt für eine moderne und pflegeleichte Umgebung.
Sonstige Angaben
Die Objektunterlagen wurden mit Sorgfalt erstellt. Da jedoch die Größen und die Beschreibungen größtenteils auf Angaben Dritter basieren, können wir für die Richtigkeit keine Gewähr übernehmen.
Bitte füllen Sie das Kontaktformular vollständig aus! Bitte nennen Sie uns Ihre vollständige Adresse und Ihre Telefonnummer unter der wir Sie tagsüber erreichen können! Bitte haben Sie Verständnis dafür, dass wir ohne diese Angaben keine Besichtigungstermine mit Ihnen vereinbaren können!
Gewerbe Immobilien Holzminden
Dieses vorliegende Exposé gehört zur Listeseite Holzminden. Niedersachsen ist die geografische Zuordnung dieses Objektes zum mieten und kaufen.
Weitere Immobilien zum mieten und kaufen kommen von Heise Immobilien Hausverw. GmbH & Co. KG Ansprechpartner Hendryk-Torben Heise, Ernst-August-Straße in 37603 Holzminden.
Synonyme zur Suche Holzminden Gewerbe Immobilien:
Holzminden Immobilien für Unternehmen, Gewerbeimmobilien mieten Holzminden, Industrie Immobilien Holzminden










