repräsentative Büroräume in ländlicher Gegend - Langenau
Exposé: repräsentative Büroräume in ländlicher Gegend - Langenau
Strasse:
PLZ /Ort:
Kaltmiete
Gesamtfläche
Gesamtfläche
Flächen
Gesamtfläche:
191,00 m²
Preise
Kaltmiete:
1.300,00 €
Warmmiete:
1.695,00 €
Nebenkosten:
370,00 €
Stellplatz (Miete):
25,00 €
Sonstiges
Ihre Objektnr.:
186
Objekttyp:
Buerohaus
Heizungsart:
Fussboden
Befeuerung:
Solar
Stellplatz-Art:
Freiplatz
Zustand:
Teil- / Vollrenoviert
Stellplätze (Anz.):
1
Zimmer:
6
Badezimmer:
1
Energiepass
Ausstattung
Kamin
Gartennutzung
Kabel/Sat/TV
Wasch/Trockenraum
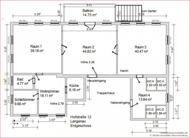
Objektbeschreibung
Arbeiten in ruhiger Lage wie in einem Schloss.
Diese repräsentativen Büroräume stehen zur sofortigen Anmietung.
Hochwertig, kernsanierte Anlage die keine Wünsche offen lässt.
Drei große Büroräume. Ein Raum mit Kamin und Zugang zum großen Balkon.
Der Balkon führt wiederum zu den Kfz-Stellplätzen.
In allen Räumen wurde Laminatboden verlegt.
Ein großer Raum muss noch renoviert werden. Hier können Ihre Wünsche berücksichtigt werden.
Eine zuletzt als 2-Zimmer Wohnung genutzte Flächen können weiterhin zu Wohnzwecken verwandt wie auch zu Büroräumen umgewandelt werden.
Es stehen je 2 Herren-WC und 2 Damen-WC zur Verfügung
Eine Solaranlage zur Warmwasserbereitung ist unterstützend zur Warmwasseraufbereitung installiert und spart somit Betriebskosten.
Lage
Langenau ist ein Ortsteil der Großen Kreisstadt Brand-Erbisdorf in Sachsen.
In Brand-Erbisdorf sind alle Schulen vertreten, Grundschule, Oberschule und Gymnasium.
Gute Busverbindungen nach – Brand-Erbisdorf – Freiberg oder Richtung Eppendorf / Chemnitz.
10 km bis zur großen Kreisstadt Freiberg, 32 km bis Chemnitz und 47 km bis Dresden.
Gewerbe Immobilien Brand-Erbisdorf
Weitere Inserate zum mieten und kaufen finden sich unter Brand-Erbisdorf. Der Link zu Immobilien zum mieten und kaufen dieses Bundeslandes findet man unter Sachsen.
Weitere Immobilien zum mieten und kaufen kommen von G. Richter Immobilien / Imseri Facility Management Ansprechpartner Uwe Richter, Leipziger Straße in 09599 Freiberg.
Synonyme zur Suche Brand-Erbisdorf Gewerbe Immobilien:
Brand-Erbisdorf Immobilien für Unternehmen, Gewerbeimmobilien mieten Brand-Erbisdorf, Industrie Immobilien Brand-Erbisdorf









