Reihenendhaus in Fürstenfeldbruck – ruhig, saniert und gute Miete
Exposé: Reihenendhaus in Fürstenfeldbruck – ruhig, saniert und gute Miete
PLZ /Ort:
Kaufpreis
Wohnfläche
Zimmer
Grundstücksfläche
Flächen
Wohnfläche:
85,00 m²
Nutzfläche:
42,00 m²
Grundstücksfläche:
452,00 m²
Preise
Kaufpreis:
649.000,00 €
Sonstiges
Ihre Objektnr.:
UV784
Objekttyp:
Reihenend
Befeuerung:
Gas
Zustand:
Teil- / Vollrenoviert
Zimmer:
3
Schlafzimmer:
2
Badezimmer:
1
Seperate WC:
1
Baujahr:
1960
vermietet:
1
Energiepass
Art:
Verbrauch
Gültig bis:
2035-10-28
E-Verbrauchskennw.:
118.50
Ausstattung
Objektbeschreibung
Reihenendhaus in Fürstenfeldbruck – Kapitalanlage mit solider Vermietung
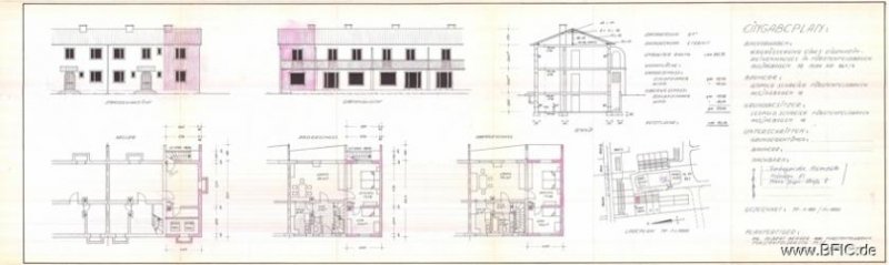
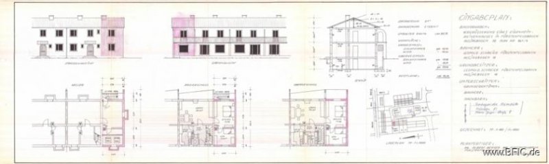
Zum Verkauf steht ein gepflegtes Reihenendhaus in Fürstenfeldbruck. Das Haus wurde 1960 errichtet, 1966 erweitert und im Jahr 2019 umfassend modernisiert. Im Zuge der Sanierung wurden unter anderem die Fenster, die Elektroinstallationen sowie die Heizungsanlage erneuert. Die Wohnfläche beträgt rund 85 m², verteilt auf Erd- und Obergeschoss. Zusätzlich stehen Nutzflächen im Dach- und Kellergeschoss zur Verfügung.
Im Erdgeschoss befinden sich das Wohnzimmer, die Küche, die Diele und ein Gäste-WC. Das Obergeschoss verfügt über zwei Schlafzimmer sowie ein Badezimmer. Das Dachgeschoss mit einer Dachneigung von 21° ist nur eingeschränkt nutzbar, während das Kellergeschoss mit einem großzügigen Hobbyraum, einem Heizungskeller mit neuer Gaszentralheizung und einem Waschkeller überzeugt. Zum Haus gehören ein Garten, eine Terrasse sowie ein Pkw-Stellplatz.
Das Grundstück umfasst insgesamt 452 m², bestehend aus 284 m² real zugeordnetem Grundstücksanteil sowie 168 m² als Miteigentumsanteil an der Anliegerstraße.
Die Immobilie ist seit dem 1. Juli 2019 vermietet und erzielt laufende Mieteinnahmen von monatlich 1.880 €, davon 1.680 € Kaltmiete zuzüglich 200 € Nebenkosten. Dies entspricht einer Jahresnettokaltmiete von 20.160 €.
Lage
Makrolage
Die Immobilie befindet sich in der Großen Kreisstadt Fürstenfeldbruck im Westen der Metropolregion München. Mit rund 38.000 Einwohnern ist Fürstenfeldbruck das wirtschaftliche und kulturelle Zentrum des gleichnamigen Landkreises. Der Standort verbindet die Nähe zur Landeshauptstadt mit einer hohen Wohn- und Lebensqualität.
Die Verkehrsanbindung ist hervorragend: Über die Bundesstraße B471, die Autobahnen A8 und A99 sowie die S-Bahn-Linie S4 ist Fürstenfeldbruck eng mit München und der gesamten Region verbunden. Die Fahrzeit mit der S-Bahn zum Münchner Hauptbahnhof beträgt ca. 25 Minuten. Der Flughafen München ist mit dem Auto in rund 40 Minuten erreichbar.
Neben der Nähe zu München bietet Fürstenfeldbruck eine eigene, sehr gute Infrastruktur mit Schulen, Kindergärten, medizinischen Einrichtungen, Behörden und vielfältigen Einkaufsmöglichkeiten. Zudem ist die Stadt für ihr reichhaltiges Kultur- und Freizeitangebot bekannt, u. a. durch das Veranstaltungszentrum im historischen Kloster Fürstenfeld.
Mikrolage
Das Reihenendhaus liegt in einer ruhigen Wohnstraße in 82256 Fürstenfeldbruck, in einem gewachsenen Wohngebiet am östlichen Stadtrand. Die Umgebung ist geprägt von Reihen- und Einfamilienhäusern mit Gärten und zeichnet sich durch eine familienfreundliche Atmosphäre aus.
Einkaufsmöglichkeiten für den täglichen Bedarf sind in wenigen Minuten erreichbar, ebenso Kindergärten, Grund- und weiterführende Schulen. Eine gute Anbindung an den öffentlichen Nahverkehr ist durch nahegelegene Buslinien sowie die S-Bahn-Station Fürstenfeldbruck (S4) gegeben. Von hier aus besteht eine direkte Verbindung in die Münchner Innenstadt.
Das Wohnumfeld bietet zahlreiche Möglichkeiten zur Freizeitgestaltung und Erholung. Spaziergänge und Radtouren entlang der Amper, Sport- und Vereinsangebote, das nahe Hallen- und Freibad AmperOase sowie das kulturelle Angebot im Kloster Fürstenfeld unterstreichen die hohe Lebensqualität. Auch beliebte Naherholungsziele wie der Ammersee oder der Pilsensee sind mit dem Auto schnell erreichbar.
Häuser Fürstenfeldbruck
HomeBooster hat dieses Objekt zum mieten und kaufen unter Fürstenfeldbruck eingetragen. Der Link zu Immobilien zum mieten und kaufen dieses Bundeslandes findet man unter Bayern.
Der Anbieter Brau & Friedrich Immobilien Ansprechpartner Holger Brau, Wallstr. 25 in 10179 Berlin hat diese Immobilie hochgeladen.
Synonyme zur Suche Fürstenfeldbruck Häuser:
Fürstenfeldbruck Häuser online, Haus mieten und kaufen Fürstenfeldbruck, günstige Häuser Fürstenfeldbruck






