Rehna Stadtzentrum - Neugebautes Wohn- und Geschäftshaus als Anlageobjekt
Exposé: Rehna Stadtzentrum - Neugebautes Wohn- und Geschäftshaus als Anlageobjekt
PLZ /Ort:
Kaufpreis
Wohnfläche
Grundstücksfläche
Flächen
Wohnfläche:
710,00 m²
Grundstücksfläche:
320,00 m²
Preise
Kaufpreis:
630.000,00 €
Vermittl.-Provision:
6% zzügl. gesetzl. Ust.
Sonstiges
Energiepass
Ausstattung
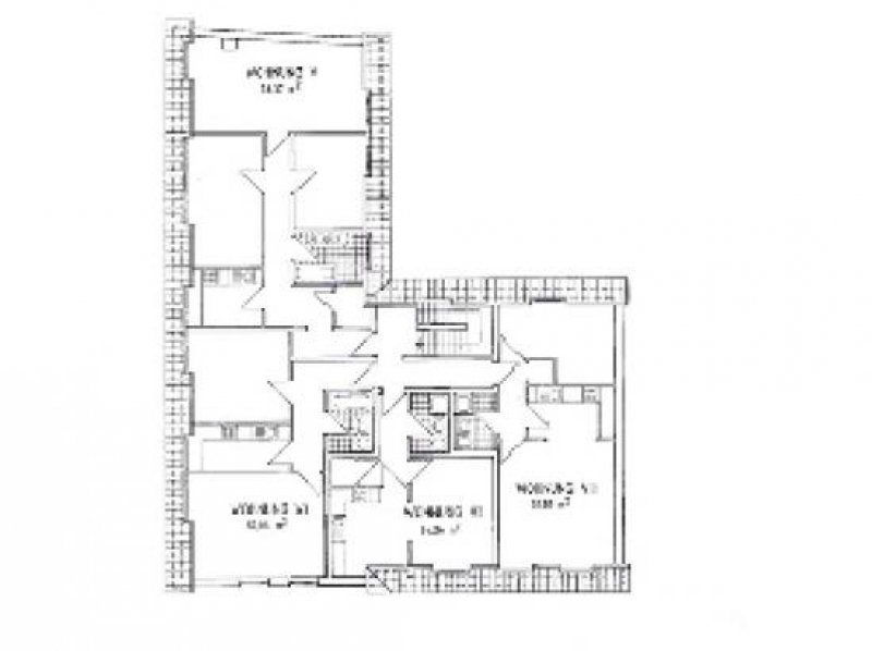
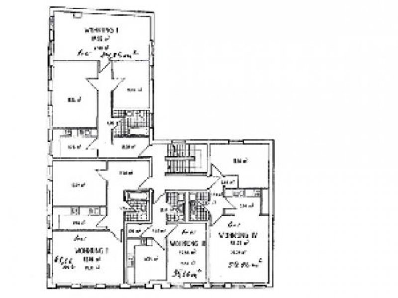
Objektbeschreibung
In bester Innenstadtlage von Rehna befindet sich dieses 1998 neu gebaute Wohn- und Geschäftshaus. Rehna liegt auf halber Strecke zwischen Schwerin und Lübeck, ca. 8 Km von der A 20 Autobahnabfahrt Schönberg entfernt. Es besitzt insgesamt ca. 708 m² Wohn- und Geschäftsfläche auf drei Etagen verteilt. Die Wohnfläche 458 m² , ist aufgeteilt auf 8 Wohneinheiten zwischen 34 m² und 85 m². Die Gewerbefläche von 250 m² unterteilt sich in 2 Einheiten mit einer Größe von 89 m² bzw. 161 m². Zurzeit ist das Objekt voll vermietet. Die Mieteinnahmen belaufen sich momentan auf ca. 52.000,-- € p.a.. Auf dem ca. 320m² großem Grundstück befinden sich 3 PKW Stellplätze die für zusätzliche Einnahmen sorgen. Auf dem Hof befindet sich für jeden Mieter ein fester Schuppen als Nebengelass. Das Treppenhaus ist hell und modern gefliest.... ... Weitere Informationen unter www.immo-konzepte.de
Häuser Benzin
Weitere Inserate zum mieten und kaufen finden sich unter Benzin. Die Angeben des Anbieters lauten Immo-Konzepte Immobilien GmbH Ansprechpartner Carsten Rönndahl, Jahnstraße in 19055 Schwerin. Unter Mecklenburg-Vorpommern sind weitere relevante Immobilien vorhanden.
Synonyme zur Suche Benzin Häuser:
Benzin Häuser online, Haus mieten und kaufen Benzin, günstige Häuser Benzin






