Provisionsfreie Bürofläche im Souterrain eines gepflegten Altbaus
Exposé: Provisionsfreie Bürofläche im Souterrain eines gepflegten Altbaus
Strasse:
PLZ /Ort:
Kaltmiete
Gesamtfläche
Gesamtfläche
Flächen
Gesamtfläche:
63,00 m²
Preise
Kaltmiete:
399,00 €
Warmmiete:
588,00 €
Nebenkosten:
189,00 €
Kaution:
1197
Sonstiges
Ihre Objektnr.:
QL650_1
Befeuerung:
Gas
Boden:
Fliesen
Zustand:
gepflegt
Baujahr:
1892
Energiepass
Art:
Verbrauch
Gültig bis:
2028-07-19
E-Verbrauchskennw.:
117.00
Ausstattung
Objektbeschreibung
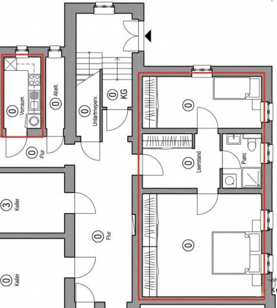
Zur Vermietung steht eine ca. 62 m² große Gewerbefläche, die sich im Souterrain eines gepflegten Wohnhauses befindet. Die Einheit umfasst drei separate Zimmer, die flexibel genutzt und individuell eingerichtet werden können. Dank der vorhandenen Fenster in allen Räumen ist ausreichend Tageslicht gegeben, was für eine angenehme Arbeitsatmosphäre sorgt.
Die Fläche eignet sich insbesondere für eine Büronutzung, beispielsweise für Dienstleister, kleinere Unternehmen oder als ruhiger Arbeitsplatz. Bei Bedarf können zusätzlich Garagen oder Stellplätze angemietet werden.
Lage
Die Carl-von-Ossietzky-Straße 21 befindet sich in attraktiver und gewachsener Wohnlage von Eberswalde, einer charmanten Stadt nordöstlich von Berlin, die urbanes Leben mit naturnaher Umgebung verbindet. Das Umfeld ist geprägt von gepflegten Wohnhäusern, viel Grün und einer angenehmen, ruhigen Atmosphäre.
Das Stadtzentrum von Eberswalde ist in wenigen Minuten erreichbar und bietet eine hervorragende Infrastruktur mit vielfältigen Einkaufsmöglichkeiten, Cafés, Restaurants sowie kulturellen Einrichtungen. Schulen, Kindertagesstätten, Ärzte und Apotheken befinden sich ebenfalls in der näheren Umgebung und unterstreichen die hohe Alltagstauglichkeit der Lage.
Die Verkehrsanbindung ist sehr gut: Der Eberswalder Hauptbahnhof mit Regional- und Fernverkehrsanbindung liegt in kurzer Entfernung und ermöglicht eine schnelle Verbindung nach Berlin. Auch mit dem Auto ist die Hauptstadt über die nahegelegene B167 sowie die A11 zügig erreichbar.
Eberswalde ist zudem bekannt für seine naturnahe Umgebung. Zahlreiche Grünflächen, Parks sowie der nahegelegene Finowkanal und der Naturpark Barnim bieten vielfältige Möglichkeiten zur Erholung, Freizeitgestaltung und sportlichen Aktivitäten.
Diese Lage vereint ruhiges Wohnen, eine sehr gute Infrastruktur und eine hervorragende Anbindung
Ausstattung
- ca. 62 m² Gewerbefläche
- drei separate Zimmer
- Fenster in allen Räumen mit Tageslicht
- zwei Zimmer mit Fliesenboden
- flexible Nutzungsmöglichkeiten
- optional anmietbare Garagen oder Stellplätze
Sonstige Angaben
Wir haben Ihr Interesse geweckt?
Hier auf dieser Seite finden Sie jetzt die Möglichkeit der Kontaktaufnahme. Für weitere Informationen (Termine, Anschrift u.ä.) benötigen wir Ihre Angaben: Name, Vorname, Anschrift, E-Mail, Telefonnummer (fest/mobil).
Unvollständige Anfragen können wir nicht bearbeiten!!!
Für alle weiteren Informationen rufen Sie uns bitte unter der Telefonnummer 0155 609 252 74 an.
Es betreut Sie:
Til Bamberger
Folgende Unterlagen werden benötigt:
-Einkommensnachweise der letzten drei Monate -Personalausweis (in Kopie)
-Mietschuldenfreiheitsbescheinigung vom aktuellen Vermieter
-Schufa-Auskunft (www.meineschufa.de)
-im Falle einer Bürgschaft benötigen wir die gleichen Unterlagen des Bürgen und eine Bürgschaftserklärung
Folge agas.berlin auf Instagram oder Facebook und sei immer zuerst informiert!
Nur ein geringer Anteil unserer Immobilien wird von uns im Internet präsentiert. Suchende können sich über unsere Website http://www.agas-immobilien.de/sie-suchen-wir-finden für Immobilien vormerken lassen. Sie erhalten dann Immobilienangebote, bevor diese online vermarktet werden.
Möchten Sie auch eine Immobilie verkaufen oder vermieten, wir informieren Sie gerne diskret und unverbindlich über Ihre Möglichkeiten. Auf http://www.agas-immobilien.de finden Sie diverse Referenzen und Kundenstimmen von erfolgreichen Vermittlungen.
Gewerbe Immobilien Eberswalde
Die Verlinkung dieses Exposé's ist unter Eberswalde inseriert. Die Immobiliensuche startet meistens bei Mietobjekten und Kaufimmobilien unter Brandenburg.
Weitere Immobilien zum mieten und kaufen kommen von Agas Immobilien GmbH Ansprechpartner Matthias Wedel, Ackerstraße 9 in 10115 Berlin.
Synonyme zur Suche Eberswalde Gewerbe Immobilien:
Eberswalde Immobilien für Unternehmen, Gewerbeimmobilien mieten Eberswalde, Industrie Immobilien Eberswalde










