Prov.-frei: MODERNES NEUBAU-BÜRO IN WESTEND FÜR ALLE, DIE WAS BESSERES WOLLEN
Exposé: Prov.-frei: MODERNES NEUBAU-BÜRO IN WESTEND FÜR ALLE, DIE WAS BESSERES WOLLEN
PLZ /Ort:
Kaltmiete
Gesamtfläche
Gesamtfläche
Flächen
Nutzfläche:
231,31 m²
Gesamtfläche:
231,31 m²
Preise
Kaltmiete:
3.730,00 €
Nebenkosten:
510,00 €
Heizkosten:
356,00 €
Kaution:
13788.00
Sonstiges
Ihre Objektnr.:
330008682
Objekttyp:
Bueroflaeche
Heizungsart:
Zentralheizung
Stellplatz-Art:
Tiefgarage
Stellplätze (Anz.):
3
Zimmer:
7
Badezimmer:
1
Seperate WC:
2
Baujahr:
1995
Energiepass
Art:
Verbrauch
E-Verbrauchskennw.:
120.00
Ausstattung
Objektbeschreibung
Das hier angebotene Büro befindet sich in einer gefragten Lage im westlichen Berlin, unweit der Soorstraße. Die Umgebung zeichnet sich durch eine hervorragende Infrastruktur und eine angenehme Arbeitsatmosphäre aus. Die Anbindung an den öffentlichen Nahverkehr ist optimal gewährleistet: Eine U-Bahn-Station befindet sich in unmittelbarer Nähe und bietet Ihren Mitarbeitern und Kunden eine schnelle Erreichbarkeit. Die Lage verbindet die Ruhe eines etablierten Quartiers mit der zentralen Anbindung, die für moderne Unternehmen essenziell ist.
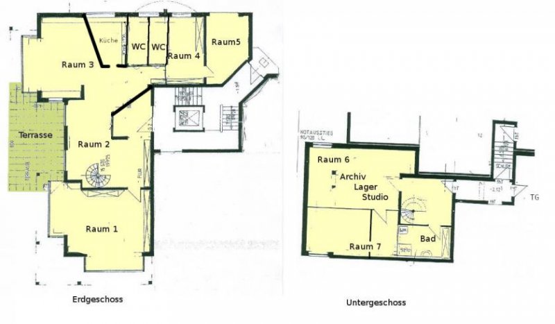
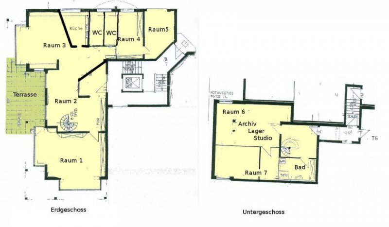
Zur Vermietung steht eine großzügige und vielseitig nutzbare Bürofläche, ideal geeignet für Kanzleien, Praxen, Agenturen oder etablierte Dienstleister. Die Gesamt-Nutzfläche beträgt stattliche ca. 231,31 m² und verteilt sich auf insgesamt 7 helle und gut geschnittene Räume. Diese Aufteilung ermöglicht flexible Gestaltungsmöglichkeiten – von Einzel- und Team-Büros bis hin zu einem repräsentativen Empfangs- und Konferenzbereich.
Der aktuelle Zustand des Mietangebots ist ordentlich, Wände sind gestrichen, der Teppichboden ist nicht neu, aber in einem akzeptablen Zustand. Für das Personal stehen eine moderne Sanitärausstattung zur Verfügung, bestehend aus zwei separaten WC-Einheiten, einem weiteren WC/Bad und einer zusätzlichen Dusche. Ein besonderes Highlight ist die vorhandene Außenfläche in Form eines Balkons oder einer Terrasse, die in den Pausen oder für informelle Gespräche genutzt werden kann. Hinweis zum Energieausweis: Energieausweistyp: Energieverbrauchsausweis, Energiebedarf: 120.00 kWh(m²a), Effizienzklasse: D, Energieträger: Gas, Baujahr lt. Ausweis: 1995. Mindestmietzeit: 3.0 Jahre . Übergabe/Verfügbarkeit ab: nach Vereinbarung. Informativ: Gesamtmiete inkl. Nebenkosten 4596,00 €. Provisionshinweis: mieterseits provisionsfrei . Dieses Angebot wird bei uns betreut von Herr Wolfgang Kühne, Tel. 0172/3104818.
Sonstige Angaben
Alle INFORMATIONEN ZU DIESEM ANGEBOT, mehr Fotos sowie Pläne/Grundriss bekommen Sie über das Expose auf unserer Internetseite. Die vollständige ANSCHRIFT können Sie ebenfalls über das Kontaktfeld im Expose auf unserer Internetseite anfordern. Hier können Sie auch eine Video-Besichtigung machen. Verwenden Sie dazu diesen Link: https://KuehneGmbH.de/330008682 .
Auf unserer Webseite können Sie sich auch über weitere Angebote informieren und Ihre Suchwünsche vormerken, bzw. einen Suchauftrag erstellen.
Wenn Sie Fragen haben, rufen Sie uns einfach an. Wir beraten Sie gerne zu Ihrer Immobiliensuche und versuchen, Ihnen zu helfen.
Übrigens, wenn Sie eine vergleichbare Immobilie selbst zu vermieten oder zu verkaufen haben, sprechen Sie mit uns. Als erfahrene Makler beraten wir Sie gerne und erläutern Ihnen unverbindlich, welchen Mehrwert wir Ihnen bieten können.
Gewerbe Immobilien Berlin
Weitere Inserate zum mieten und kaufen finden sich unter Berlin. Berlin ist die geografische Zuordnung dieses Objektes zum mieten und kaufen.
Weitere Immobilien zum mieten und kaufen kommen von Dipl.Ing. Kühne GmbH Ansprechpartner Wolfgang Kühne, Brandensteinweg 6 in 13595 Berlin.
Synonyme zur Suche Berlin Gewerbe Immobilien:
Berlin Immobilien für Unternehmen, Gewerbeimmobilien mieten Berlin, Industrie Immobilien Berlin







