Prov.-frei: Hochwertig und repräsentative Büros
Exposé: Prov.-frei: Hochwertig und repräsentative Büros
PLZ /Ort:
Kaltmiete
Gesamtfläche
Gesamtfläche
Flächen
Nutzfläche:
239,76 m²
Gesamtfläche:
239,76 m²
Preise
Nebenkosten:
400,40 €
Heizkosten:
321,28 €
Kaution:
15464.52
Sonstiges
Ihre Objektnr.:
330008674
Objekttyp:
Bueroflaeche
Heizungsart:
Zentralheizung
Baujahr:
1900
Energiepass
Ausstattung
Objektbeschreibung
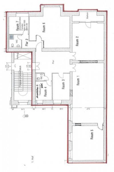
Die helle, lichtdurchflutete Bürofläche, bestehend aus 7 Räumen, 1 WC, 1 Duschbad,
großzügigem Balkon und großem Eingangsbereich befindet sich im VDH im 1. OG. In zwei
der Räume befinden sich Anschlüsse für Teeküche. Die Räume sind teilweise mit
Blatt-vergoldeten, historischen Stuckdecken sowie mit hochwertigen Parkettböden, teilweise
mit Original Tafelparkett ausgestattet. Die originalen Beschläge an Fenstern und Türen runden
das Gesamtbild der historischen und stilvollen Räumlichkeiten ab.
Die mit Ornamenten und Figuren versehene Sandsteinfassade wurde in
den Jahren 1995 und 1996 nach den Richtlinien des Denkmalschutzes aufwendig restauriert
und das Dach optisch mit originalen, grün lasierten Dachziegeln gedeckt. Diese Immobilie steht unter Denkmalschutz. Hinweis zum Energieausweis: Ein Energieausweis ist bei Denkmal-Immobilien nicht erforderlich. Mindestmietzeit: 3.0 Jahre . Übergabe/Verfügbarkeit ab: nach Vereinbarung.
Informativ: Nettomiete: 5154.84 €, Betriebskosten: 400.40 €, Heizkosten: 321.28 €. Gesamtmiete inkl. Nebenkosten und ges. MwSt: 6993,06 €. Provisionshinweis: mieterseits provisionsfrei . Dieses Angebot wird bei uns betreut von Herr Uwe Strietzel, Tel. 0179/4504353.
Sonstige Angaben
Alle INFORMATIONEN ZU DIESEM ANGEBOT, mehr Fotos sowie Pläne/Grundriss bekommen Sie über das Expose auf unserer Internetseite. Die vollständige ANSCHRIFT können Sie ebenfalls über das Kontaktfeld im Expose auf unserer Internetseite anfordern. Hier können Sie auch eine Video-Besichtigung machen. Verwenden Sie dazu diesen Link: https://KuehneGmbH.de/330008674 .
Auf unserer Webseite können Sie sich auch über weitere Angebote informieren und Ihre Suchwünsche vormerken, bzw. einen Suchauftrag erstellen.
Wenn Sie Fragen haben, rufen Sie uns einfach an. Wir beraten Sie gerne zu Ihrer Immobiliensuche und versuchen, Ihnen zu helfen.
Übrigens, wenn Sie eine vergleichbare Immobilie selbst zu vermieten oder zu verkaufen haben, sprechen Sie mit uns. Als erfahrene Makler beraten wir Sie gerne und erläutern Ihnen unverbindlich, welchen Mehrwert wir Ihnen bieten können.
Gewerbe Immobilien Berlin
Weitere Inserate zum mieten und kaufen finden sich unter Berlin. Berlin ist die geografische Zuordnung dieses Objektes zum mieten und kaufen.
Weitere Immobilien zum mieten und kaufen kommen von Dipl.Ing. Kühne GmbH Ansprechpartner Wolfgang Kühne, Brandensteinweg 6 in 13595 Berlin.
Synonyme zur Suche Berlin Gewerbe Immobilien:
Berlin Immobilien für Unternehmen, Gewerbeimmobilien mieten Berlin, Industrie Immobilien Berlin



