Prov.-frei: Erstbezug nach Modernisierung
Exposé: Prov.-frei: Erstbezug nach Modernisierung
PLZ /Ort:
Kaltmiete
Gesamtfläche
Gesamtfläche
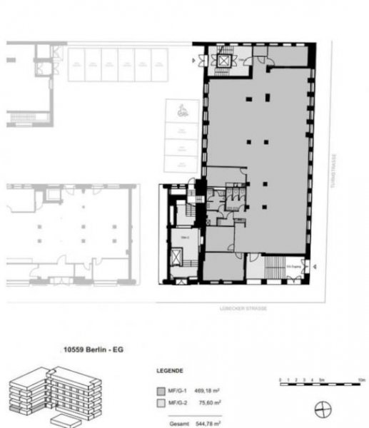
Flächen
Nutzfläche:
544,78 m²
Gesamtfläche:
544,78 m²
Preise
Nebenkosten:
1.634,34 €
Kaution:
33503.97
Sonstiges
Ihre Objektnr.:
330008511
Objekttyp:
Bueroflaeche
Heizungsart:
Zentralheizung
Fahrstuhl:
Personen
Stellplatz-Art:
Freiplatz
Zimmer:
1
Seperate WC:
2
Baujahr:
1950
Energiepass
Ausstattung
DV-Verkabelung
Objektbeschreibung
Moderne Büros hinter historischen Fassaden. Die Office-Bereiche wurden hochwertig im Jahre 2025 hochwertig ausgebaut. Mit seiner klaren und gradlinigen, einzigartigen Architektur aus dem Jahre 1913. Die vakanten Flächen bieten in der ersten Etage einzigartige, modernste Büroräume. Bei der Bau befindlichen Projektentwicklung werden moderne Bürolandschaften geschaffen, die jeglichen Anforderungen gerecht werden. Die großzügige Flächenaufteilung bietet Mietern eine hohe Flexibilität im Alltag und unterstützt damit neue Formen des interdisziplinären Arbeitens. Fokus auf Teamwork, schnelle und vor allem direkte Kommunikation finden hier ihren Platz. Highlights bieten die exklusiven verschiedenen Terrassen und Balkone. Diese Immobilie steht unter Denkmalschutz. Hinweis zum Energieausweis: Ein Energieausweis ist bei Denkmal-Immobilien nicht erforderlich. Mindestmietzeit: 2.5 Jahre . Übergabe/Verfügbarkeit ab: nach Vereinbarung.
Informativ: Nettomiete: 11167.99 €, Betriebskosten: 1634.34 €, Heizkosten: 0.00 €. Gesamtmiete inkl. Nebenkosten und ges. MwSt: 15234,77 €. Provisionshinweis: mieterseits provisionsfrei . Dieses Angebot wird bei uns betreut von Herr Uwe Strietzel, Tel. 0179/4504353.
Ausstattung
Besondere Ausstattungsmerkmale: Aufzug/Fahrstuhl, DV-Verkabelung vorhanden
Sonstige Angaben
Alle INFORMATIONEN ZU DIESEM ANGEBOT, mehr Fotos sowie Pläne/Grundriss bekommen Sie über das Expose auf unserer Internetseite. Die vollständige ANSCHRIFT können Sie ebenfalls über das Kontaktfeld im Expose auf unserer Internetseite anfordern. Verwenden Sie dazu diesen Link: https://KuehneGmbH.de/330008511 .
Auf unserer Webseite können Sie sich auch über weitere Angebote informieren und Ihre Suchwünsche vormerken, bzw. einen Suchauftrag erstellen.
Wenn Sie Fragen haben, rufen Sie uns einfach an. Wir beraten Sie gerne zu Ihrer Immobiliensuche und versuchen, Ihnen zu helfen.
Übrigens, wenn Sie eine vergleichbare Immobilie selbst zu vermieten oder zu verkaufen haben, sprechen Sie mit uns. Als erfahrene Makler beraten wir Sie gerne und erläutern Ihnen unverbindlich, welchen Mehrwert wir Ihnen bieten können.
Gewerbe Immobilien Berlin
Weitere Inserate zum mieten und kaufen finden sich unter Berlin. Berlin ist die geografische Zuordnung dieses Objektes zum mieten und kaufen.
Weitere Immobilien zum mieten und kaufen kommen von Dipl.Ing. Kühne GmbH Ansprechpartner Wolfgang Kühne, Brandensteinweg 6 in 13595 Berlin.
Synonyme zur Suche Berlin Gewerbe Immobilien:
Berlin Immobilien für Unternehmen, Gewerbeimmobilien mieten Berlin, Industrie Immobilien Berlin







