Opatija, Exklusiver Neubau
Exposé: Opatija, Exklusiver Neubau
PLZ /Ort:
Kaufpreis
Wohnfläche
Zimmer
Flächen
Wohnfläche:
97,00 m²
Preise
Kaufpreis:
210.000,00 €
Sonstiges
Ihre Objektnr.:
ID 882
Zimmer:
2
Energiepass
Ausstattung
Objektbeschreibung
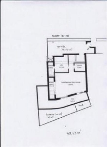
Ausgezeichnete luxuriöse Wohnung in ruhiger Lage in Opatija. Modernes hochwertiges Gebäude, umgeben von unberührten Wäldern, befindet sich nur wenige Gehminuten vom Zentrum von Opatija, dem zentralen Strand und des Stadtzentrums. Apartment mit einem Schlafzimmer und einer Bruttofläche von 97,43 m2 ist es im Erdgeschoss gelegen. Es hat eine große Terrasse von 24 m2 mit einem herrlichen Blick auf die Umgebung und das Gebaude. Parkplatz und Garage sowie Abstellraum. Möglichkeiten für den Kauf eines Weinkellers Features: - Ein System von "Intelligentem Haus" fur Heizung, Kühlung, Beleuchtung, Rollläden, alle mit der Moglichkeit diese per telefon zu steuern - Magnetkartenleser zum Gebäude und um die Wohnung zu betreten - Sensoren für den Fall von Überschwemmungen - Brandmeldeanlagen - Einbruchmeldeanlagen, Video-Gegensprechanlage - Ein System fur Energieeinsparungen
Excellent luxury apartment in a quiet location in Opatija. Modern high-quality building, surrounded by pristine forests, situated just a short walk from the center of Opatija, the central beach and town center. One bedroom apartment gross area 97.43 m2 is located on the ground floor. It has a large terrace of 24 m2 with a magnificent view of the surroundings and the property. Secured outdoor parking and indoor garage and storage room. Possibility of buying a wine cellar. Features: - A control system of "Intelligent House" for heating, cooling, lighting, shutters, all of this controled by telephone - Magnetic card reader to enter the building and the apartment - Sensors for the case of floods - Fire alarm systems - Burglar alarm systems, video intercom - A system for energy savings
Lage
Kvarner
Das Peisage der Kuste liegt hier in unmittelbarer Nahe des dicht bewaldeten und gebirgsreichen Gorski kotar, mediterranes Klima und Lebensart stehen im Gegensatz zum rauen Gebirgsklima, und die Welt des mondanen Fremdenverkehrszentrums mit 150-jahriger Tradition ist vollig anders als der einfache Rhythmus des Insellebens. In der Kvarner-Bucht kommen all jene auf ihre Kosten, die den Glanz mondaner Urlaubsorte lieben, wie z.B. den der herrlichen Stadt Opatija, deren Tourismustradition, die prachtigen Parkanlagen und Villen sowie die 12 km lange Promenade entlang des Meeres das ganze Jahr uber Gaste anzieht. Stellen Sie sich den idealen Urlaub vor: Sie fahren hinaus zu den sonnigen Inseln des Kvarners, kehren zum Festland zuruck und finden Ruhe auf den Gebirgsgipfeln, wo sich Ihre Lunge mit der reinen Luft duftender Walder fullt und Ihnen Steinadler, Wolfe und Baren Gesellschaft leisten. Wenn Sie mochten, konnen Sie die sonnige Riviera nach nur zehn Kilometern Fahrt mit der asketischen Ruhe und Frische des Gebirges tauschen. Erkunden Sie den Kvarner und den Gorski Kotar, zwei so unterschiedliche Regionen in so geringer Entfernung.
Opatija
Opatija ist eine mondane touristische Destination an der Adria. In der Vergangenheit war Opatija wegen des milden Klimas ein Sommer- und Winterurlaubsort der osterreichisch-ungarischen Adeligen. Heute ist sie die Stadt der Luxushotels und der einstigen Villen und Privatresidenzen, die in wunderschone Hotels mit Wellnesscentren, Kongressalen und Schwimmbadern verwandelt wurden. Die Villa Angiolina, eines der altesten und schonsten Bauwerke, hat viele angesehene Personlichkeiten empfangen. Seit dieser Zeit bis heute ist Opatija die Lieblingsdestination vieler Touristen. Elegante Geschafte, Loungebars und Hotelterrassen erinnern an mondane Weltdestinationen. Ein Spaziergang durch die gepflegten Parks und auf der Kustenpromenade (Lungomare 12 km), wie auch das Baden am Stadtstrand oder in kleineren Buchten, bieten eine seltene Verbindung vom Genuss des Naturzaubers und des hohen Lebensstils, der vom Geist der Vergangenheit durchzogen ist.
Lovran
Im Mittelalter bekannt als die Stadt der Seefahrer, Fischer und Handler, verwandelte sich Lovran Ende des 19. Jahrhunderts in eine beliebte touristische Destination. Den Namen bekam die Stadt nach dem Lorbeer (kroat. lovor, lat. laurus nobilitis), der im Ort und der Umgebung wachst. Im Hinterland sind Obstgarten mit Kirschen und Maronen, einer Kastaniensorte. Traditionelle Events, wie das Fest der Maronen, Kirschen oder des Spargels, feiern die leckeren Fruchte, aus denen viele verschiedene traditionelle Gerichte zubereitet werden. Dank den mediterranen Pflanzen und der salzhaltigen Luft war Lovran stets als klimatischer Kurort bekannt. Die grossen Villen, einstige Residenzen und Sommerhauser der osterreich-ungarischen Aristokratie, sind heute erstklassige Hotels. Von Lovran nach Volosko nahe Opatija fuhrt eine 12 Kilometer lange Kustenpromenade (Lungomare), die den Gasten unvergessliche Anblicke der Meereslandschaft bietet. Im Hinterland, auf den Abhangen des Naturparks Ucka, sind Wander- und Radwege angelegt, wie auch ein kleiner Flugplatz und Taucherzentren am Meer.
Icici
Icici ist ein bekannter touristischer Ort an der Riviera von Opatija am Fusse der steilen Abhange von Ucka. Heute ist der Ort dank der gut ausgestatteten Marina, den Stranden, bekannten Restaurants und der uppigen mediterranen Vegetation fast vollig mit Opatija verbunden. Neben der verschiedensten Unterkunften, Apartments, Villen und Campingplatzen, wie auch Sport- und Freizeitmoglichkeiten (Tennisplatze, Wassersportarten - Boote, Segeln), entwickelt sich im Ort besonders der nautische Tourismus. Und der Ort kann sich als erster mit einem langen Kiesstrand ruhmen...
Ausstattung
Weitere Bilder und Informationen finden Sie hier:
http://www.immo-hr.net/listing/opatija%2C-exklusiver-neubau-882.html
Sonstige Angaben
• Contact us by mail : info@immo-hr.net
Wir sind ein Kaufer Agent, Info's was wir genau tun, finden Sie hier : www.immo.comli.com
Wohnungen Rathsweiler Mühle
Dieses vorliegende Exposé gehört zur Listeseite Rathsweiler Mühle. Die Daten zu diesem Anbieter lauten: S.T.R.U.C.T.U.R.A. d.o.o. Ansprechpartner Michael Schmitt, 43. Istarska divizija 39 in 51211 Matulji.
Am Anfang suchen User zuerst auf der Seite Rheinland-Pfalz.
Synonyme zur Suche Rathsweiler Mühle Wohnungen:
Rathsweiler Mühle günstige Wohnung, Wohnungsanzeigen Rathsweiler Mühle










