Onsdorf Nähe Nittel-Grevenmacher/Lux. - Neubauprojekt -4 Zi.- Maisonette Wohnung, 148 qm Wohnfläche
Exposé: Onsdorf Nähe Nittel-Grevenmacher/Lux. - Neubauprojekt -4 Zi.- Maisonette Wohnung, 148 qm Wohnfläche
PLZ /Ort:
Kaufpreis
Wohnfläche
Zimmer
Flächen
Wohnfläche:
148,00 m²
Preise
Kaufpreis:
486.780,00 €
Vermittl.-Provision:
** Provisionsfrei **
Sonstiges
Ihre Objektnr.:
HS000361
Heizungsart:
Fussboden
Fahrstuhl:
Personen
Stellplatz-Art:
Freiplatz
Zustand:
Erstbezug
Bad:
Fenster
Stellplätze (Anz.):
2
Zimmer:
4
Schlafzimmer:
3
Badezimmer:
2
Seperate WC:
1
Baujahr:
2025
Ferienobjekt:
1
Energiepass
Art:
Verbrauch
Gültig bis:
10-2033
E-Verbrauchskennw.:
21
EP inkl. Warmwasser:
ja
Ausstattung
Kabel/Sat/TV
barrierefrei
Rolladen
Objektbeschreibung
ENERGIEAUSWEIS
- Energieeffizienzklasse: A+
- erstellt am: 26.10.2023
- gültig bis: 26.10.2033
- Art des Energieausweises: nach Verbrauch
- Verbrauchskennwert insgesamt: ca. 21 kWh/(m²a)
- Verbrauch inkl. Warmwasser: ja
- Heizungsart: Fußbodenheizung
- Befeuerung: Luft-Wasser-Wärmepumpe
- Baujahr: 2025
---------------
Sie suchen eine moderne Eigentumswohnung in einer der schönsten Regionen von Saar und Mosel ?
Etwas Abseits der Touristenrouten aber dafür unweit des bekannten Weinorts Nittel bzw. der luxemburgischen Grenze mit dem Grenzübergang Grevenmacher ?
Dann könnte hier das Richtige für Ihre Wünsche entstehen.
Projektiert ist ein Mehrfamilienhaus am Ortsrand der kleinen, ca. 150 Einwohner zählenden Gemeinde Onsdorf im Saargau.
Zwischen Feldern und Wiesen wird hier ein moderner Neubau in Massivbauweise entstehen.
Neueste Standards gewährleisten optimale Raumausnutzung, technische Perfektion und solide Bausubstanz.
Es entstehen 3 Wohnungen unterschiedlicher Größe.
Eine Wohnung im Erdgeschoss, eine Wohnung im 1. Obergeschoss, sowie eine Maisonette Wohnung im 2. Obergeschoss bzw. Dachgeschoss
Der Baubeginn für das Gebäude ist für die erste Jahreshälfte 2025 geplant, der Bezug der Wohnungen für 2025/26.
Neben der Haustreppe zu den einzelnen Etagen, ist im Treppenhaus auch ein Aufzug vorgesehen, damit ein barrierefreier Zugang möglich ist.
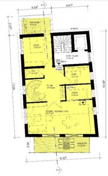
Wir stellen Ihnen hier die Wohnung Nr. 3 im 2. Obergeschoss und dem Dachgeschoss vor:
Zugang über Haustreppe oder Aufzug, ca. 148 qm Wohnfläche
Diele/Flur
1 Schlafzimmer
1 Badzimmer
1Gäste WC
1 Arbeitszimmer
1 HWR
1 großer Wohn-Ess - Kochbereich
2 Balkone
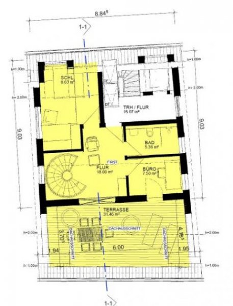
Zugang zum Dachgeschoss über Wendeltreppe
Diele/ Flur
1 Schlafzimmer
1 Bad
1 Arbeitszimmer
große Dachterrasse
dazu gehören zwei Stellplätze auf der Vorderseite des Gebäudes
Lage
Onsdorf, ein kleiner ruhiger Ort auf halber Strecke zwischen dem bekannten Weinort Nittel a.d. Mosel und der in der Region ebenfalls bekannten Gemeinde Mannebach, das ist der Standort des geplanten Mehrfamilienhauses.
Die kleine, landwirtschaftlich geprägte Gemeinde gehört zur VG Konz im Landkreis Trier-Saarburg und liegt idyllisch in einer Talsenke des sog. "Saargau". Landwirtschaftlichen Nutzflächen, Felder und Wiesen umgeben den Ort und es sind lediglich 3 Kilometer bis ins "Weinzentrum" der Gegend - Nittel an der südlichen Mosel.
Da Onsdorf ein reiner Wohnort ist, bietet Nittel die Anlaufstationen für die Versorgung mit den Gütern des täglichen Bedarfs.
Netto Supermarkt, Drogeriemarkt, Bäckereien, Friseur, Apotheke, Banken, div. Handwerksbetriebe, um nur die wichtigsten Branchen zu nennen.
Eine Grundschule und eine Kita sind genauso vor Ort, wie Zahnarzt und Allgemeinmediziner.
Eine gut aufgestellte Gastronomie und hervorragende Weinbaubetriebe mit Ihren Gutsschenken, runden das vielfältige Angebot ab.
Nur 5 Kilometer weiter, auf der anderen Moselseite, liegt das kleine luxemburgische Städtchen Grevenmacher mit all seinen Einrichtungen und für das "Shopping"
bietet sich das ca. 20 Kilometer entfernt Trier an.
Mit dem Auto über die L135 ins nahe Nittel und von dort weiter nach Grevenmacher mit dem Grenzübergang Moselbrücke in knapp 10 Minuten, weiter nach Luxemburg Stadt in gut 30 Minuten, zeigen wie gut Onsdorf angebunden ist.
Die Bahn bietet Verbindungen von Nittel nach Trier und Koblenz, bis Konz und weiter ins Saarland oder über Perl nach Frankreich an.
Kurzum, Onsdorf liegt zwar etwas abseits ist aber dennoch verkehrstechnisch sehr gut an den Rest der Welt angebunden.
Ausstattung
Der Bau und die Ausstattung der Wohnungen erfolgt nach den neuesten Standards:
Wärmegedämmtes Mauerwerk mit mineralischem Außenputz, Stahlbetondecken, ein mit Mineralwolle gedämmtes Satteldach.
Kunststofffenster mit Dreifachverglasung und Kunststoffrollladen.
Die Böden in den Bädern werden gefliest, die übrigen Böden können nach Wunsch ausgestattet werden.
Beheizt wird das Gebäude mit einer Luftwärmepumpe, die Räumlichkeiten über Fußbodenheizung, so dass in Verbindung mit der Außendämmung eine Energieeffizienz von A+ erreicht wird.
Sat-TV und schnelles Internet sind vorgesehen.
Die Erdgeschoss Wohnung verfügt über eine Loggia zur Straßenseite hin gelegen, die Wohnungen im Obergeschoss über 2 Balkone, die Maisonettewohnung über einen Balkon, und eine Dachterrasse.
Der Außenbereich der Wohnanlage wird mit Öko Rasengitter bzw. mit Pflaster befestigt, die weitere Außenanlage ansprechend gestaltet.
Auf der Rückseite des Gebäudes ist ebenerdig ein Technikraum, sowie ein sep. Raum für Müll, außen sind weitere Abstellflächen und Fahrradständer vorgesehen.
Im Inneren des Hauses ist im Treppenhaus neben der Fußtreppe ein Aufzug nach DIN 18040 geplant, so dass man barrierefrei zu den einzelnen Wohnungen gelangt.
Sonstige Angaben
Von Schlapp Immobilien – Denn wir vermitteln Ihnen Zufriedenheit
Nutzen Sie die Kontaktmöglichkeit über dieses Exposé und vereinbaren unverbindlich einen Besichtigungstermin. Ich werde mich umgehend mit Ihnen zwecks Terminabstimmung in Verbindung setzen.
Ihr Ansprechpartner für dieses Objekt:
Gudrun Steffes
Tel.: +49 (0)6501 – 60 69 607
Mobil:+49 (0)177 – 21 92 166
www.schlapp-immobilien.de
www.verkehrswert-ermitteln.de
www.facebook.com/von.schlapp.immobilien
www.twitter.com/von_schlapp
Hinweis zum Exposé Inhalt:
Unser Exposé basiert auf Angaben unserer Auftraggeber. Für die Richtigkeit, Vollständigkeit sowie der Aktualität der im Exposé befindlichen Angaben können wir daher nicht garantieren. Die im Exposé angegebenen Flächenangaben beruhen ebenfalls auf Angaben unserer Auftraggeber und sind unverbindlich.
Beim Kauf älterer Bestandsimmobilien erweist sich die Hinzuziehung eines Fachmannes / eines Sachverständigen vor Vertragsabschluss als ratsam, da offene und versteckte Mängel, die auch dem Verkäufer oftmals nicht bekannt sind, zu erheblichen finanziellen Mehraufwand nach Kauf führen können.
Wir empfehlen Ihnen daher als Käufer vor Erwerb einer älteren Immobilie einen unabhängigen Gutachter in Anspruch zu nehmen!
Kostenfrei Verkehrswert Ihrer Immobilie ermitteln unter http://www.verkehrswert-ermitteln.de
------------------------------------------------------------------------------------------
ACHTUNG TIPPGEBER!
Sie kennen jemanden in der Familie, im Freundeskreis, im Bekanntenkreis, im Büro oder im Verein, der gerade seine Immobilie verkaufen möchte oder zumindest mit dem Gedanken spielt?
Dieser Tipp kann sich für Sie auszahlen!
Sprechen Sie uns an!
Wir zahlen Ihnen eine überdurchschnittliche Prämie.
Wohnungen Onsdorf
Die Verlinkung dieses Exposé's ist unter Onsdorf inseriert. Unter Rheinland-Pfalz sind weitere relevante Immobilien vorhanden.
Die Daten zu diesem Anbieter lauten: von Schlapp Immobilien - Nadia Schlapp Ansprechpartner Ralf Schlapp, Schimmelhof 1 in 54338 Schweich.
Synonyme zur Suche Onsdorf Wohnungen:
Onsdorf günstige Wohnung, Wohnungsanzeigen Onsdorf









