Oberneuland! Moderne gepflegte 2-Zimmer-Wohnung mit Terrasse
Exposé: Oberneuland! Moderne gepflegte 2-Zimmer-Wohnung mit Terrasse
PLZ /Ort:
Kaufpreis
Wohnfläche
Zimmer
Flächen
Wohnfläche:
67,00 m²
Nutzfläche:
5,00 m²
Preise
Kaufpreis:
150.000,00 €
Hausgeld:
204,92 €
Vermittl.-Provision:
Käufercourtage beträgt 5,95 % inkl. ges. MwSt.
Sonstiges
Ihre Objektnr.:
DT162
Objekttyp:
Erdgeschoss
Heizungsart:
Zentralheizung
Befeuerung:
Gas
Stellplatz-Art:
Freiplatz
Boden:
Fliesen
Bad:
Wanne
Küche:
EBK
Stellplätze (Anz.):
1
Zimmer:
2
Schlafzimmer:
1
Badezimmer:
1
Baujahr:
2000
vermietet:
1
denkmalgeschuetzt:
1
Ferienobjekt:
1
Energiepass
Art:
Verbrauch
Gültig bis:
06.03.2018
E-Verbrauchskennw.:
106.0
EP inkl. Warmwasser:
ja
Ausstattung
Kamin
Gartennutzung
Kabel/Sat/TV
Wasch/Trockenraum
Abstellraum
Objektbeschreibung
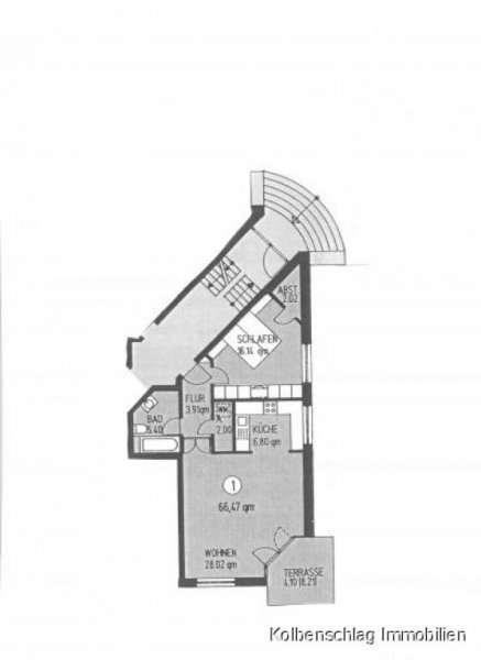
Die im Erdgeschoss gelegene Wohnung mit der schönen, großzügigen Terrasse verfügt u.a. über ein geschmackvoll eingerichtetes Badezimmer mit Badewanne, WC und Waschbecken. Vom Flur aus gelangen Sie in das Wohnzimmer, Schlafzimmer und Badezimmer. Eine Abstellkammer befindet sich auf dem Dachboden.
Ein PKW-Stellplatz ist ebenfalls vorhanden.
Derzeit ist die Wohnung mit 520 Euro zzgl. Nebenkosten vermietet.
Lage
Oberneuland einer der begehrtesten Stadtteile Bremens liegt im Osten der Stadt.
Er zeichnet sich besonders durch seine guten Schulen und Kindergärten aus. Auch die Freizeitmöglichkeiten wissen die Anwohner hier sehr zu schätzen. So finden Sie in der Nähe der Franz Schütte Allee z.B. den Golfclub Oberneuland, den Tennisverband Nordwest eV, den Bremer Hockey Club, den Turnverein Oberneuland und den Achterdicksee. Mit den Zügen der DB ab Bahnhof „Oberneuland“ in nur ca. 8 Minuten zum Hauptbahnhof „Bremen“.
Ausstattung
Die Wohnung ist in den Zimmern mit Laminat verlegt. Die Küche ist mit einer Einbauküche ausgestattet. Das Vollbad mit Wanne ist hell gefliest.
Wohnungen Bremen
Weitere Inserate zum mieten und kaufen finden sich unter Bremen. Der Link zu Immobilien zum mieten und kaufen dieses Bundeslandes findet man unter Bremen.
Die Daten zu diesem Anbieter lauten: Ansprechpartner , in.
Synonyme zur Suche Bremen Wohnungen:
Bremen günstige Wohnung, Wohnungsanzeigen Bremen










