Neuwertige 3-Raum-Wohnung mit Balkon und Einbauküche in Karlsruhe
Exposé: Neuwertige 3-Raum-Wohnung mit Balkon und Einbauküche in Karlsruhe
PLZ /Ort:
Kaltmiete
Wohnfläche
Zimmer
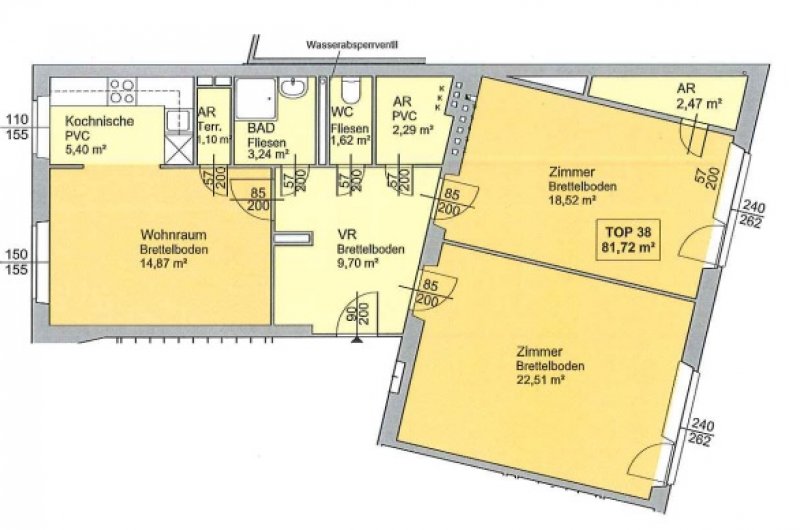
Flächen
Wohnfläche:
87,00 m²
Preise
Kaltmiete:
700,00 €
Warmmiete:
900,00 €
Nebenkosten:
200,00 €
Abrechn.-zeitraum:
Monat
Kaution:
1000
Sonstiges
Objekttyp:
Etage
Heizungsart:
Zentralheizung
Fahrstuhl:
Personen
Befeuerung:
Gas
Stellplatz-Art:
Parkhaus
Boden:
Parkett
Möblierung:
Voll
Sicherheitstechnik:
Alarmanlage
Zustand:
modernisiert
Stellplätze (Anz.):
1
Zimmer:
3
Schlafzimmer:
3
Badezimmer:
1
Energiepass
Ausstattung
klimatisiert
Kabel/Sat/TV
barrierefrei
Wasch/Trockenraum
Fahrradraum
Rolladen
Objektbeschreibung
Ab sofort kann diese ansprechende, neuwertige Wohnung bezogen werden. Die Wohnung besticht nicht nur durch drei schöne Zimmer, sondern auch mit einem Badezimmer sowie einem separaten Gäste-WC. Die letzte Modernisierung fand erst vor Kurzem, im Jahr 2019, statt. Ein aktueller Energieausweis liegt vor. Über einen Fahrstuhl gelangen Sie bequem in die entsprechende Etage. Zur Wohnung gehört auch ein Balkon. Ein Kellerraum steht Ihnen außerdem zur Verfügung. Eine bereits eingebaute Küche spart Ihnen beim Einzug Zeit und Mühe, sodass Sie gewissermaßen sofort mit dem Kochen beginnen können.
Wohnungen Karlsruhe
Weiterhin können Sie Inserate auf der Seite Karlsruhe finden. Die Daten zu diesem Anbieter lauten: Ansprechpartner , in.
Am Anfang suchen User zuerst auf der Seite Baden-Württemberg.
Synonyme zur Suche Karlsruhe Wohnungen:
Karlsruhe günstige Wohnung, Wohnungsanzeigen Karlsruhe

