Neubauplanung von 3 Architekten-Stadthäusern in Bergedorf
Exposé: Neubauplanung von 3 Architekten-Stadthäusern in Bergedorf
PLZ /Ort:
Kaufpreis
Wohnfläche
Grundstücksfläche
Flächen
Wohnfläche:
140,00 m²
Grundstücksfläche:
500,00 m²
Preise
Kaufpreis:
641.650,00 €
Sonstiges
Ihre Objektnr.:
HH-Bergedorf-EFH TK
Objekttyp:
Einfamilienhaus
Energiepass
Baujahr:
2019
Ausstattung
Objektbeschreibung
In einer wunderschönen Lage Bergedorfs entstehen 3 GfG Architektenhäuser.
Genießen und erleben Sie Ihren Haustraum in Hamburg Bergedorf.
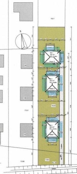
Jedes Grundstück hat eine Größe ab ca. 500 m² und befindet sich in einer ruhigen Wohngegend.
Auf den 3 Grundstücken entsteht jeweils ein individuelles Architektenhaus nach Ihren Vorstellungen und Grundrisswünschen. Eine Baugenehmigung für die Häuser liegt bereits vor. Die Außenmaße des Hauses betragen ca. 8,15 m x 10,50 m. Es ist eine eingeschossige Bauweise mit einer Drempelhöhe von 1,50 m zulässig.
Das Grundstück wird mit einer Baubindung an die GfG Hoch-Tief-Bau GmbH Co. KG angeboten.
Planen Sie mit uns Ihr Haus in der hochwertigen GfG Architektenhaus Ausstattung.
Die Hausplanung erfolgt, auf Wunsch, mit dem international erfolgreichen Architekturbüro Lohmann.
Die potentiellen Interessenten erhalten ein Planungsgespräch und die Ermittlung der gesamten Baukosten für das jeweilige Bauvorhaben.
Erzählen Sie uns Ihre Ideen und Wünsche, wir setzen Sie gerne für Sie um.
- Neubau in massiver Bauweise gemäß unserer Bauleistungsbeschreibung
- Wohn-/Nutzfläche ca. 140 m²
- Energetische Bauweise nach KfW 55 mit hoher Wärmedämmung (optional gegen Aufpreis kfW 40 +und 40+ möglich).
- zentrale, kontrollierte Be- und Entlüftung mit Wärmerückgewinnung
- Integrierte Fußbodenheizung
- Elektrische Rollläden
-Kunststofffenste 3fach Verglasung
- Kaminanschuss
- SmartHone Ausstattung von MyGekko
- Energiepass nach neuesten Standards
- Eigene Bauleitung
- individuelle Architektur und individuelle Grundrisse realisierbar
- WU Betonkeller ist optional erhältlich
- Optional: Gesundes Bauen & Wohnen
Raumgesundheit – wir bauen Ihr Zuhause raumgesund
Nicht enthalten sind: Küche, Bodenbeläge für die Wohn- und Schlafräume und die Malerarbeiten.
Außerdem sind die Baunebenkosten und die Ankaufkosten für das Grundstück nicht im Preis enthalten.
Kaufpreis des GfG Architektenhauses ab € 321.650,-
(zzgl. Grundstück )
Dem hier angegebenen Kaufpreis sind Kosten für Notar/Gericht hinzuzurechnen.
Lage
Arbeiten in Hamburg, wohnen in dem wunderschön gelegenen Bergedorfs.
Das Grundstück liegt in einer traumhaft, ruhigen Lage.
Eine optimale Verkehrsanbindung besteht in alle Richtungen.
Die Hamburger City sowie das Umland sind somit schnell und bequem erreichbar.
Verschiedene weiterführende Schulen sowie ein umfangreiches und interessantes Sport- und Freizeitangebot sind in Bergedorf zu finden.
Die ärztliche Versorgung ist durch eine große Auswahl niedergelassener Spezialärzte gesichert.
Werden Sie Teil des naturumgebenen Bergedorfs mit Ihrem neuen, individuellen Haustraum.
Ausstattung
Wir verstehen Architektur als etwas Einzigartiges. Als etwas Nachhaltiges, das gleichzeitig bezahlbar bleibt. Deshalb haben wir mit dem GfG Architektenhaus eine Möglichkeit geschaffen, Architektenhäuser ab einer Größe von 100 m² Wohnfläche zu entwerfen und zu bauen, um Bauherren mit dem Wunsch nach Individualität ihren ganz persönlichen Traum vom Haus zu erfüllen - zum Festpreis.
Wir bieten eine echte Architektenplanung mit einer anspruchsvollen Architektur und der Liebe zum Detail in einer hochwertigen massiven und bewährten Bauweise sowie modernster effizienter Technik.
Es ist unsere Leidenschaft, Lebensräume zu schaffen, ganz gleich, ob sich Ihr Traum vom Wohnen auf 100 m², 400 m² oder mehr Wohnfläche wiederfinden wird.
Unsere Partner sind ausgesuchte Unternehmen, die diese Vision teilen. Unsere Aufgabe ist es, individuelle Architektur zu schaffen; für Menschen, die ihr eigenes Traumhaus realisieren und sich dabei von der Masse absetzen wollen.
Brillante Architektur gepaart mit modernsten energetischen Konzepten. So entstehen heute einzigartige, nachhaltige Architektenhäuser.
Wir empfinden es als selbstverständlich, energetisch hochwertige Häuser zu entwerfen und zu bauen. Daher erhalten Sie von uns auf Wunsch gern eine umfassende haustechnische Beratung.
Gemeinsam mit dem „Verband Wohnsiegel“ haben wir das erste energieautarke Wohnhaus mit Elektromobilität gebaut, bis heute einzigartig in ganz Europa. Als Mitglied im Verband Wohnsiegel unterliegen wir einer strengen freiwilligen Selbstkontrolle.
„Gesundes Bauen & Wohnen“ - Als zertifizierter Partner des Sentinel-Haus Instituts sind wir Spezialisten in diesem Bereich. www.sentinel-haus.eu
Sonstige Angaben
GfG - Ihr Garant für sorgenfreies Bauen
Sehr geehrte Bauinteressentin,
sehr geehrter Bauinteressent,
wir freuen uns sehr, dass Sie sich für unser Grundstück in Bergstedt und unsere Architektenhäuser interessieren.
Wohnen war schon immer ein Ausdruck von kultivierter Lebensfreude und ist eines der bedeutendsten Grundbedürfnisse des Menschen für sich und seine Familie.
Das Wort "Traumhaus" kommt nicht von ungefähr. Dabei fällt es nicht schwer, den Weg in das eigene Haus zu gehen, vorausgesetzt Sie wählen einen kompetenten und zuverlässigen Partner, der Sie in allen Bauphasen unterstützt und Sie sicher in Ihr neues Traumhaus geleitet.
Wir würden uns sehr freuen, Sie auf diesem doch sehr bedeutungsvollen Weg begleiten zu dürfen.
Seit 2004 sind wir Mitglied im Verband "Wohnsiegel - Das europäische Markenhaus e.V." und werden jährlich auf Seriosität, Bonität und Qualität geprüft.
Sie können bei uns zu jeder Zeit Fertigstellungs- und Gewährleistungs- sowie Vertragserfüllungsbürgschaften abrufen.
„Gesundes Bauen & Wohnen“ - Wir wurden durch das Sentinel-Haus-Institut zertifiziert. http://www.sentinel-haus.eu/
Möchten Sie mehr über uns erfahren – dann besuchen Sie uns auf www.gfg24.de oder www.gfgdesignhaus.de und www.gesundeswohnen.de
Wir realisieren Hausträume und Traumhäuser.
In unserem energetisch sehr hochwertig gebauten Musterhaus, das 1. „autarke EnergiePlus Wohnsiegelhaus mit Elektromobilität, bis heute einzigartig in ganz Europa, informieren Fachberater Sie über die Qualität und Individualismus unserer Häuser.
Erzählen Sie uns von Ihrem Traum vom Haus!
Wir freuen uns schon jetzt, Sie kennenzulernen.
Herzlichst
Ihre GfG
Schön designt - gesund gebaut - energetisch besonders wertvoll
Ihr persönlicher Ansprechpartner:
GfG Hoch-Tief-Bau GmbH & Co.KG
Thomas Koop
Projektierung & Verkauf
Tel.: 040-5247814-50
0176 – 100 982 61
thomas.koop@gfg24.de
Häuser Hamburg
Dieses vorliegende Exposé gehört zur Listeseite Hamburg. Die Angeben des Anbieters lauten Ansprechpartner , in.
Weitere Objekte sind unter Hamburg auffindbar.
Synonyme zur Suche Hamburg Häuser:
Hamburg Häuser online, Haus mieten und kaufen Hamburg, günstige Häuser Hamburg







