Neubau Wohnungen und Duplex Wohnungen in Lara mit 1 - 3 Schlafzimmern mit Pool "ANSCHAUEN"
Exposé: Neubau Wohnungen und Duplex Wohnungen in Lara mit 1 - 3 Schlafzimmern mit Pool "ANSCHAUEN"
PLZ /Ort:
Kaufpreis
Wohnfläche
Zimmer
Flächen
Wohnfläche:
64,00 m²
Preise
Kaufpreis:
70.000,00 €
Sonstiges
Ihre Objektnr.:
191
Objekttyp:
Etage
Fahrstuhl:
Personen
Stellplatz-Art:
Freiplatz
Zustand:
Erstbezug
Küche:
EBK
Zimmer:
2
Schlafzimmer:
1
Badezimmer:
1
Baujahr:
2013
vermietet:
1
denkmalgeschuetzt:
1
Ferienobjekt:
1
Energiepass
Ausstattung
Gartennutzung
rollstuhlgerecht
barrierefrei
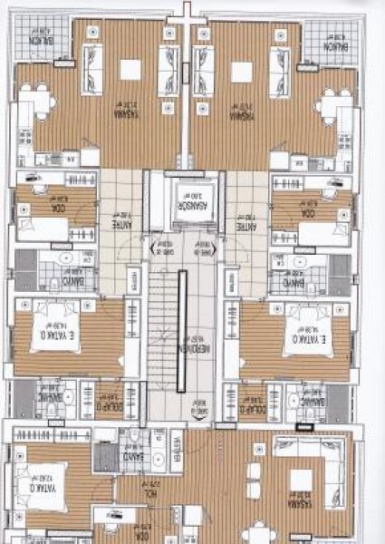
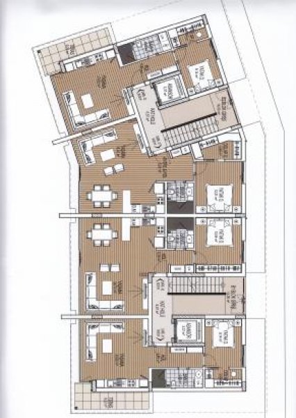
Objektbeschreibung
Es ist ein neues Immobilien-Projekt von renommierten Bauunternehmern mit Erfahrung in der Region Antalya. Apartments im Elite-Gebiet Lara mit sozialen Einrichtungen in fußläufiger Entfernung.
Die Lara Park Wohnanlage ist ein Flachgebäude mit Überwachungssystem, Garten, Swimmingpool und Parkplatz. Die originelle Struktur der Wohnungen lässt Sie luxuriösen Wohnkomfort genießen.
Diese Immobilie besteht aus 3 Blöcken mit mehreren Wohnungstypen zum Verkauf.
Typ 1:
64-70 m² 1 Zimmerwohnungen haben offene Küche, Bad und eine Terrasse.
Typ 2:
80-84 m² 1 Zimmerwohnungen haben offene Küche, Bad, Ankleideraum, Flur und eine Terrasse.
Typ 3:
90 m² 2 Zimmerwohnungen haben offene Küche, 2 Badezimmer und einen Balkon.
Typ 4:
100-107 m² 2 Zimmer-Wohnungen haben offene Küche, 2 Bäder, ein Ankleidezimmer, Flur und einen Balkon.
Typ 5:
101-103 m² 2 Zimmerwohnungen verfügen über separate Küche, 2 Bäder, ein Ankleidezimmer, Flur und einen Balkon.
Die Preise liegen je nach Wohnung zwischen 70.000 € und 160.000 €.
Qualität der Ausstattung: Luxus
Denkmalschutzobjekt: Nein
Lage
Entfernung zur Stadt: 3 km
Entfernung zum Strand: 1 km
Entfernung zum Flughafen: 10 km
Ausstattung
Allgemeine Merkmale der Park Apartments Lara:
- Schwimmbad
- Gut gestalteter Garten
- Außen- und Innenparkplätzen
- 24 Stunden Sicherheitsdienst
- Zimmer mit privatem Badezimmer
- Aufzug
- Ankleideraum
- Hausmeister
Sonstige Angaben
Sie können auf unserer Homepage "www.royalty-residence.com" weitere Information zu den Rubriken "Unser Service", "Über Kauf" und Rechtsberatung" finden.
Weitere Angebote können Sie jederzeit per E-Mail oder Telefon anfordern.
Wir beraten Sie gerne und organisieren auf Wunsch unverbindlich
Ihren gesamten Aufenthalt.
Ihr Royalty Residence Team –
Ihr Ansprechpartner für Lebensqualität in der Türkei
Als Ferienwohnung geeignet: Nein
Bezugsfrei ab: sofort
Wohnungen Boddin
Weitere Inserate zum mieten und kaufen finden sich unter Boddin. Mecklenburg-Vorpommern ist die geografische Zuordnung dieses Objektes zum mieten und kaufen.
Die Daten zu diesem Anbieter lauten: Royalty Residence Ansprechpartner Orkan Yagmur, Güllerpınarı Mah. Keykubat Bulvarı in 07400 Alanya.
Synonyme zur Suche Boddin Wohnungen:
Boddin günstige Wohnung, Wohnungsanzeigen Boddin










