**Neubau - Modernes Einfamilienhaus mit traumhaftem Ausblick - Nordstrand**
Exposé: **Neubau - Modernes Einfamilienhaus mit traumhaftem Ausblick - Nordstrand**
PLZ /Ort:
Kaufpreis
Wohnfläche
Zimmer
Grundstücksfläche
Flächen
Wohnfläche:
99,00 m²
Grundstücksfläche:
500,00 m²
Preise
Kaufpreis:
324.000,00 €
Vermittl.-Provision:
3,57
Sonstiges
Ihre Objektnr.:
6823#304i6a
Objekttyp:
Einfamilienhaus
Stellplatz-Art:
Carport
Küche:
EBK
Stellplätze (Anz.):
2.0
Zimmer:
4
Schlafzimmer:
1
Badezimmer:
1
Baujahr:
2025
Energiepass
Ausstattung
barrierefrei
Objektbeschreibung
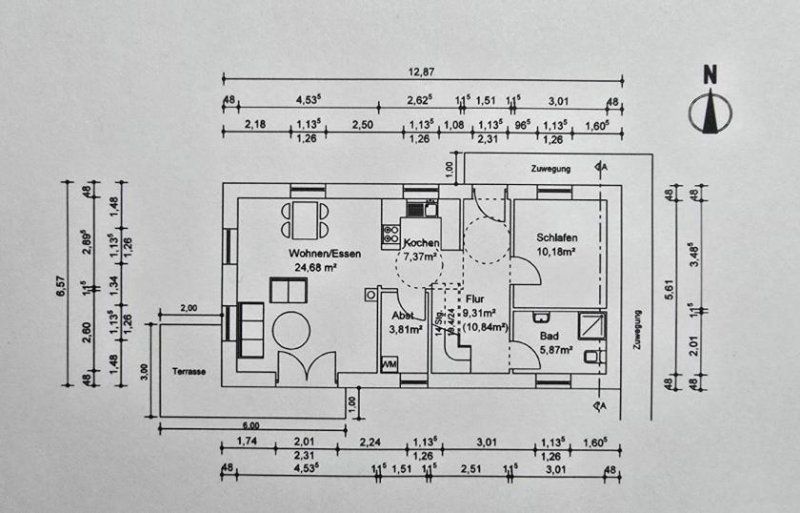
Hier entsteht ein modernes Einfamilienhaus, dass durch eine Wohnfläche von 99 m² besticht. Das großzügigen Grundstück mit 500 m² Fläche wird voll erschlossen, Pflasterarbeiten und ein geräumiges Carport, sind ebenfalls im Kaufpreis enthalten. Sie beziehen einen schlüsselfertigen Neubau mit 1 Schlafzimmer, einer großzügigen Wohnküche, einem Badezimmer. Mit insgesamt 2 Zimmern bietet das Haus ausreichend Platz. Zwei Parkplätze, einer davon ist im Carport, stehen direkt vor der Tür zur Verfügung. Die Beheizung erfolgt mittels einer effizienten Wärmepumpe.
Es besteht die Möglichkeit, den Grundriss nach ihren Vorstellungen individuell zu verändern. Baubeginn ist nach Verkauf. Grundstück ist nur mit Baubindung zu erwerben.
Das Haus wird als DG. ausbaufähig angeboten. Der Ausbau kostet ohne Gauben (nur gegen Aufpreis), dafür mit Dachflächenfenstern, 52.000,-. Die Grundrisse im Exposè sind nur als Vorschlag anzusehen. Gerne gestalten wir ihr Traumhaus nach ihren wünschen.
Die Räumlichkeiten des Hauses sind hell und großzügig gestaltet. Der offene Wohn- und Essbereich lädt zum Verweilen ein und bietet Zugang zur Terrasse, welche einen wunderbaren Blick zum Fähranleger und in Marsch ermöglicht. Eine Küche kann gegen Aufpreis mit eingebaut werden. Die zwei Zimmer sind geräumig und bieten genügend Stauraum. Das Badezimmer ist mit einer ebenerdigen Dusche und hochwertigen Armaturen ausgestattet.
Das Haus befindet sich in einer ruhigen Wohngegend und dennoch sind Einkaufsmöglichkeiten und Schulen in der Nähe. Die Terrasse und der Garten bieten genügend Platz für gemütliche Grillabende im Sommer. Insgesamt handelt es sich um eine moderne Immobilie, die durch ihre durchdachte Planung und hochwertige Ausstattung überzeugt.
Lage
Nordstrand, das grüne Herz des Wattenmeeres, liegt inmitten der einzigartigen Welt der Halligen, im Unesco Weltnaturerbe Nordfriesisches Wattenmeer.
Ihr neues Zuhause befindet sich im Ortsteil Süden, auf Nordstrand.
Zum kleinen Yachthafen, dem Nordseedeich und der geliebten Nordsee sind es ca. 5 Kilometer
Umgeben von einem immergrünen Nordseedeich ist Nordstrand mit dem Festland durch den 4 km langen, gut ausgebauten Autodamm mit Radweg verbunden und somit jederzeit immer erreichbar.
Nordstrand ist zu jeder Jahreszeit ein Naturerlebnis, Frühling und Sommer sowieso, aber auch im Herbst und Winter, wenn eine frische Brise über die Deiche weht, das Watt gefroren ist, der Schnee eine weiße Landschaft bringt und lodernde Flammen beim Biikebrennen an der Küste leuchten, dann ist es hier besonders gemütlich.
Der Tourismus ist einer der Hauptwirtschaftsfaktoren der "Insel an Land".
Als Ferienort mit Schwimmbad, Kurzentrum, Kurmittelhaus, gute Bademöglichkeiten in der Nordsee, Rad - und Wanderwege, Wattwandermöglichkeiten. Auch auf Grund der guten Tide-unabhängigen Fährverbindungen ist Nordstrand sehr beliebt.
Der Fährhafen gibt die zusätzliche Möglichkeit die Inseln und Halligen unserer wunderschönen nordfriesischen Landschaft auf dem Seeweg zu erreichen.
Eine gute Infrastruktur auf Nordstrand: Grund-, Haupt- und weiterführendes Schulzentrum mit Sportanlagen, Sporthalle. Ärzte, Zahnarzt, Heilpraktiker, Kita, Supermärkte, Hotels, Restaurants, Cafe´s, Museum, Friseure, die NordstranderTöpferei, sonstige Handwerkbetriebe und Vieles mehr, sorgen für ein angenehmes Leben.
Ausstattung
Baubeschreibung Neubau Wohnhaus Süden Nordstrand
Aufbau:
Gründung: Stahlbetonstreifenfundament und eine Stahlbetonsohle gem. Statik.
Aufbau Sohle: Stahlbetonsohle gem. Statik, Abdichtung (Alujet-Floor), 12cm Dämmung WLG 035,
6cm Zement-Estrich, Bodenbelag (Designbelag Vinyl-Planke)
Aufbau Außenmauerwerk: Verblendschale mit einem roten oder rot-bunten Stein, Luftschicht, Wärmedämmung gem. Wärmeschutznachweis, 17,5cm Porenbeton, Gipsputz.
Innenwände: Kalksandstein mit beidseitigem Putz.
Dachaufbau: Betondachpfanne anthrazit, Lattung, Konterlattung, Sparren gem. Statik
24cm Wärmedämmung WLG 035, Sparschalung, Gipskartonplatten.
Trockenbauwände im Dachgeschoß: beidseitig beplankt mit OSB12mm und Gipskarton
Ausstattung:
Fenster: Es werden Kunststofffenster außen anthrazit, innen weiß, mit 3-fach-Verglasung verbaut, alles nach Wärmeschutznachweis
Bodenbeläge: Designbelag Vinyl-Planke Watt´n Boden, Fußleisten weiß 6cm Holz
Wandoberflächen: Tapete Rauhfaser, weiß gestrichen, Bad und WC in Teilbereichen gefliest, Maße
30x60cm Materialrichtpreis 25,-€ per
Innentüren: Jeld Wen Stiba Plus 4F, Drücker Materialrichtpreis 20,-€ per Stück
Fensterbänke: Carrara Micro weiß oder weiß-gesprenkelt
Treppe: innerhalb der Wohnungen kommen Holztreppen Buche oder Buche Keilgezinkt, Wangen und Stäbe weiß, Stufen farblich abgesetzt zur Ausführung
Heizung: Luftwärmepumpe, im ganzen Haus Fußbodenheizung, mit Einzelraumregelung.
Sanitär: Duschwanne Superplan mit Echtglaskabine, WC Diana,
Waschtischanlage 60cm weiß Diana
Elektrik: Schalter und Steckdosenprogramm Gira Standard, ca.30 Steckdosen als Einzel oder Doppelsteckdose, 3 TV-Anschlussdosen, je 1 Dose für Waschmaschine, Trockner, Kühlschrank, 1 Herdanschlussdose, TV über Satellit, zusätzlich wird zu jedem TV-Anschluss eine Netzwerkdose installiert.
Sonstige Angaben
Alle Angaben sind ohne Gewähr und basieren ausschließlich auf Informationen, die uns von unserem Auftraggeber übermittelt wurden. Wir übernehmen keinerlei Gewähr für die Vollständigkeit, Richtigkeit und Aktualität dieser Angaben. Irrtum und Zwischenverkauf vorbehalten. Die Grunderwerbssteuer, Notar- und Grundbuchkosten sind vom Käufer zu tragen.
Die Maklercourtage beträgt für den Käufer 3,57 incl. MwSt. und ist nach Unterschrift des Kaufvertrags fällig.
Die Besichtigung kann auf Wunsch jederzeit nach Vereinbarung mit Herrn Wolfgang Ross 0152 0333 5955 erfolgen.
Klären Sie bitte vor der Besichtigung Ihre Bonität des finanzierenden Kreditinstitutes.
Widerrufsrecht:
Wenn wir ab sofort für Sie arbeiten sollen, bitte senden Sie uns erst schriftlich dass Sie auf das Widerrufsrecht hingewiesen worden sind, darauf verzichten, und wir ab sofort mit dem Datum für Sie als Makler tätig sein können.
Unsere Kosten entstehen für Sie nur und erst nach Abschluss des Kaufvertrags.
Sie können Ihre Vertragserklärung mit Insel & Land Immobilien innerhalb von 14 Tagen ohne Angabe von Gründen in Textform widerrufen. Die Frist beginnt nach Erhalt dieser Belehrung in Textform, jedoch nicht vor Vertragsschluss und auch nicht vor Erfüllung unserer Informationspflichten gem. Art. 246 § 2 in Verbindung mit § 1 Abs. 1 und 2 EGBGB. Zur Wahrung der Widerrufsfrist genügt die rechtzeitige Absendung des Widerrufs.
Der Widerruf ist an Insel & Land Immobilien, Neustadt 27 in 25813 Husum zu richten.
Häuser Nordstrand
Das Immobilieninserat gehört zur Kategorie Nordstrand. Der Link zu Immobilien zum mieten und kaufen dieses Bundeslandes findet man unter Schleswig-Holstein.
Die Angeben des Anbieters lauten Insel und Land Immobilien Ansprechpartner Lauri Jacobsen, Neustadt 27 in 25813 Husum.
Synonyme zur Suche Nordstrand Häuser:
Nordstrand Häuser online, Haus mieten und kaufen Nordstrand, günstige Häuser Nordstrand






