Neubau Bungalow in herrlicher Aussichtslage
Exposé: Neubau Bungalow in herrlicher Aussichtslage
PLZ /Ort:
Kaufpreis
Wohnfläche
Grundstücksfläche
Flächen
Wohnfläche:
169,00 m²
Grundstücksfläche:
1.000,00 m²
Teilbar ab:
169,00 m²
Preise
Kaufpreis:
315.000,00 €
Sonstiges
Ihre Objektnr.:
76
Objekttyp:
Einfamilienhaus
Heizungsart:
Fussboden
Stellplatz-Art:
Garage
Boden:
Fliesen
Zustand:
projektiert
Bad:
Fenster
Schlafzimmer:
3
Badezimmer:
2
Baujahr:
2022
Energiepass
Ausstattung
Objektbeschreibung
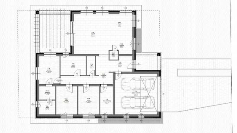
Dieser Neubau Bungalow mit sehr gutem Preis-/Leistungsverhältnis wird Sie begeistern. In schöner Aussichtslage auf einem ca. 1000 m² großen Grundstück in Zalacsanyi wird diese Immobilien in moderner und hochwertiger Bauweise gebaut. Die Wohnfläche mit ca. 169 m², verteilt über eine Etage, bietet einen großzügigen Wohn-/Essbereich, drei Schlafzimmer, zwei Bäder, eine Küche sowie drei Hauswirtschafts-/Nebenräume. Eine große Doppelgarage mit direktem Zugang zum Haus ergänzt dieses Angebot.
Vereinbaren Sie einen Besichtigungstermin. Wir freuen uns über Ihre Kontaktaufnahme.
Lage
Dieses Objekt befindet sich in herrlicher Aussichtslage in Zalacsany, nur ca. 10 km von Heviz entfernt.
Ausstattung
Dreifach verglaste Fenster, Luft-Wasser-Wärmepumpe, Doppelgarage, große Terrasse etc.(Energieausweis in Vorbereitung) 3378
Sonstige Angaben
Die Gegend am Balaton ist eine bekannte und beliebte Ferien- und Weinregion. Sie bietet ein hohes Freizeitangebot (schwimmen, segeln, angeln, radfahren, golfen, wandern usw.). Durch das Kontinentalklima ist der Sommer sehr warm, wo die Wassertemperatur des Balaton durchschnittlich 25° erreicht. Die Orte am Balaton haben ein reiches Kulturerbe. Sie sind miteinander durch Fährbetriebe verbunden, so besteht die Möglichkeit, zahlreiche Museen, Galerien und Konzerte zu besuchen. Rund um den Balaton sind gute Restaurants und zahlreiche natürliche Heilbäder zu finden.
Häuser
Weiterhin können Sie Inserate auf der Seite finden. Die Daten zu diesem Anbieter lauten: Lichtenstein Immobilien Ansprechpartner Margit Merz, Ludwig-Thoma-Str. 16 in 72805 Lichtenstein. ist die geografische Zuordnung dieses Objektes zum mieten und kaufen.
Synonyme zur Suche Häuser:
Häuser online, Haus mieten und kaufen, günstige Häuser









