Moderne Neubauwohnung - Haus Lessing Wehr
Exposé: Moderne Neubauwohnung - Haus Lessing Wehr
PLZ /Ort:
Kaufpreis
Wohnfläche
Zimmer
Flächen
Wohnfläche:
99,05 m²
Preise
Kaufpreis:
342.500,00 €
Sonstiges
Ihre Objektnr.:
1194
Objekttyp:
Dachgeschoss
Heizungsart:
Fussboden
Fahrstuhl:
Personen
Bad:
Fenster
Küche:
EBK
Zimmer:
4
Schlafzimmer:
3
Badezimmer:
1
Baujahr:
2019
Energiepass
Jahrgang:
ohne
Gebäudeart:
wohn
Ausstattung
barrierefrei
Objektbeschreibung
Moderne Architektur trifft Grün:
Für die vier Wohnhäuser in der Gutenbergstraße steht die Verbindung der grünen Umgebung mit den hellen Räumen in den Häusern im Vordergrund. Jede Wohnung hat viel Licht, Luft und Raum zum Wohlfühlen.
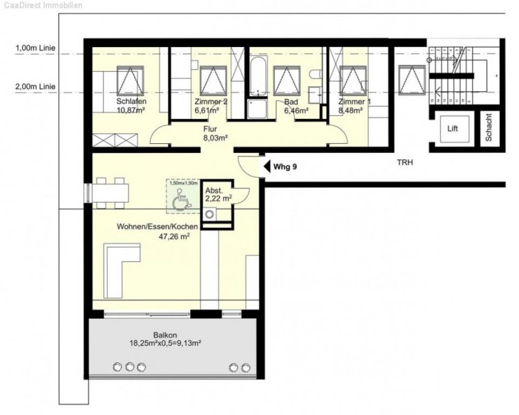
4 Zimmerwohnung mit 99,05 m² im Haus "Lessing"
Dachgeschoss
Niedrigenergiehaus (KfW-Effizienzhaus 55)
Aufzug in alle Stockwerke
Fußbodenheizung
Bodenbeläge sind als Fliesen- und Parkettböden vorgesehen,
Fenster werden als Kunststoffisolierfenster verbaut
großes Bad mit WC, Dusche und Badewanne
großzügige Terrasse/Balkon/Wintergarten
Abstellkammer
Kellerraum
allgemeiner Trockenraum
Fahrradabstellraum
Tiefgaragenstellplatz ab EUR 19.000,- zusätzlich
Lage
Die Gutenbergstraße in Wehr ist eine zentrumsnahe, voll erschlossene Sackgasse mit Wendeplatz. Sie wird von der Sternen-, der Todtmooser- und der Breitmattstraße flankiert.
Nur wenige Gehminuten sind es von diesem ruhigen Platz aus bis zum nächsten Supermarkt, zur Post und weiteren Einzelhandelsgeschäften.
Weiterhin wird derzeit das Industrie-Areal der Brennet AG überplant, so dass hier zukünftig ein attraktives Handelszentrum ganz in der Nähe entstehen soll.
Ausstattung
Qualität bis ins Detail! - Barrierefreie Zugänge von der Tiefgarage mit dem Aufzug in jede Etage - Lichtdurchflutete Wohnräume mit großen Fensterelementen - Elektrisch steuerbare Rollläden - Edles Parkett in Wohn- und Schlafräumen - Ausgewählte Fliesenbeläge in Küchen und Bädern - Traumhafte Wohlfühlbäder - Fußbodenheizung mit Einzelraumsteuerung - Videogegensprechanlage an der Eingangstüre und vieles mehr ...
Sonstige Angaben
Enthaltene Fotos, grafische Darstellungen, Computer-Visualisierungen und sowie die darin abgebildeten Einrichtungsgegenstände auf den folgenden Seiten dienen nur zu Illustrationszwecken und sind nicht Bestandteil der Leistung. Die Grundrisse sind nicht zur Maßstabsnahme geeignet.
Wohnungen Wehr (Landkreis Waldshut)
Unter Wehr (Landkreis Waldshut) findet man weitere relevante Immobilien zur Miete und zum Kauf. Die Daten zu diesem Anbieter lauten: CaaDirect GmbH Ansprechpartner Lukas Brodbeck, Paulusgasse in 4051 Basel.
Baden-Württemberg ist die geografische Zuordnung dieses Objektes zum mieten und kaufen.
Synonyme zur Suche Wehr (Landkreis Waldshut) Wohnungen:
Wehr (Landkreis Waldshut) günstige Wohnung, Wohnungsanzeigen Wehr (Landkreis Waldshut)








