Moderne Bürofläche in Top Lage an der A96!
Exposé: Moderne Bürofläche in Top Lage an der A96!
PLZ /Ort:
Kaltmiete
Gesamtfläche
Flächen
Preise
Kaltmiete:
3.300,00 €
Warmmiete:
4.224,00 €
Nebenkosten:
924,00 €
Vermittl.-Provision:
1 Nettokaltmiete zzgl. MwSt.
Kaution:
9900
Sonstiges
Ihre Objektnr.:
1153-109-VQ
Objekttyp:
Buerohaus
Fahrstuhl:
Personen
Energiepass
Gültig bis:
2036-01-14
Ausstattung
Objektbeschreibung
Exklusive Büroetage in repräsentativer Gewerbelage – Direkt an der A96
In einem etablierten und architektonisch ansprechenden Gewerbepark, unmittelbar an der Autobahn A96 und der Bundesstraße 471, präsentiert sich diese hochwertige Büroetage im 2. Obergeschoss als erstklassige Adresse für Unternehmen mit gehobenem Anspruch an Standort, Funktionalität und Repräsentation.
Auf einer Gesamtfläche von ca. 264 m² bietet die Einheit ein außergewöhnlich flexibles Raumkonzept, das sowohl klassische Bürostrukturen als auch moderne Arbeitswelten oder hochwertige Praxisnutzungen ermöglicht. Die Büroetage besteht aus zwei eigenständigen Büroeinheiten, die bei Bedarf zu einer großzügigen, zusammenhängenden Einheit verbunden werden können. Ein zentral positionierter Besprechungsraum fungiert dabei als kommunikatives Herzstück – ideal für diskrete Gespräche, Meetings oder Kundenempfänge auf professionellem Niveau.
Die acht lichtdurchfluteten Räume erlauben eine individuelle und effiziente Nutzung – von eleganten Einzelbüros über offene Arbeitsbereiche bis hin zu Konferenz- oder Behandlungsräumen. Die durchdachte Grundrissgestaltung gewährleistet dabei höchste Flexibilität für unterschiedlichste Unternehmenskonzepte. Ein besonderes Qualitätsmerkmal stellt die vollständige Barrierefreiheit dar: Ein moderner Personenaufzug ermöglicht den komfortablen Zugang zur Etage und erfüllt sämtliche Anforderungen an zeitgemäße, inklusive Arbeitsumgebungen.
* Hochwertige Ausstattung und funktionaler Komfort:
* Repräsentative Bürofläche in gepflegtem Gesamtzustand
* Moderne Einbauküchen in beiden Büroeinheiten
* Insgesamt vier WCs für Mitarbeiter und Besucher
* Effiziente Infrastruktur für Büro- und Praxisnutzungen
* Etablierte, ruhige Gewerbeumgebung mit professionellem Umfeld
* Klimaanlage für ein angenehmes Raumklima.
* Energieeffiziente Beheizung durch innovative Wärmepumpe
Abgerundet wird das Angebot durch insgesamt acht Außenstellplätze (vier je Büroeinheit), die sich direkt vor dem Gebäude auf der gepflasterten Freifläche befinden. Diese unmittelbare Erreichbarkeit stellt insbesondere für Kundenverkehr und Mitarbeiter einen erheblichen Standortvorteil dar.
Mietkonditionen
* Kaltmiete: 3.300,00 € zzgl. 19 % MwSt. monatlich
* Nebenkosten: 924,00 € monatlich (inkl. Heizkosten)
* Warmmiete: 4.224,00 € zzgl. 19 % MwSt. monatlich
* Außenstellplätze: 8 Stellplätze insgesamt 320,00 € zzgl. 19 % MwSt. monatlich
* Kaution: 9.900,00 €
Mietvertragslaufzeit: Mindestmietdauer 1 Jahr mit jährlicher Verlängerungsoption
Die Büroetage steht ab dem 01.01.2027 zur Verfügung und bietet eine nachhaltige Mietperspektive in bevorzugter Lage – eine ideale Wahl für Unternehmen, die Wert auf Seriosität, Komfort und Sichtbarkeit legen.
Lage
Ihr neues Büro am Ammersee – Arbeiten in inspirierender Lage mit exzellenter Anbindung
Eingebettet in die reizvolle Umgebung des Ammersees, einer der begehrtesten Wirtschafts- und Lebensräume im Münchner Umland, bietet dieser Standort eine außergewöhnliche Verbindung aus naturnahem Arbeiten, hoher Standortqualität und optimaler Erreichbarkeit. Der Standort überzeugt durch seine herausragende verkehrliche Lage: Direkt an der B471 gelegen und mit unmittelbarer Anbindung an die Autobahn A96 (München – Lindau) gewährleistet dieser eine schnelle und komfortable Anbindung an München sowie an die gesamte Metropolregion – ein entscheidender Vorteil für Mitarbeiter, Kunden und Geschäftspartner.
Der Standort vereint wirtschaftliche Effizienz mit hoher Aufenthaltsqualität: Die inspirierende Landschaft des Ammersees schafft ein repräsentatives und zugleich motivierendes Arbeitsumfeld, das Produktivität, Kreativität und Work-Life-Balance nachhaltig fördert. Gleichzeitig profitieren Unternehmen von der etablierten Gewerbestruktur, der ausgezeichneten Infrastruktur und der hohen Standortreputation der Region.
Ein Büro an diesem Standort ist mehr als nur ein Arbeitsplatz – es ist eine Adresse mit Signalwirkung, die Professionalität, Weitblick und Qualität vermittelt.
Ausstattung
Moderne Büroflächen im 2. Obergeschoss eines Büroturms
Die Büroeinheiten befinden sich in einem modernen, barrierefreien Büroturm mit vier Etagen, die bequem über den Aufzug erreichbar sind. Das Gebäude verfügt über einen Internetanschluss und bietet top-ausgestattete Gewerbeflächen – ideal für Unternehmen, die Wert auf Funktionalität und Komfort legen.
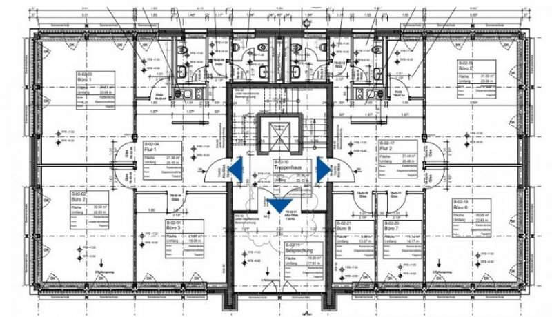
Die Büroetage überzeugt durch eine durchdachte Raumaufteilung und helle, gut nutzbare Flächen. Insgesamt stehen sieben Büros, zwei Serverräume, zwei Teeküchen, jeweils Herren- und Damentoiletten, zwei Abstellräume, zwei großzügige Flure sowie ein zentral gelegener Besprechungsraum zur Verfügung. Ergänzend sorgt eine Klimaanlage für ein angenehmes Raumklima zu jeder Jahreszeit. Für die Beheizung der Immobilie steht eine moderne Wärmepumpenheizung zur Verfügung, die energieeffizient, nachhaltig und besonders komfortabel für ein behagliches Raumklima sorgt.
Büroeinheit 2. OG – links
Flur: ca. 21,56 m²
Büro 1: ca. 31,81 m²
Büro 2: ca. 30,04 m²
Büro 3: ca. 21,67 m²
Serverraum: ca. 5,52 m²
Teeküche: ca. 2,85 m²
Abstellraum: ca. 1,31 m²
WC Damen: ca. 3,47 m²
WC Herren: ca. 4,20 m²
Büroeinheit 2. OG – rechts
Flur: ca. 21,44 m²
Büro 5: ca. 31,83 m²
Büro 6: ca. 30,05 m²
Büro 7: ca. 11,14 m²
Büro 8: ca. 21,44 m²
Serverraum: ca. 5,53 m²
Teeküche: ca. 2,95 m²
Abstellraum: ca. 1,30 m²
WC Damen: ca. 3,50 m²
WC Herren: ca. 4,20 m²
Der Besprechungsraum liegt zentral zwischen beiden Einheiten mit ca. 19,26 m².
Diese Büroetage eignet sich ideal für Unternehmen, die auf der Suche nach flexiblen, hellen Arbeitsbereichen mit moderner Infrastruktur sind. Die klare Raumstruktur ermöglicht sowohl konzentriertes Arbeiten in Einzelbüros als auch effiziente Teamarbeit in gemeinschaftlichen Bereichen.
Sonstige Angaben
Optional bietet der Gewerbepark zusätzlich zwei große Lagerhallen mit insgesamt ca. 1.300 m² Fläche. Diese sind in 16 Einheiten zu jeweils ca. 91 m² teilbar und können – je nach Verfügbarkeit – ergänzend zu den Büroflächen angemietet werden. Jede Lagereinheit ist ebenerdig befahrbar und mit Sektionaltor sowie Starkstromanschluss ausgestattet.
Der Glasfaseranschluss befindet sich in Ausbau.
Die genaue Adresse der Immobilie teilen wir Ihnen gerne auf Anfrage mit.
Unser Angebot erfolgt auf Basis der vom Eigentümer bereitgestellten Informationen. Eine Gewähr für Richtigkeit, Vollständigkeit oder Aktualität kann nicht übernommen werden. Haftungsansprüche gegen uns bestehen – soweit gesetzlich zulässig – nur bei vorsätzlichem oder grob fahrlässigem Verhalten.
Für Rückfragen stehen wir Ihnen gerne zur Verfügung.
******************************************************************
Starte deine Karriere bei RE/MAX Traumimmobilien in Emmering (bei Fürstenfeldbruck)!
Wir bieten motivierten Immobilienmaklern sowie Quereinsteigern (m/w/d) die Chance, bei RE/MAX der Nr. 1 im weltweiten Immobiliengeschäft einzusteigen.
Für Quereinsteiger/innen besteht die Möglichkeit, eine fundierte Ausbildung an der RE/MAX Akademie mit IHK-Abschluss zu absolvieren.
Bei Interesse freuen wir uns über Ihre Kurzbewerbung an traumimmobilien@remax.de
*****************************************************************
Gewerbe Immobilien Inning am Ammersee
Dieses Immobilien-Exposé wird geführt unter Inning am Ammersee. Weitere Immobilien zum mieten und kaufen kommen von REMAX Traumimmobilien Emmering Ansprechpartner Vjollca Qela, Hauptstraße 7 in 82275 Emmering.
Unter Bayern sind weitere relevante Immobilien vorhanden.
Synonyme zur Suche Inning am Ammersee Gewerbe Immobilien:
Inning am Ammersee Immobilien für Unternehmen, Gewerbeimmobilien mieten Inning am Ammersee, Industrie Immobilien Inning am Ammersee










