Moderne Büroflächen für modernes Arbeiten in der nähe der A96 & B17
Exposé: Moderne Büroflächen für modernes Arbeiten in der nähe der A96 & B17
PLZ /Ort:
Kaltmiete
Gesamtfläche
Flächen
Preise
Kaltmiete:
1.178,00 €
Warmmiete:
1.460,72 €
Nebenkosten:
282,72 €
Vermittl.-Provision:
1 Netto-Kaltmiete
Kaution:
3534
Sonstiges
Ihre Objektnr.:
1153-120-VQ
Objekttyp:
Bueroflaeche
Boden:
Teppich
Baujahr:
2020
Energiepass
Gültig bis:
2036-01-27
Ausstattung
Objektbeschreibung
Repräsentative Bürofläche im etablierten Gewerbegebiet von Landsberg am Lech
In verkehrsgünstiger Lage im etablierten Gewerbegebiet von Landsberg am Lech steht diese hochwertige Büroeinheit im 1. Obergeschoß eines modernen und gepflegten Gewerbeparks zur Vermietung. Die Nähe zur Autobahn A96 sowie die gute regionale Anbindung an die Bundestraße 17 gewährleisten eine schnelle Erreichbarkeit für Mitarbeiter und Kunden und unterstreichen die Attraktivität des Standorts.
Die Bürofläche mit ca. 94,24 m² überzeugt durch ein funktionales und flexibel nutzbares Raumkonzept. Sie eignet sich ideal für klassische Büronutzungen, beratende Tätigkeiten, Praxen oder dienstleistungsorientierte Unternehmen. Die durchdachte Raumaufteilung ermöglicht sowohl Einzelbüros als auch offene Arbeitsstrukturen und lässt sich individuell an unterschiedliche Nutzungskonzepte anpassen.
Ein Raum mit ca. 37 m² bietet sich optimal als Besprechungs- oder Konferenzraum an und schafft ideale Voraussetzungen für Meetings, vertrauliche Gespräche sowie einen professionellen Kundenempfang.
Ausstattungsmerkmale
* Zwei helle & geräumige Büroräume mit variabler Nutzung
* Zwei separate Sanitärräume innerhalb der Einheit
* Separater Bereich zur Nutzung als Teeküche
* Gepflegter und hochwertiger Ausstattungsstandard
* Ruhiges, professionelles Gewerbeumfeld
* Ein Außenstellplatz direkt am Gebäude
* Moderne elektrische Sonnenschutzrollos
* Klimaanlage für ein angenehmes Raumklima
* Energieeffiziente Beheizung durch moderne Wärmepumpentechnik
* Glasfaseranschluss für schnelles Internet
Die Büroeinheit erfüllt höchste Ansprüche an Funktionalität, Arbeitskomfort und Repräsentation und ist damit ideal für eine langfristige, professionelle Nutzung.
Mietkonditionen
* Kaltmiete: 1.178,00 € zzgl. 19 % MwSt.
* Nebenkosten: 282,72 € inkl. Heizkosten zzgl. 19 % MwSt.
* Warmmiete: 1.460,72 € zzgl. 19 % MwSt.
* Außenstellplätze: 1 Stellplatz für 40,00 € zzgl. 19 % MwSt.
* Kaution: 3.534,00 €
* Maklercourtage: 1 Nettokaltmiete zzgl. MwSt.
Mindestmietdauer: 12 Monate mit jährlicher Verlängerungsoption
Mietbeginn: ab 01.05.2026
Nutzen Sie die Chance, Ihr Unternehmen an einer der begehrtesten Standorte der Region dauerhaft zu etablieren. Die Büroeinheit bietet ideale Rahmenbedingungen für eine langfristige Nutzung und richtet sich an Unternehmen, die Wert auf eine repräsentative Lage, eine intelligente Raumaufteilung sowie eine hochwertige und professionelle Arbeitsumgebung legen.
Lage
Ihr neues Büro in Landsberg am Lech – Arbeiten in bester Lage mit exzellenter Anbindung
Dieser Standort vereint naturnahe Arbeitsatmosphäre mit hoher wirtschaftlicher Standortqualität. Landsberg am Lech, einer der gefragtesten Wirtschafts- und Lebensräume in Oberbayern, bietet ein inspirierendes Umfeld, das Produktivität, Kreativität und Work-Life-Balance gleichermaßen unterstützt.
Die verkehrliche Anbindung ist hervorragend: unmittelbar an der B17 gelegen und mit Anschluss an die Autobahn A96 (München – Lindau) profitieren Unternehmen von schnellen Verbindungen nach Augsburg, München und in die gesamte Metropolregion – ein entscheidender Vorteil für Mitarbeiter, Kunden und Geschäftspartner.
Der Standort kombiniert wirtschaftliche Effizienz mit hoher Aufenthaltsqualität. Die etablierte Gewerbestruktur, exzellente Infrastruktur und die erstklassige Reputation der Region schaffen ein professionelles Umfeld mit Signalwirkung. Ein Büro hier ist mehr als ein Arbeitsplatz – es ist eine Adresse, die Professionalität, Weitblick und Qualität vermittelt.
Ausstattung
Produktive Büroflächen mit moderner Infrastruktur
Die angebotene Büroeinheit befindet sich in einem modernen Gebäude mit zwei Etagen, die bequem erreichbar sind. Ausgestattet mit schnellem Glasfaseranschluss bietet das Objekt hochwertige Büroflächen – ideal für Unternehmen, die Wert auf Funktionalität, Komfort und ein professionelles Arbeitsumfeld legen.
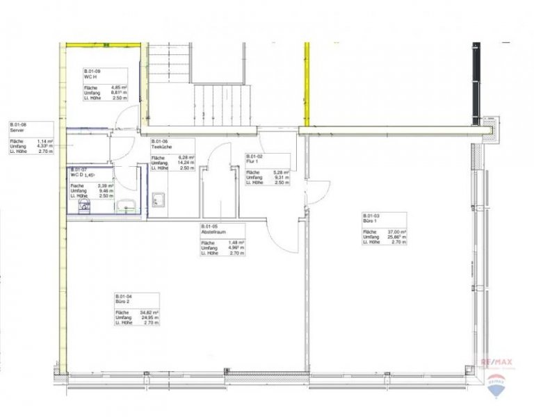
Die Büroeinheit überzeugt durch eine durchdachte Raumaufteilung und helle, gut nutzbare Flächen. Insgesamt stehen zur Verfügung:
Flur: ca. 5,28 m²
Büro 1: ca. 37,00 m²
Büro 2: ca. 34,82 m²
Serverraum: ca. 1,14 m²
Teeküche / Ankleide: ca. 6,28 m²
Abstellraum: ca. 1,48 m²
WC-Damen: ca. 3,39 m²
WC-Herren: ca. 4,85 m²
Gesamtfläche: ca. 94,24 m²
Die Büroflächen sind lichtdurchflutet und flexibel nutzbar. Das Raumkonzept ermöglicht konzentriertes Arbeiten in Einzelbüros, während gemeinsam nutzbare Bereiche effiziente Teamarbeit fördern – ein Arbeitsumfeld, das Produktivität, Komfort und Professionalität gleichermaßen vereint.
Für hohen Komfort und moderne Standards sorgen:
Elektrisch betriebene Außenrollos für Sicherheit, Energieeffizienz und flexible Steuerung in jedem Raum
Klimaanlage für ein angenehmes Raumklima zu jeder Jahreszeit
Moderne Wärmepumpenheizung, die energieeffizient und nachhaltig ein behagliches Raumklima garantiert
Glasfaseranschluss für schnelles Internet.
Diese Büroeinheit bietet damit optimale Voraussetzungen für ein modernes, professionelles Arbeitsumfeld – perfekt für Unternehmen, die Wert auf Technik, Komfort und repräsentative Büroräume legen.
Sonstige Angaben
Die genaue Adresse der Immobilie teilen wir Ihnen gerne auf Anfrage mit.
Unser Angebot erfolgt auf Basis der vom Eigentümer bereitgestellten Informationen. Eine Gewähr für Richtigkeit, Vollständigkeit oder Aktualität kann nicht übernommen werden. Haftungsansprüche gegen uns bestehen – soweit gesetzlich zulässig – nur bei vorsätzlichem oder grob fahrlässigem Verhalten.
Energieausweis: Effizienzklasse C (83,00 Kwh/ m²*a) Verbrauchsausweis, Baujahr laut Energieausweis 2020; Energieausweis gültig bis 27.01.2036.
Energieausweis wird bei Besichtigung vorgelegt.
Für Rückfragen stehen wir Ihnen gerne zur Verfügung.
********************************************************************
Starte deine Karriere bei RE/MAX Traumimmobilien
Wir bieten motivierten Immobilienmaklern sowie Quereinsteigern (m/w/d) die Chance, bei RE/MAX der Nr. 1 im weltweiten Immobiliengeschäft einzusteigen.
Für Quereinsteiger/innen besteht die Möglichkeit, eine fundierte Ausbildung an der RE/MAX Akademie mit IHK-Abschluss zu absolvieren.
Bei Interesse freuen wir uns über Ihre Kurzbewerbung an traumimmobilien@remax.de
******************************************************************
Gewerbe Immobilien Landsberg am Lech
Weitere Inserate zum mieten und kaufen finden sich unter Landsberg am Lech. Am Anfang suchen User zuerst auf der Seite Bayern.
Weitere Immobilien zum mieten und kaufen kommen von REMAX Traumimmobilien Emmering Ansprechpartner Vjollca Qela, Hauptstraße 7 in 82275 Emmering.
Synonyme zur Suche Landsberg am Lech Gewerbe Immobilien:
Landsberg am Lech Immobilien für Unternehmen, Gewerbeimmobilien mieten Landsberg am Lech, Industrie Immobilien Landsberg am Lech



