Moderne, beheizbare Halle für Produktion/Lage im Gewerbegebiet Loxstedt
Exposé: Moderne, beheizbare Halle für Produktion/Lage im Gewerbegebiet Loxstedt
PLZ /Ort:
Kaufpreis
Gesamtfläche
Gesamtfläche
Flächen
Gesamtfläche:
1.125,00 m²
Grundstücksfläche:
2.157,00 m²
Preise
Kaufpreis:
849.000,00 €
Vermittl.-Provision:
5,95 inkl. 19% gesetzliche MwSt.
Sonstiges
Ihre Objektnr.:
486_kia
Objekttyp:
Lager
Baujahr:
2020
Energiepass
Ausstattung
Objektbeschreibung
Wir bieten hier eine moderne Lagerhalle mit Bürocontainer zum Kauf an.
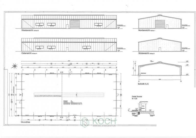
Das Objekt bietet 22,5 x 50 Meter (1.125 m²) Grundfläche in der neben der großen Einfahrt im Innenbereich der Bürocontainer steht.
Die Fläche ist auch mit größeren Fahrzeugen (Sattelauflieger) zur Anlieferung über ein großes Rolltor (ca. 5,8 mtr. breit) an der Vorderseite befahrbar. An der Seite befindet sich noch ein weiteres Rolltor.
Beheizt wird das Objekt über ein Gasheizung (Warmluft-Deckenbeheizung).
Lage
Gewerbegebiet Wedenberg in Loxstedt
Das Gewerbe- und Industriegebiet liegt unweit der B71 und der Autobahn A27, Abfahrt Bremerhaven-Wulsdorf. Auch der Bahnhof (Bremerhaven-Bremen) ist fußläufig erreichbar. Es präsentiert sich sowohl als gemischtes Gewerbegebiet als auch durch die ansässige chemische Industrie als Industriegebiet. Vorherrschende Branchen sind zudem produzierendes Gewerbe, Groß- und Einzelhandel sowie das Handwerk.
Mehr Info unter: https://www.loxstedt.de/portal/seiten/gewerbegebiete-der-gemeinde-loxstedt-900000083-32631.html
Ausstattung
- Grundfläche 22,5 x 50 Meter
- Beleuchtet und beheizbar
- Neuer Bürocontainer in der Halle
- 2 große Rolltore mit einer breite von 5,8 Meter
- Park-/ Hoffläche nach Absprache vor der Halle
Gewerbe Immobilien Loxstedt
Weitere Inserate zum mieten und kaufen finden sich unter Loxstedt. Niedersachsen ist die geografische Zuordnung dieses Objektes zum mieten und kaufen.
Weitere Immobilien zum mieten und kaufen kommen von KOCH Immobilieagentur Ansprechpartner André Koch, Langner Str. 53 in 27607 Geestland.
Synonyme zur Suche Loxstedt Gewerbe Immobilien:
Loxstedt Immobilien für Unternehmen, Gewerbeimmobilien mieten Loxstedt, Industrie Immobilien Loxstedt










