Können Sie sich ein Leben ohne Nachbarn vorstellen...?
Exposé: Können Sie sich ein Leben ohne Nachbarn vorstellen...?
PLZ /Ort:
Kaufpreis
Wohnfläche
Zimmer
Grundstücksfläche
Flächen
Wohnfläche:
125,00 m²
Nutzfläche:
5,00 m²
Grundstücksfläche:
630,00 m²
Preise
Kaufpreis:
352.340,00 €
Vermittl.-Provision:
4
Sonstiges
Zimmer:
4
Energiepass
Ausstattung
Objektbeschreibung
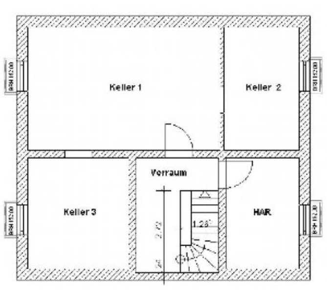
Schlüsselfertiges Einfamilienhaus (ohne Tapeten u. Teppichboden) mit Baugrundstück in Pforzheim ----------------------------------- Massive Stein-auf-Stein Bauweise ----------------------------------- Bad u. WC raumhoch gefliest u. m. Sanitärobjekten ausgestattet ----------------------------------- inkl. Bauplatz ----------------------------------- inkl. Erdarbeiten ----------------------------------- inkl. Architekt, Statik, Bauantrag ----------------------------------- inkl. Baufertigstellungsversicherung (kein Insolvenzrisiko) ----------------------------------- inkl. Baugewährleistungsversicherung ----------------------------------- inkl. TÜV-Abnahme + Blower Door Test ----------------------------------- KfW - alle Häuser auch als E40 und E60 erhältlich ----------------------------------- Nur Deutsche Markenartikel ----------------------------------- Garantierter Festpreis ----------------------------------- Das Haus auf Bodenplatte mit Bauplatz kostet ? 352.340,- * Das Haus mit Vollunterkellerung mit Bauplatz kostet ? 388.460,- * inkl. Baunebenkosten (Wasser-, Strom-, Abwasseranschluß, Erdentsorgung, Vermessung) ----------------------------------- Gerne planen wir das Haus gem. Ihren Wünschen um oder bieten Ihnen einen anderen Haustyp an ----------------------------------- sämtliche Baustellenbesichtigungen im Enzkreis jederzeit möglich ------------------------------------ möchten Sie unser Musterhaus in Schömberg sehen? -rufen Sie uns an! ----------------------------------- P.S.: Gerne sind wir Ihnen beim Verkauf Ihrer jetzigen Immobilie behilflich... ...
Häuser Katharinenthalerhof
Weiterhin können Sie Inserate auf der Seite Katharinenthalerhof finden. Baden-Württemberg ist hier die Oberkategorie dieses Immobilienexposé's.
Die Angeben des Anbieters lauten ProjektHaus-BW Ltd. & CO. KG Ansprechpartner Paul Schmidt, Karlsruher Str. in 75179 Pforzheim.
Synonyme zur Suche Katharinenthalerhof Häuser:
Katharinenthalerhof Häuser online, Haus mieten und kaufen Katharinenthalerhof, günstige Häuser Katharinenthalerhof



